咖外购线下体验中心



作品说明
- 项目类型:零售
- 项目地点:西安市
- 建筑面积:300.0000㎡
- 项目造价:50.0000万元
- 主案设计师: 王刚
- 参与设计师:成龙
- 竣工时间:2024-01-01
- 设计机构:集翊设计
票数 : 28
-
项目定位:咖外购是一个线上综合跨境电商平台,包含国际美妆,护肤,珠宝,零食,母婴等。基于咖外购的企业属性我们提出“科技无限遐想,艺术融合你我”的设计概念,咖外购品牌在拉近科技,生活,艺术三者的距离,同时也在探索科技,艺术,生活相连的内在核心。
-
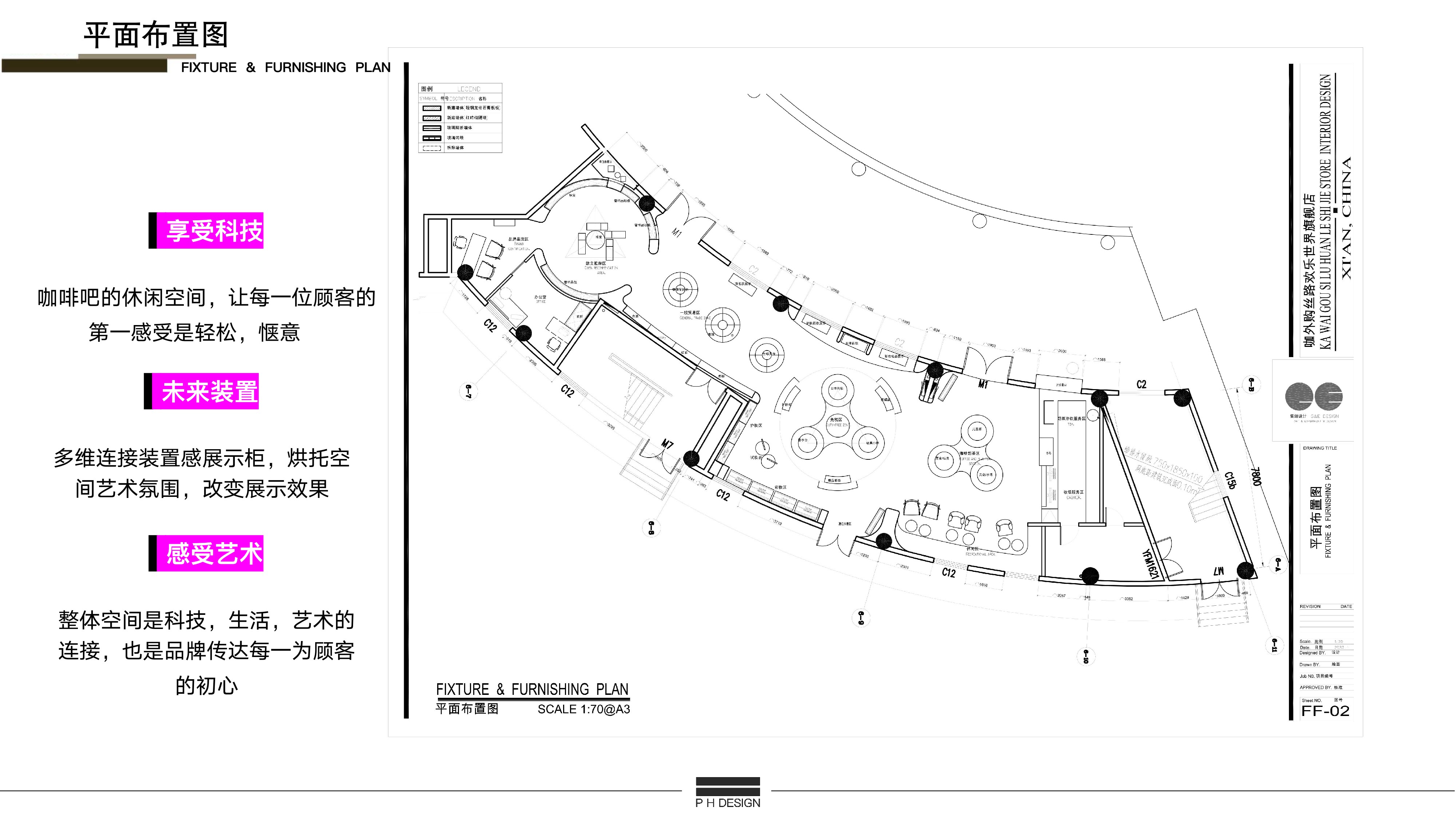
空间意境:以“科技无限遐想,艺术融合你我”的设计概念,提出三个设计内容:享受科技,未来装置,感受艺术。打造一个即将启程的飞船,探索人类生活的可能性。
-
空间布局:三进式布景,通过前厅的接待设置了咖啡休闲区,到中庭的大型展示货架,到后厅的独立展示和圆形回厅。
-
设计选材:大量道具通过工厂的定制,减少现场制作的时间周期和制作成本,现场的少量顶面工程也是减少了成本投入。
-
用户体验:项目位于丝路欢乐世界城景区内,该项目在效果上在整个园区也别具特色深受顾客和甲方及园区管理方的好评,销售额也是名列前茅,今年第一年取得年度最佳店面和销售突出奖。
甲方于2023年12月29日携该项目参加第二届海南国际电子商务博览会。

