莫舍春风里
473
作品说明
- 项目类型:住宅公寓
- 项目地点:武汉市
- 建筑面积:259.0000㎡
- 项目造价:628.0000万元
- 主案设计师: 莫山
- 竣工时间:2023年4月28日
票数 : 0
-
项目定位:院子朝北,故渴望阳光,地中海风格外观院子;
软装饰的方向:自然、轻松,家庭的经历,旅游的记忆;
整体设计感受:轻松、惬意、舒适、独特;
每个空间各有特色,丰富、隐私;
良好的设备,优质的感受。 -
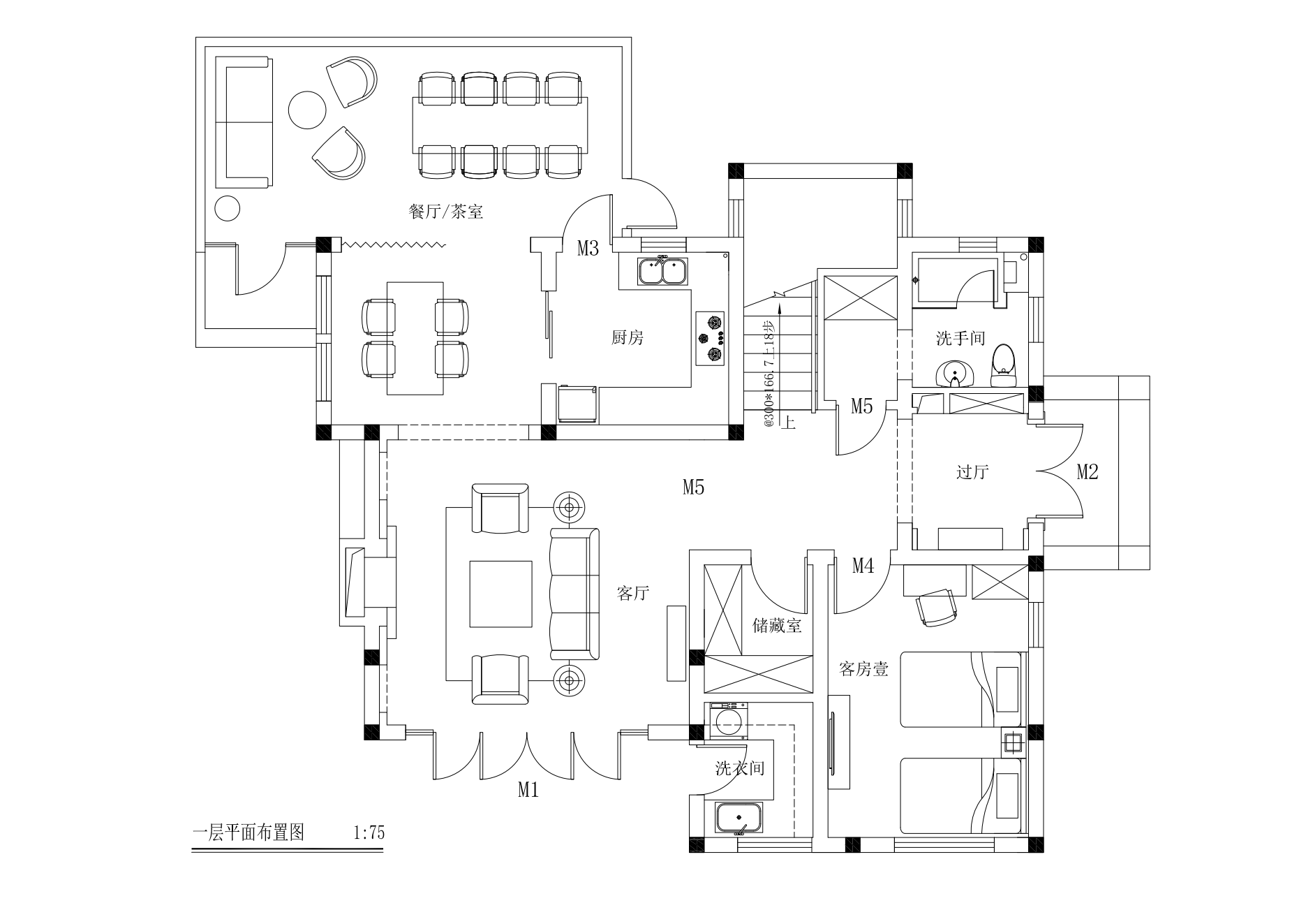
空间意境:院子:风格鲜明的入口,院墙的高度保证了隐私;
一层公共空间:把原隔墙打开,大片的玻璃推拉门,将院子的景色引入室内,另一边,辅以全玻璃的阳光房,让空调更加流动、光照得以加强;
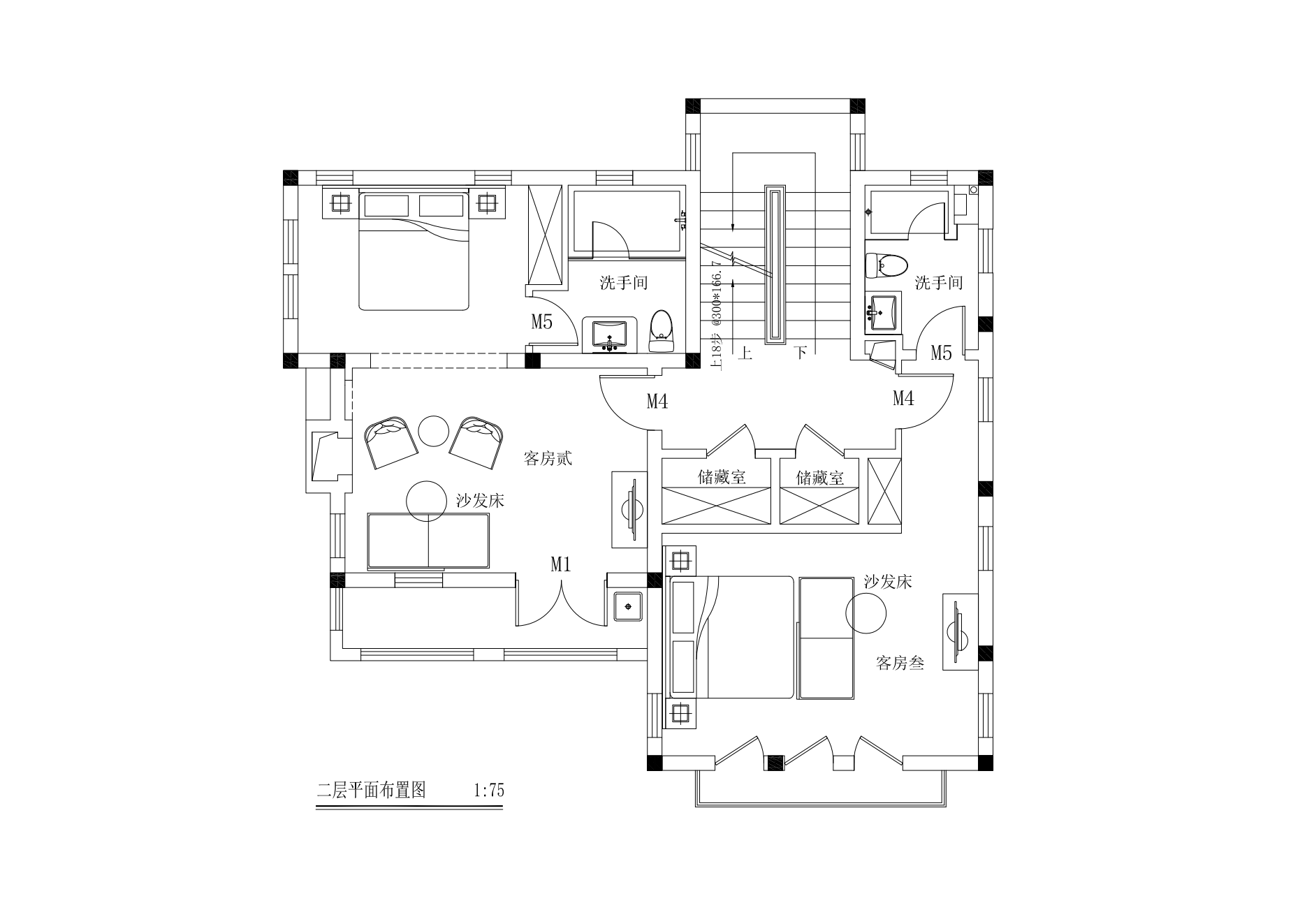
二层、三层空间:每一层皆有独立的卫生间及小阳台,阳台外有有绿色乔木作为背景,舒适宜人,且保护隐私。三层的屋顶,辅以大型木制构架,提升空间的趣味性和风格; -
空间布局:公共空间在布局上,对外保护隐私,对内保持开放;
在重要的节上,布置大小不同的乔木、權木,形成室内景观的同时,也保护了室内的隐私。
报据不同的房间珍状和空间高度,设置大小不一的挑空阳台和内凹式阳台,设置壁炉、木质吊顶,甚至木质构架,以体现各自不同的空间感受;
开放与私隐相对比,宜动宜静,相得益彰。 -
设计选材:院子:选用吸水性强的砂岩,色泽温暖,功能适当;
外墙:选用白色纳米防水漆,结实、耐水、环保;
阳光房及袖珍房型材:选用德国旭格(中空,隔热断桥系列),经济、节能、品质保证;
所有上水管:选用铜质水管,外履PVC保温套,水量大且经济、节能、环保;
楼层地板:选用抽木实木地板,防水、防虫、质感高级、舒适;
洁具:选用美国科勒洁具;
空调:选用日本原装进口三菱中央空调;
热水源:选用美国瑞美燃气保温锅炉,高效节能,合适环保; -
用户体验:气氛:温馨、宁静、舒适;
空间感受:大小合适,空间合宜,各有特色;
软装饰:富有独特的风格,多体现主人的家庭氛围和旅游的记忆;
设备独家:空调安静迅速,舒适;
热水:升温快,温度适宜;
床品:轻侈,且富有文化及归属感
0
0

认证 · 让您身份增值