壹·亮马



作品说明
- 项目类型:住宅公寓
- 项目地点:北京市
- 建筑面积:240.0000㎡
- 项目造价:960000.0000万元
- 主案设计师: 方印
- 参与设计师:赵紫轩
- 竣工时间:2023年5月1日
- 设计机构:东方山水国际设计顾问(北京)有限公司
票数 : 0
-
项目定位:纯粹,空灵,光明,自然,现代,简洁的心灵归属之地。诧寂风作为近年来美学中最具影响力的理念之一,延伸至设计中的表达大致可以理解为,经得住时光考验的本质之美。结合现代的,自然的元素,着重表达空间的生命力与自然的疗愈功能,浸润于阳光之下,被包裹在匆匆绿意之中,空灵,纯粹,充满光明,仿佛超凡脱俗的温柔乡。细细品味, 你会感受到生活的温度和品质。结合现代法式的浪漫慵懒,整个空间沐浴在浑然一体的的自然柔美之中,淳朴而细腻,简洁而精致。
-
空间意境:本案业主是一双年轻夫妻,刚接触时就表达了对于家的清晰喜好。产品设计出身的男主人对工艺和细节有着自己的考量,女主人偏爱自由浪漫的法式风格。该空间是他们的新家,位于北京市壹·亮马。设计师希望赋予这个家自由的空间,无拘无束的感觉,有着诗一般的纯粹与洁白。淡淡的暖调中透着清爽,带给人治愈与放松,透过精致细腻的细节,优雅浪漫的氛围给予业主宁静,惬意,充满爱意的居所。
-
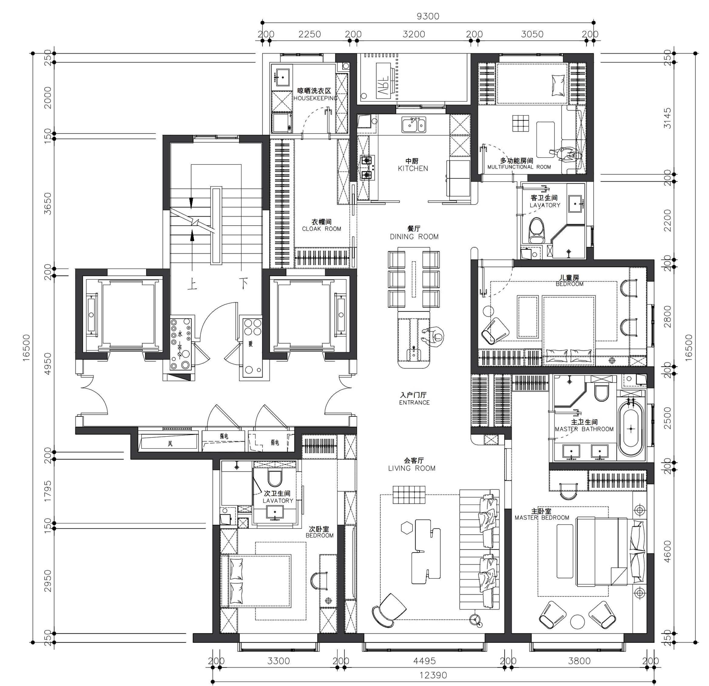
空间布局:在空间原有四叶草的规整布局基础上,设计师以自由松弛的线条搭配多样的材质为空间赋予法式温柔浪漫的的趣味。重新梳理着人与物,人与光影,人与空间,人与时间的美好关系。
-
设计选材:皮革、布艺、实木其中,最流行的材质为泰迪棉麻布,自带肌理效果,在室内灯光下尽显温柔,触感舒适温暖。
-
用户体验:本案业主是一双年轻夫妻,刚接触时就表达了对于家的清晰喜好。产品设计出身的男主人对工艺和细节有着自己的考量,女主人偏爱自由浪漫的法式风格。该空间是他们的新家,位于北京市壹·亮马。设计师希望赋予这个家自由的空间,无拘无束的感觉,有着诗一般的纯粹与洁白。淡淡的暖调中透着清爽,带给人治愈与放松,透过精致细腻的细节,优雅浪漫的氛围给予业主宁静,惬意,充满爱意的居所。

