潮汐



作品说明
- 项目类型:住宅公寓
- 项目地点:丽水市
- 建筑面积:300.0000㎡
- 项目造价:160.0000万元
- 主案设计师: 金俊乐
- 参与设计师:金俊乐
- 竣工时间:2023.06.30
- 设计机构:颠锋视界设计装饰有限公司
票数 : 109
-
项目定位:我们期待在这个繁杂喧闹的环境里,营造一个纯粹、自然的室内空间,触动居者内心深处的静谧与暖意,让生活慢下来。本案以中性色调为基础,素朴的材料,简洁的线条,营造纯净、精致、平静的室内空间。舍弃多余的装饰,强调自然采光,让每个空间得到充分的自由展现。
-
空间意境:每个“家”都应该有专属这个家的气质,这套房子里没有单一的风格,你可以看到现代的、意式的灵感,但更多的是专属业主的当代气质,布艺、木质、与天然石材的家居产品在这里碰撞又相得益彰的共生。
-
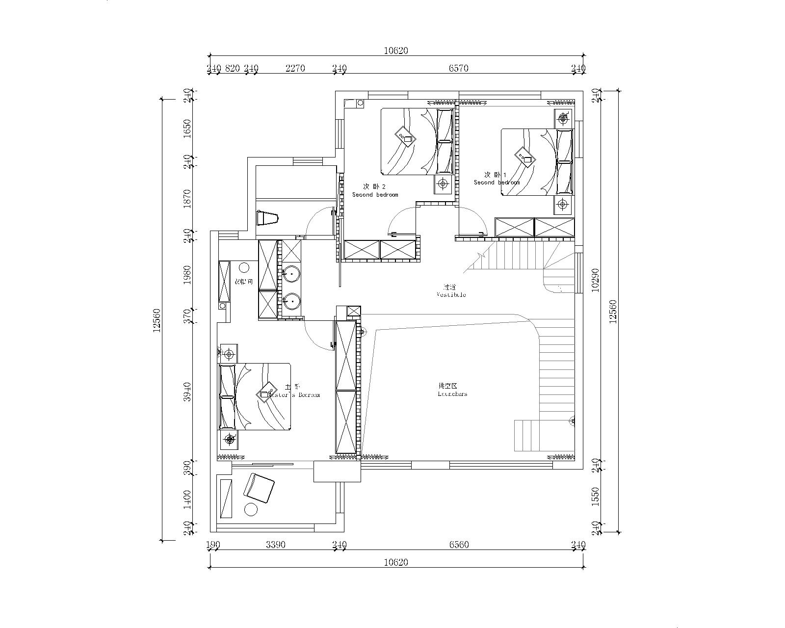
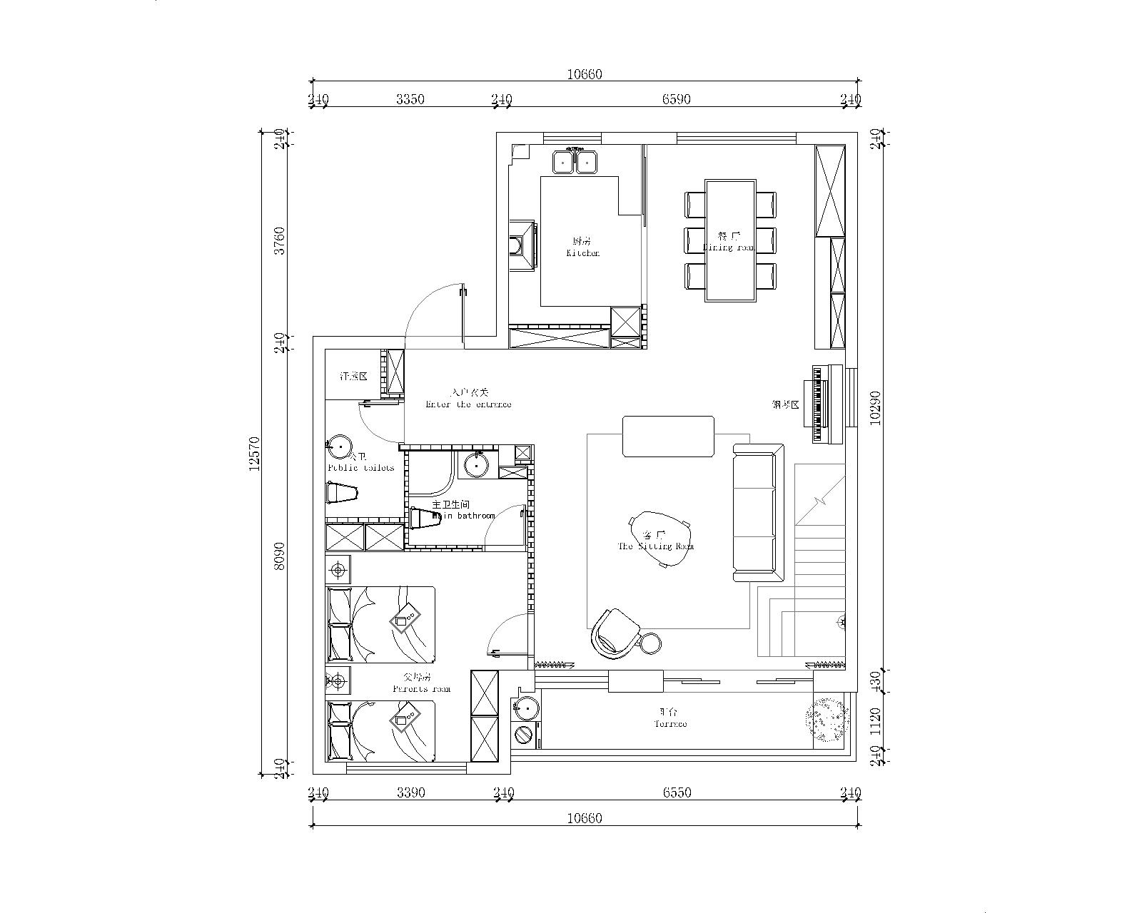
空间布局:大面积木饰面的玄关设计,实现了收纳和装饰兼具,挑高客厅,大面积的光线倾泻而下,使视觉上得到延伸从而呈现纵向维度的美,阁楼改造成多功能室空间。顶上开设天窗,必要时也可做客房,最大化使空间看起来更敞亮。
-
设计选材:采用进口环保的涂料,家里老人小孩都能安心使用。选适的窗户和遮光设备,让室内光线充足且避免阳光过度照射。
-
用户体验:搬到新家以后,家人更喜欢宅家了,不出去待在家里也很舒服。

