高级私享会所



作品说明
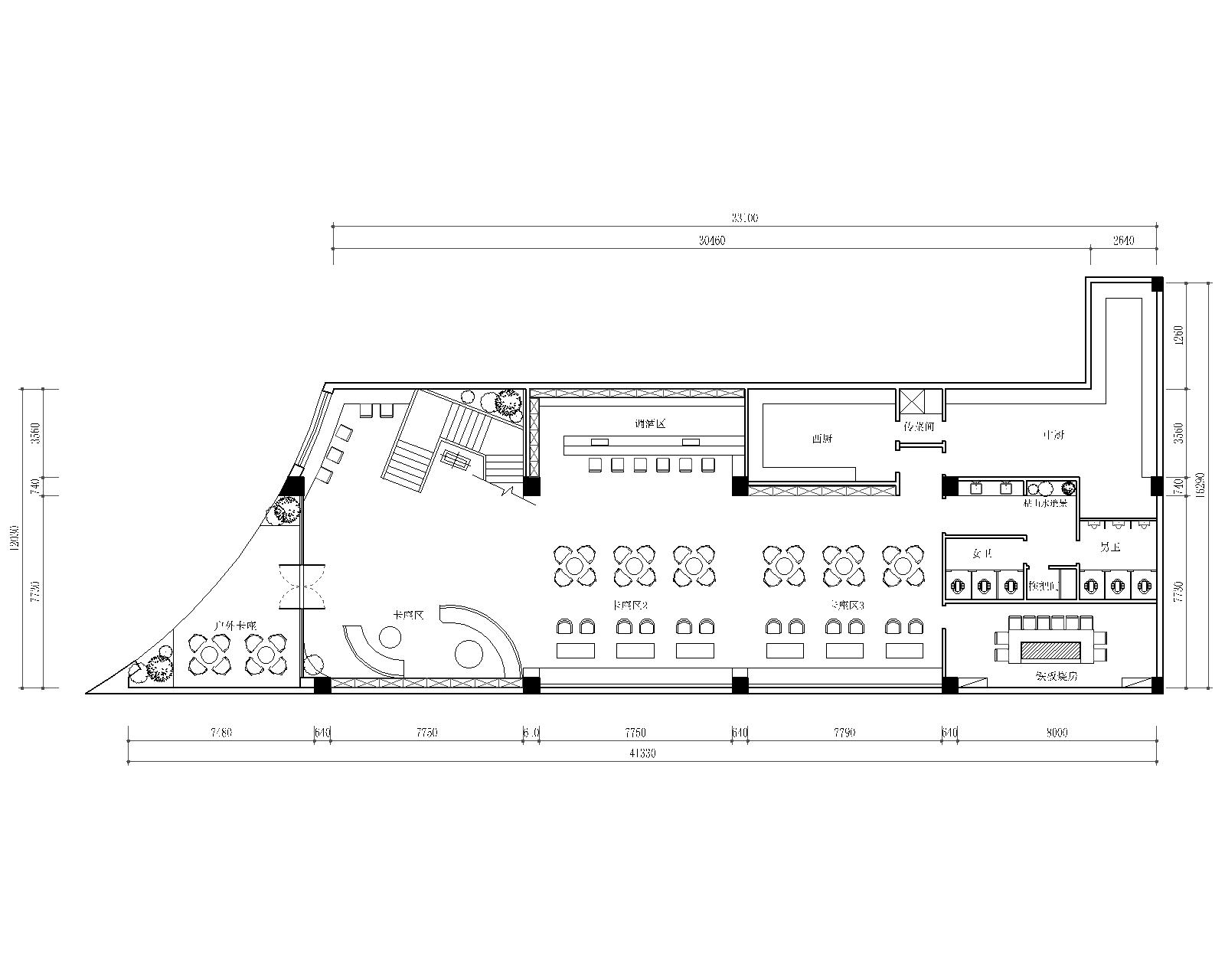
- 项目类型:公共
- 项目地点:佛山市
- 建筑面积:1200.0000㎡
- 项目造价:500.0000万元
- 主案设计师: 莫景付
- 参与设计师:杨小光
- 竣工时间:2023-12-30
票数 : 10
-
项目定位:这是一个1200平米,用于企业展示和商务活动的会所。
-
空间意境:传承东方意境,展现时代特色。会友之所,举杯交错,以酒会友。
-
空间布局:通过细节的处理和材料的选择,各个空间之间的关系和比例被诠释的更加鲜明,利用灯光的质感与墙面材料形成强烈的虚实对比关系,增强光影变化与感受
-
设计选材:室内吊灯、挂画及家具的选用不繁琐刻意,遵从大道至简,以自然至上的效果,餐厅整体简约而不简单,彰显的更有品位。
-
用户体验:业主希望在此获得更深层的思考。空间整体的风格沉稳而轻快,既有中华传统文化底蕴,又有现代的时尚元素。

