大地春饼
1360
作品说明
- 项目类型:餐饮
- 项目地点:海口市
- 建筑面积:210.0000㎡
- 项目造价:46.0000万元
- 主案设计师: 龙丽仁
- 参与设计师:龙丽仁 马莉波 马文涛
- 竣工时间:2018-09-21
- 设计机构:龙丽仁室内装饰设计有限公司
-
项目定位:定位于突破原有传统风格餐厅。从一条商业街不起眼传统小店脱颖而出,吸引游人目光驻足,相较于原餐厅做了彻底的改造。希望通过现代化年轻化的设计让项目取得商业上的成功。
-
空间意境:卷饼作为东北人传统的日常美食,遍布大街小巷,餐厅的用餐环境都比较简陋,多以辣椒大蒜挂满墙为主要的设计元素。我们希望可以突破传统。门面是我们一大创新点,我们大胆的惯用了我们事务所以往的设计手法,运用现代时尚线条,建筑构造的形体,透过大小不规的几何窗望向室内,里外合一,达到室内外的紧密联系,打造精致的用餐空间向传统美食致敬。
-
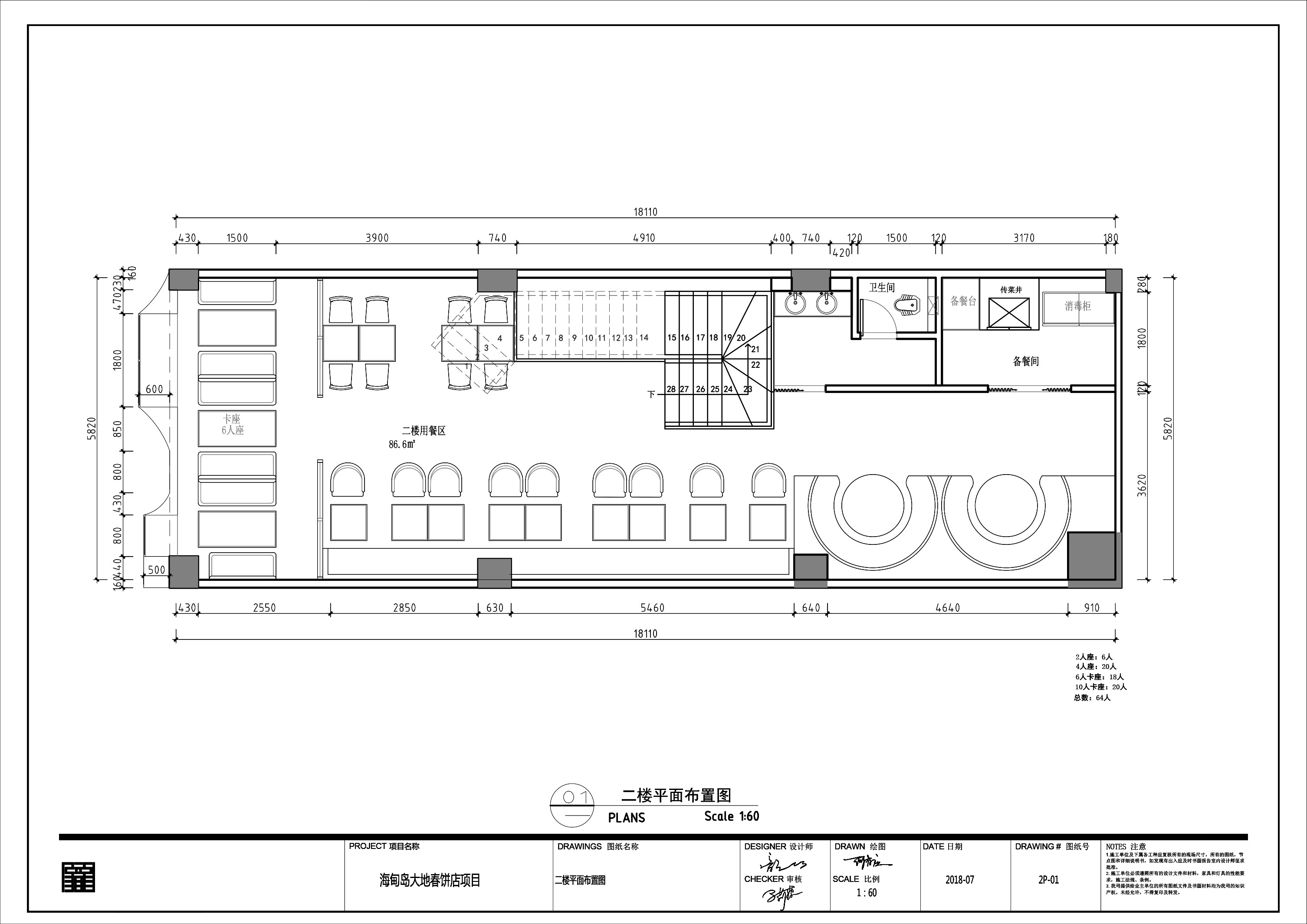
空间布局:整个空间分为两层,一层全部摆放散座,大块不锈钢运用,设计镜面效果从视觉上扩大室内空间,深色系弱化工作台存在。二层设计靠墙卡座,较为安静舒适。我们把原有藏于后面的楼梯改成L形,扩大了宽度,融入到收银台和座位之间,从门窗外可隐约看见楼梯,达到了另外一种美感的体现。
-
设计选材:移步入室,室内由白色混凝土抹灰及不锈钢线条交错而成的墙面,黄铜、不锈钢、大理石的运用创造了金属质感般复古氛围。局部也用了皮质,布艺和木料的材质用来搭配金属。材料使用的比较精简。
-
用户体验:风格获得顾客符合肯定,轻奢之调,时尚雅致,性价比高。
8BDBFA0A-C377-4E01-A696-0BB9047101B5
898E306D-ED3B-4627-8779-CE98B3DD48B6
51539180-8182-4D41-92AC-D259F743C43D
F6761B7E-7908-4CF8-894A-B8CD085C9814
D6153FAC-A7F9-4636-BF57-2F6EE1F70E8E
1E0457F5-49DE-4715-8523-464C9C1CADCA
7EA94D3F-2B31-46DD-9A69-0B276DA8C2F6
79A655C7-ABAC-4A21-8D3A-9020101FB20A
大地春饼一楼
大地春饼二楼
0
0

认证 · 让您身份增值