浪漫满屋


作品说明
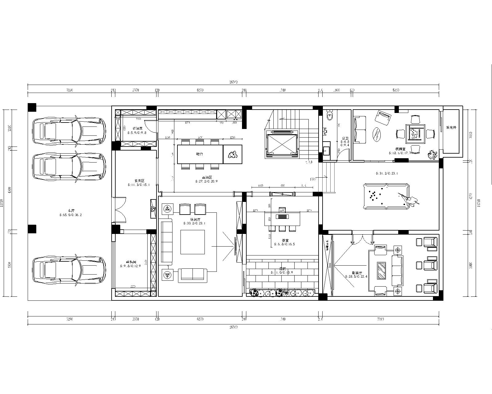
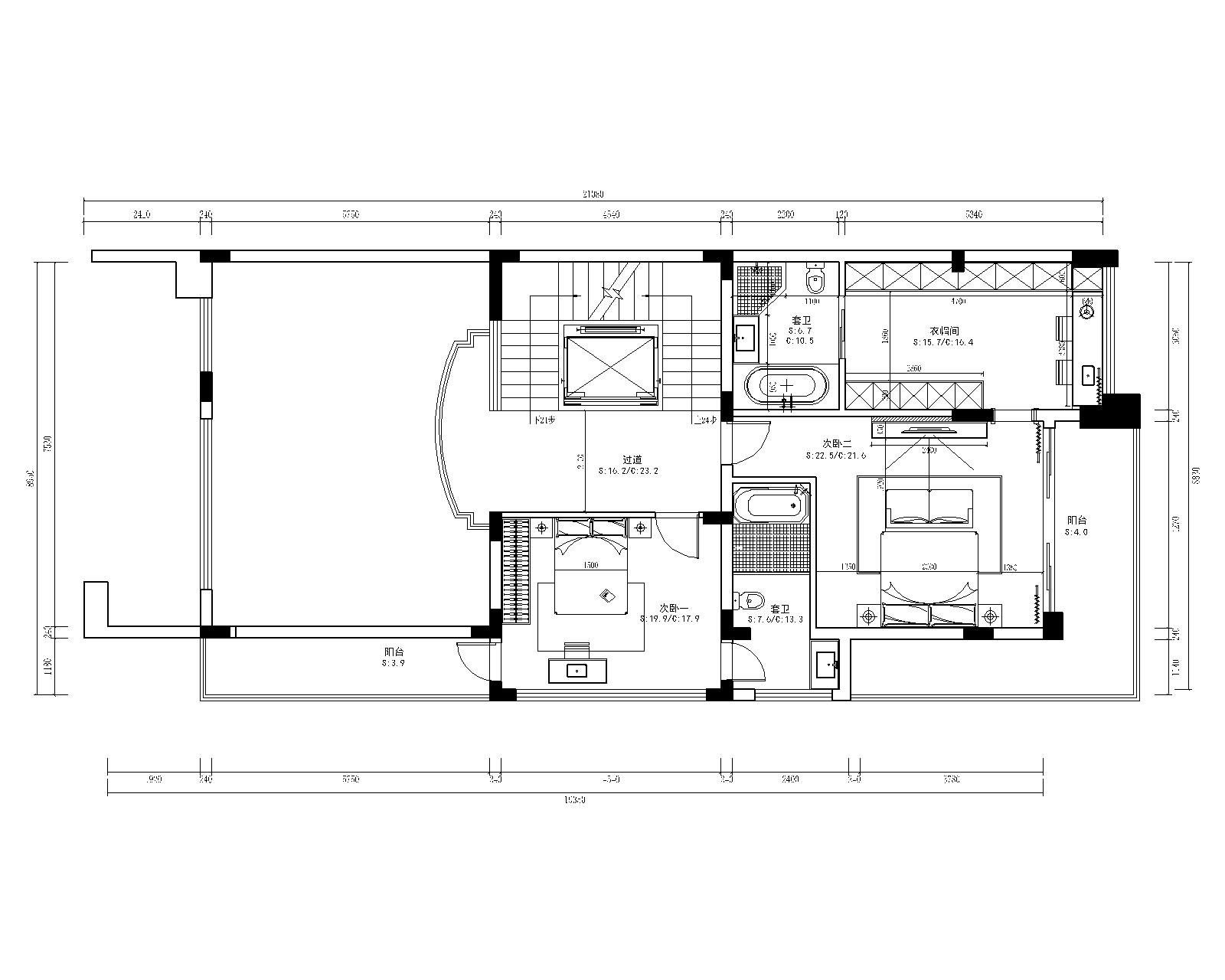
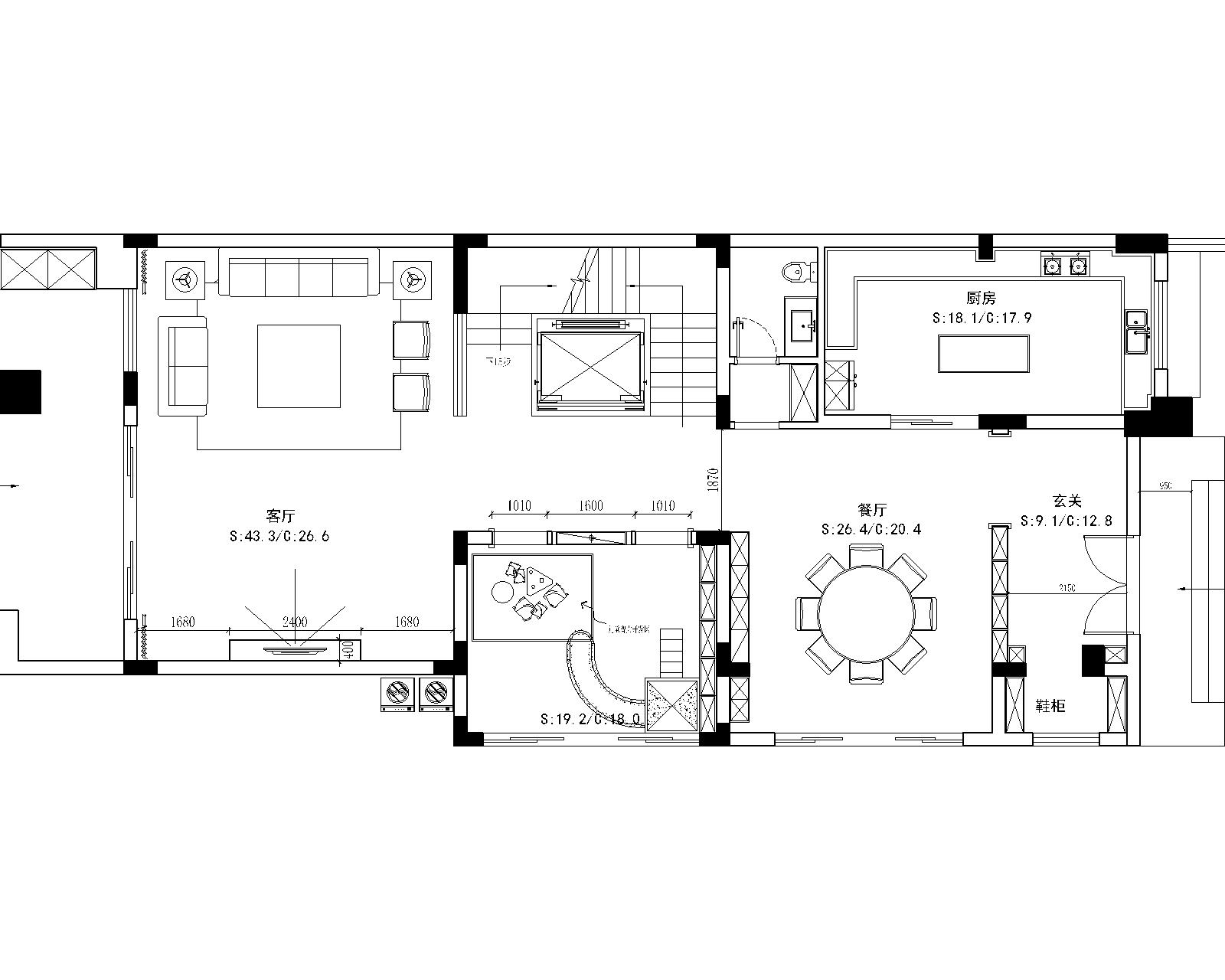
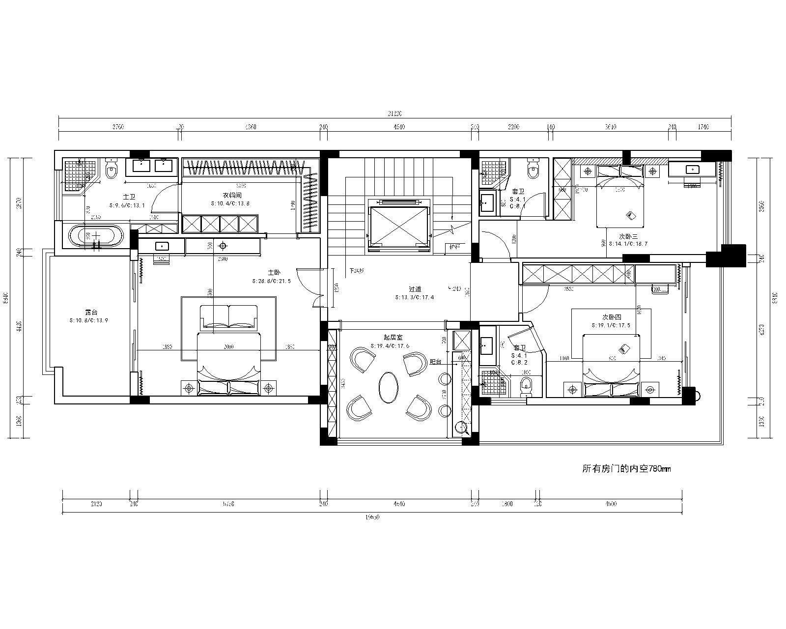
- 项目类型:别墅
- 项目地点:东莞市
- 建筑面积:1050.0000㎡
- 项目造价:600.0000万元
- 主案设计师: 莫景付
- 参与设计师:杨小光
- 竣工时间:2023-12-30
-
项目定位:整体空间以法式蓝为主色调,借花盘、壁挂等造型进行空间装饰,将法式浪漫与艺术格调演绎得像诗一样优美。
-
空间意境:壁炉的设计将法式优雅复古的氛围表达得淋漓尽致。因业主喜好读书,壁炉则创意性的用于置放书本,与周围复古装饰品搭配后别有一番风味,为业主营造出一个安静惬意的阅读空间。
-
空间布局:本案里,设计师在现代居所中注入法式浪漫,打造出了一番现代与复古完美相融,充满独特艺术情调的生活场景。
-
设计选材:在墙面的材质上基本都是采用了艺术涂料,线框则采用了石膏线和PU线,减少了大理石和木线条的使用。
-
用户体验:对于空间的实用性和合理性,包括室内智能细节上的使用,让客户享受到了豪宅的生活方式

