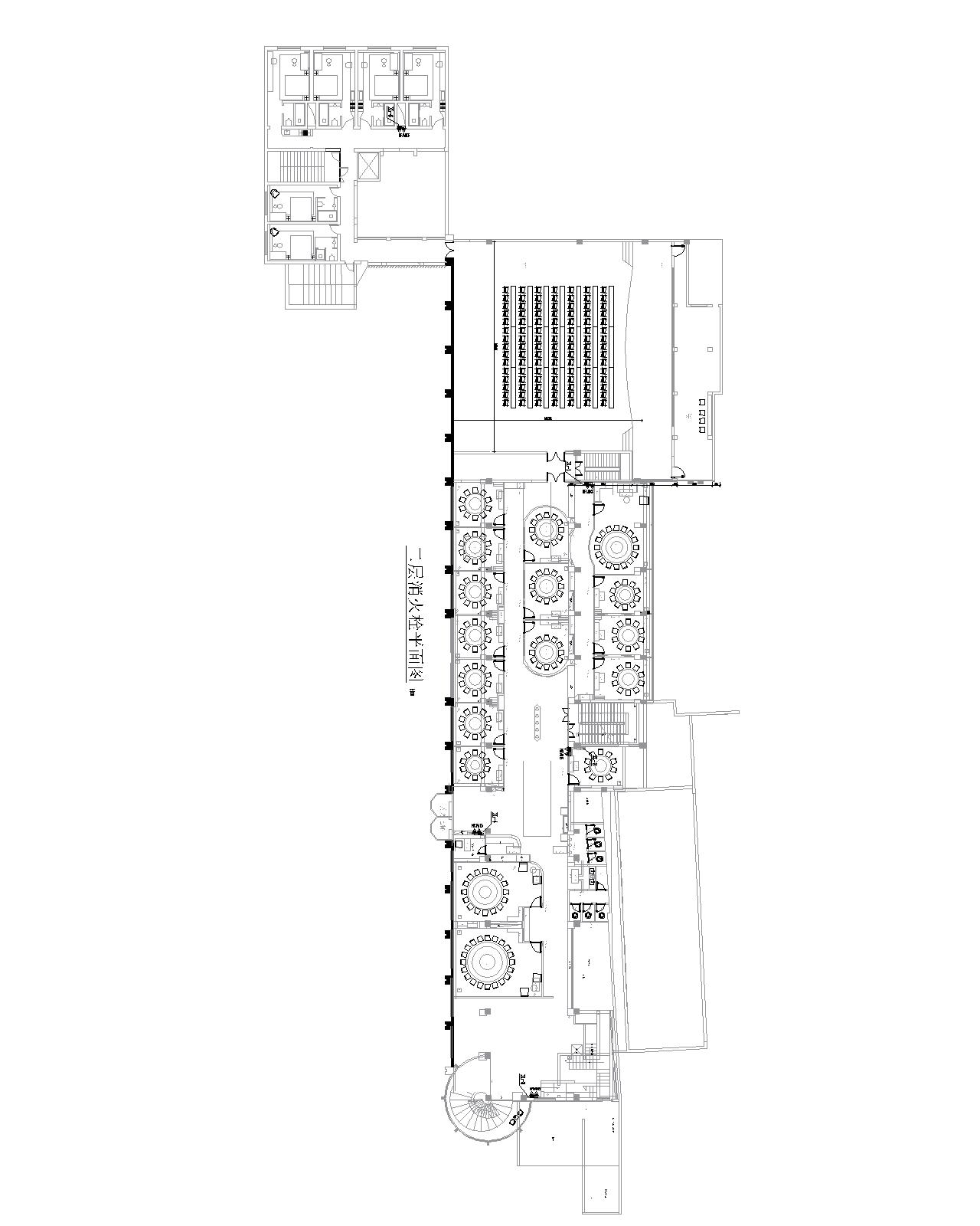
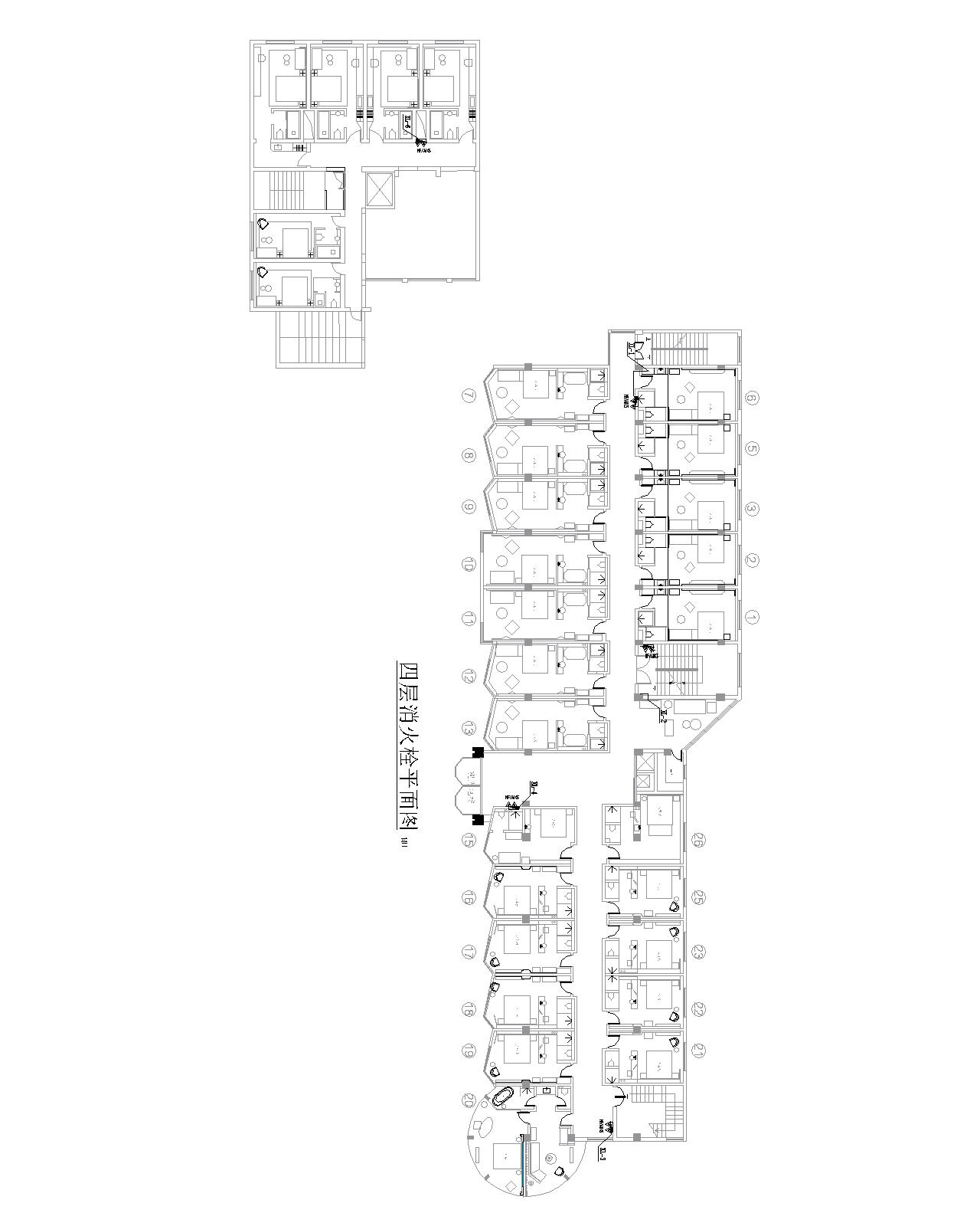
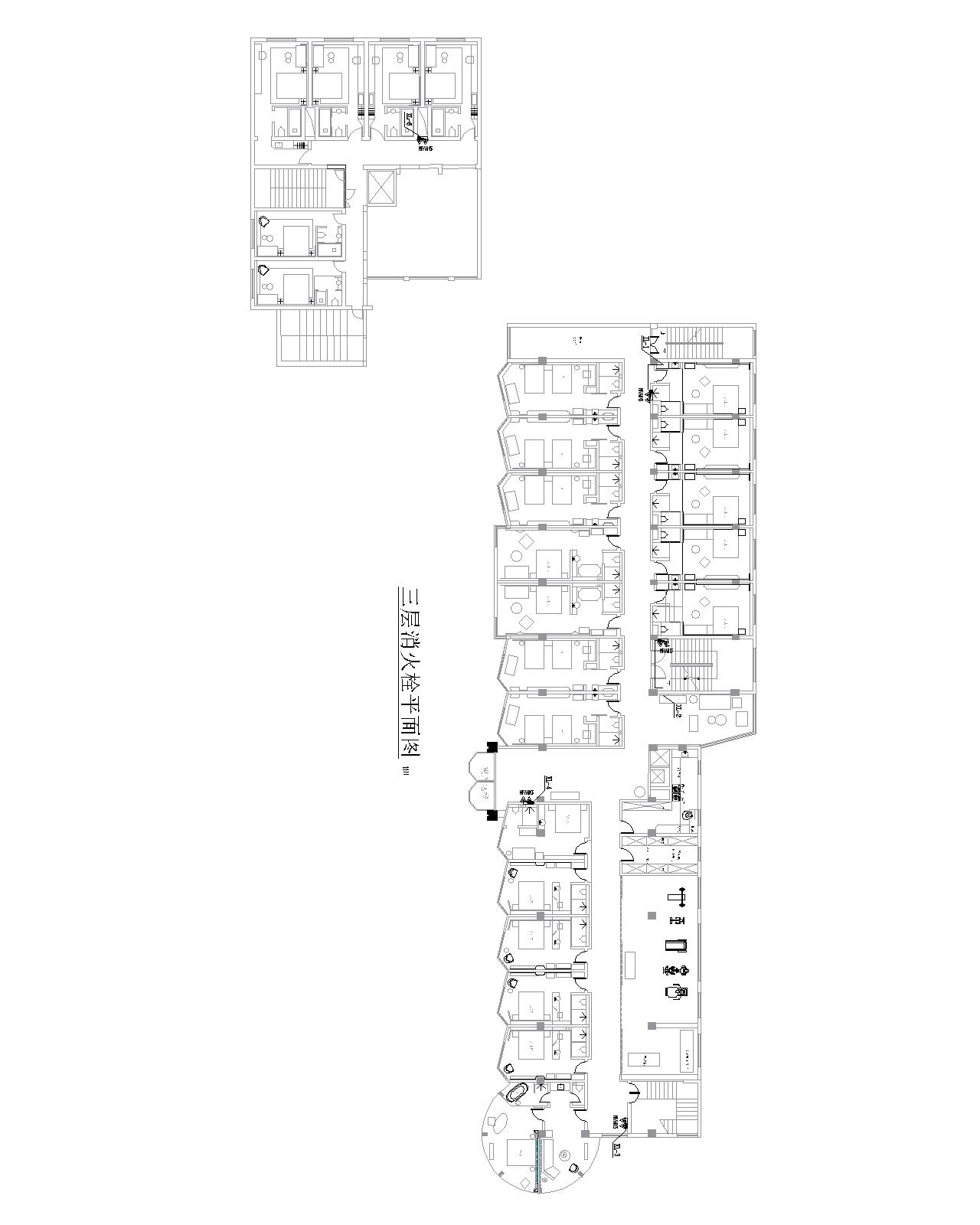
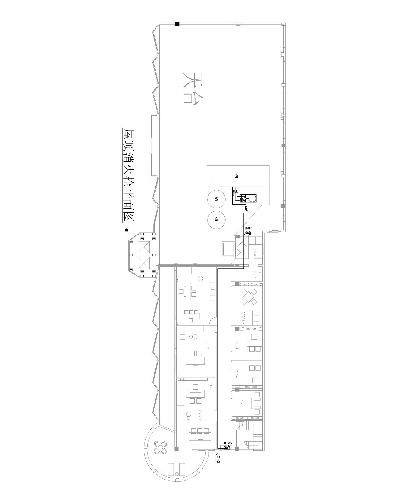
新丽都酒店
449
作品说明
- 项目类型:酒店
- 项目地点:南阳市
- 建筑面积:7000.0000㎡
- 项目造价:1700.0000万元
- 主案设计师: 凌涛
- 参与设计师:凌涛
- 竣工时间:2023年12月
- 设计机构:鸣仁汇设计
票数 : 48
-
项目定位:高端精选服务酒店,在全服务基础上,精心挑选保留核心特色服务,剔除了一部分繁冗且使用率较低的服务内容。
-
空间意境:1.直接回应千禧一代及Z世代的消费者需求
2.整合核心功能,提高酒店空间平效
3.满足业主投资方的愿景及需求
-
空间布局:延续高端酒店奢华中的精髓品质与品位。利用无界空间 ,创造社交可能,制造“酒店+”多元消费场景。
-
设计选材:采用现代天然-原始材料--流线软石--微水泥--彩玻
-
用户体验:在当地网红商圈--符合年轻人的消费预期,功能性配套全面。
0
0

认证 · 让您身份增值
金堂奖杰出作品证书