MACCURA办公空间
418
作品说明
- 项目类型:办公
- 项目地点:成都市
- 建筑面积:28170.0000㎡
- 项目造价:4500.0000万元
- 参与设计师:李天蜀、钟洁、赵家璧
- 竣工时间:2021-12-31
- 设计机构:成都上城设计事务所
票数 : 0
-
项目定位:冷峻不苟、单调乏味的场所空间,使用者由于固化限定行为衍生出来的陌生冷漠,是大多数“办公室”展现出的刻板印象。MACCURA办公空间是针对迈克生物安和园区行政楼所打造的新型办公空间,涵盖门厅接待区、公共区、办公区及休憩区等,总面积近28170㎡。整体设计延续园区建筑风格,将传统院落空间和现代的办公空间有机结合,同时也是对迈克生物集团品牌基因的一次表达。将集团“以人为本、服务健康”的品牌理念转译为清晰而有弹性的空间语汇,通过几何体量的演绎,传统元素的植入,打造自然光影与舒适体验互为渗透的工作环境,处处体现出品牌的“柔性”表达。
-
空间意境:入口门厅的设计与建筑主立面的白色体块形成呼应,通过简洁的线条与体块,勾勒出一个明快积极的大堂空间,暖灰色的石材与灯光互相映衬,温柔的欢迎着每一个人。对迈克集团的标志(mccura)进行像素化图形设计,突出科技感和未来感。这样的设计手法既丰富了墙面的表皮肌理,又将集团logo如繁星浪漫地融于整个空间,促进了开阔的空间关系,强化了品牌视觉重心。而门厅的咖啡厅空间,作为一个动态使用空间,带动起整个大堂空间的气氛。将中国传统元素——“卵石”、“意陶”、“枯山水”等设计成视觉节点,吸引人们驻足、交谈与思考。中西文化的碰撞,展现出企业对于中国文化的关注与尊重,展现出品牌非凡的气度和格局。
日常工作中,个体的感受常被忽略,因此无法沉浸式地享受工作。于是设计采用“定制化”的设计,使得人员在使用中更具有自我的归属感。办公家具中设计了各自独立的收纳空间避免杂乱的桌面扰乱思绪,每个楼层均设置了舒适的咖啡休息区与景观节点空间,这样私人专属的“微休闲”的氛围,让更多的创意及灵感迸发。 -
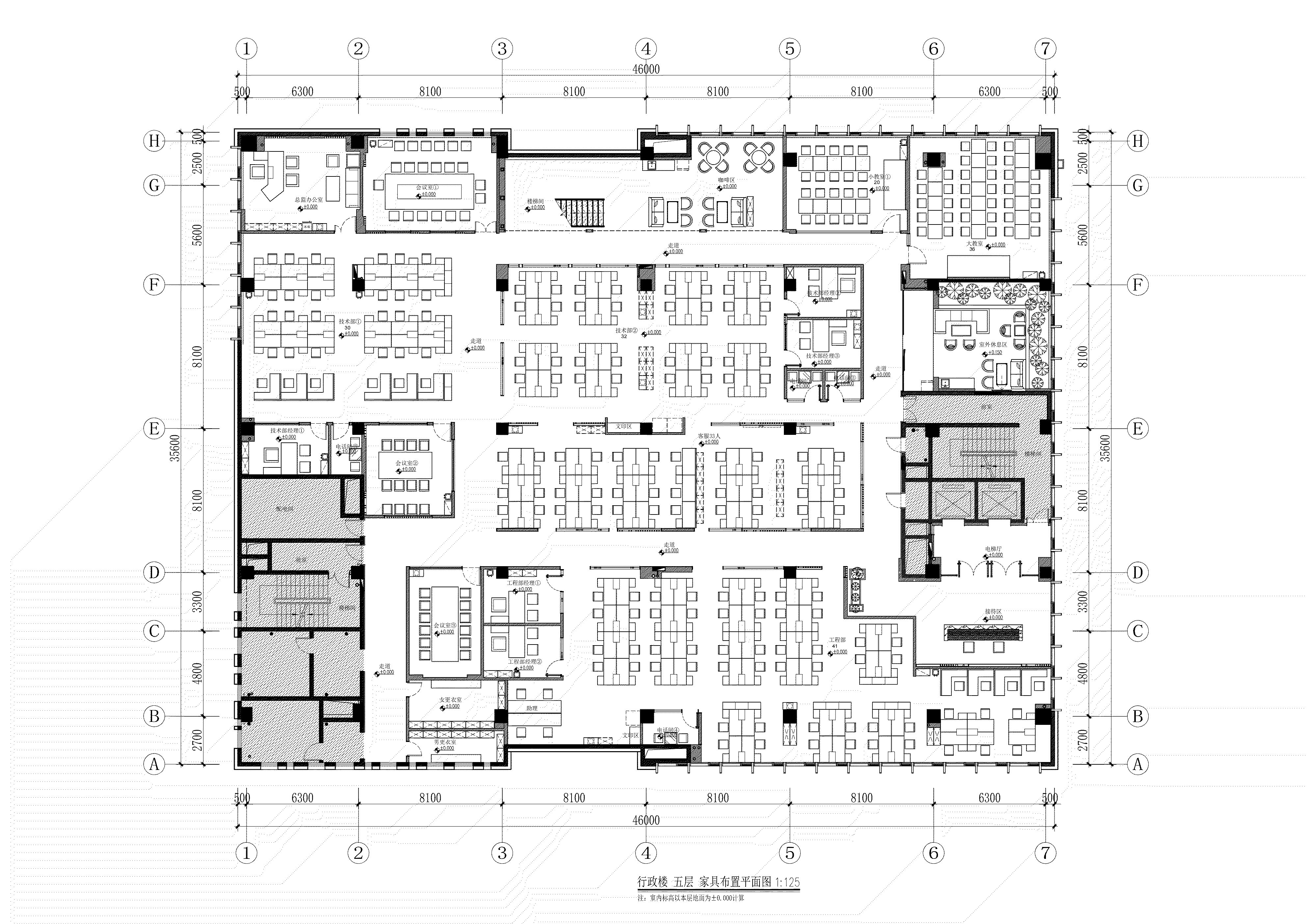
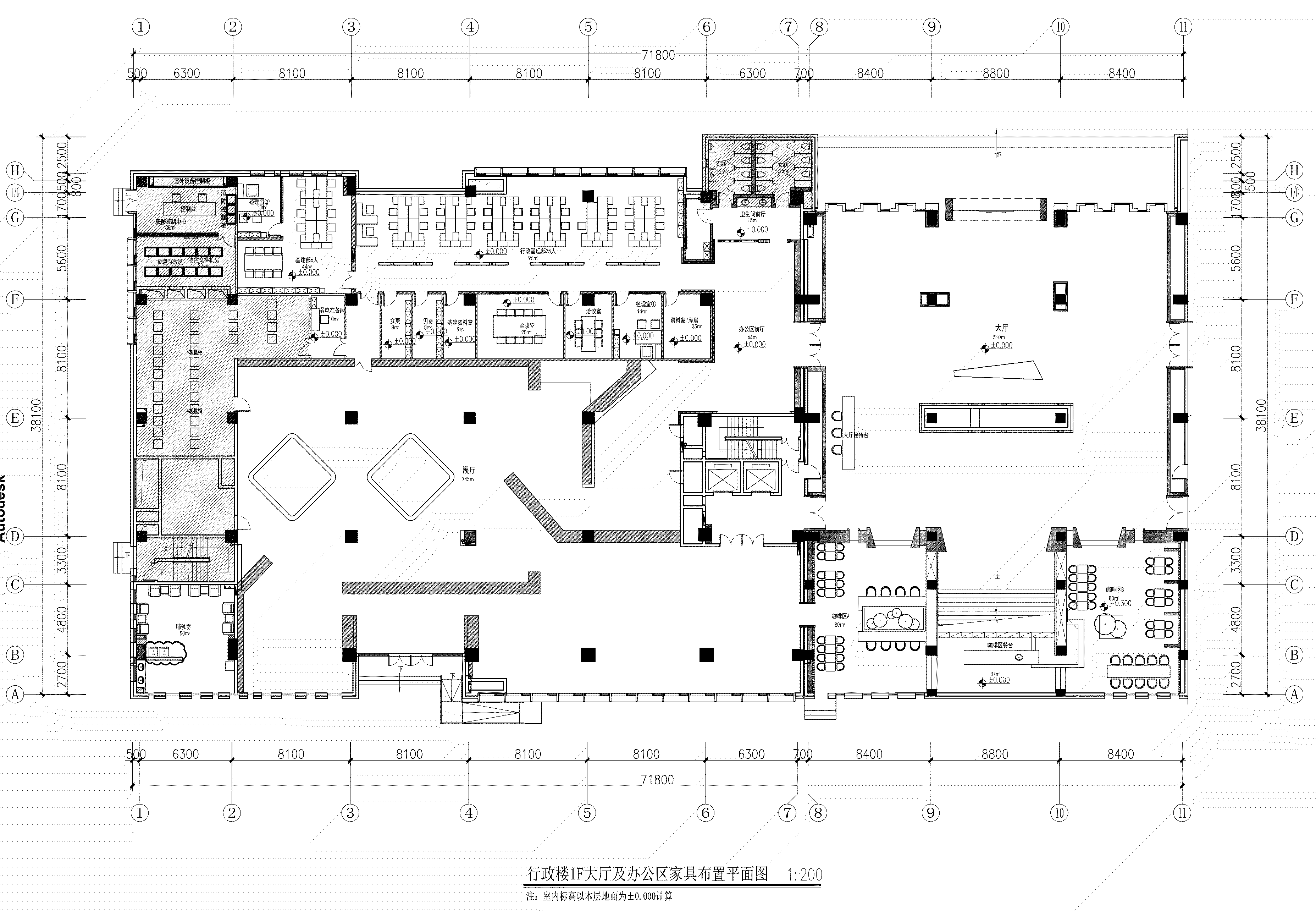
空间布局:从宽阔的门庭到夹层空间,这是进入办公区域的前奏。宽敞的台阶,极大程度保证了人流的通达性,沉稳大气的色彩搭配,一方面强化了办公的仪式感,一方面展现着企业开放包容的氛围。走廊空间里设计了吧台和服务区,极大提高了空间的利用率,在办公区域和室外景观之间制造一个停留契机,形成一个兼具实用功能和体验功能的过渡空间。
半开放办公区域的交通空间充分结合自然光线设计,半透明的楼梯设计最大化地消隐工作与自然之间的边界,以自然的舒适性抚平忙碌的人群。而在具有特殊属性的办公空间设计上,采用最具标识化的元素,确保空间的标识性。研发区的廊道空间采用黑白灰的简约配色,黄金比例分割的竖向设计,充满理性色彩和高级感。
办公空间的“开放性”和“群体性”是其区别于其他空间的最大特征,项目将群体行为细分,打造齐全、使用率高的各类会议空间。三楼设置多功能厅,满足大型的现代化的集会要求,而各个楼层又留出了小型的会议室空间,满足各类私密性的集会需求。 -
设计选材:对于一座现代化的办公楼来说,交通空间是串联各个核心功能区的关键,极大程度上决定着整栋楼的布局、空间使用效率以及使用体验。项目分别设计了“垂直会议”、“垂直办公”和“垂直参观”三条垂直交通体系,以满足会议、工作、商务等功能,减少等候电梯造成的时间浪费,优化交通流线,确保体系高效运行。建筑顶楼是公司高层的办公室和休息室,存在空间压抑闭塞的问题,而园区的设计理念给出了解决答案。延续园区中使用的“传统院落”设计手法,在八楼屋面的中部开出几个天井,形成了引入天光自然的 “小树院”,通过景观空间的引入打造柔性的轻享空间,创造出平静而亲切的办公空间。将原本用来休憩使用的传统院落,变形成内置于办公空间中的立体式绿化空间,承载着餐饮、休闲、会话、探讨等系列功能,满足现代办公所需要的共享生态及灵活性。
-
用户体验:随着现代空间需求的持续变化,多功能、多元化的综合型空间形式必将成为一种主流,而“柔软而富有弹性”的空间边界,直接为人与人、人与物、人与自然之间产生更多连接提供了可能性。
0
0

认证 · 让您身份增值
金堂奖杰出作品证书