荣宝行宝马5S店
457
作品说明
- 项目类型:展示
- 项目地点:天津市
- 建筑面积:4000.0000㎡
- 项目造价:1300.0000万元
- 主案设计师: 陈一闲
- 参与设计师:王国朝、张明浩、周泽洋
- 竣工时间:2023-01-10
- 设计机构:陈谢设计
票数 : 0
-
项目定位:本案位于天津滨海新区,作为渤海湾上的明珠,该区域拥有得天独厚的地理优势。项目占地近4000平方米,为现阶段该区域内规模最大、级别最高的5S店,具有极重要的战略意义。宝马BMW品牌主张“在广阔的时空中,以最新的科学技术、最先进的观念满足顾客的最大愿望”,提倡“BMW之悦”,精准表达用户情感、品味与态度,与当代人追求活力、激情和自由的生活方式深刻契合。设计师综合考量在地环境、顺应城市精神气质,以可持续发展为设计原则,对既有空间进行了重新诠释。
-
空间意境:随着玻璃感应门的开启,硬朗的金属线条印入眼帘,辅以柔和的暖光氛围营造,赋予来客宾至如归的舒适体验。Hero展区进一步将未来科技的临场感推至极致。与之对应的GKL+展区,以凌厉的墨金色金属格栅切分出空间层次与区域界限,暗喻品牌踏过历史的烟尘却不褪锋芒。轻触壁龛前的按钮,随着暗门的打开,新车交付车间露出真容,戏剧张力十足。设计师选择以简释繁的形式打造内墙与软装,使空间的焦点回归到产品本身,同时,仪式感的营造也为消费者提供了充足的情绪价值。宝马Minicooper展区明亮的光线与镜面式吊顶,汲取了电影《The Italian Job》的元素,打造出既摩登又科技的沉浸式互动氛围。儿童娱乐区采用木制架构搭建参天大树,象征着生命力,也隐喻着成长意义。墙面绘出一片暖色调的墙画森林,童真尽显,生趣盎然。
-
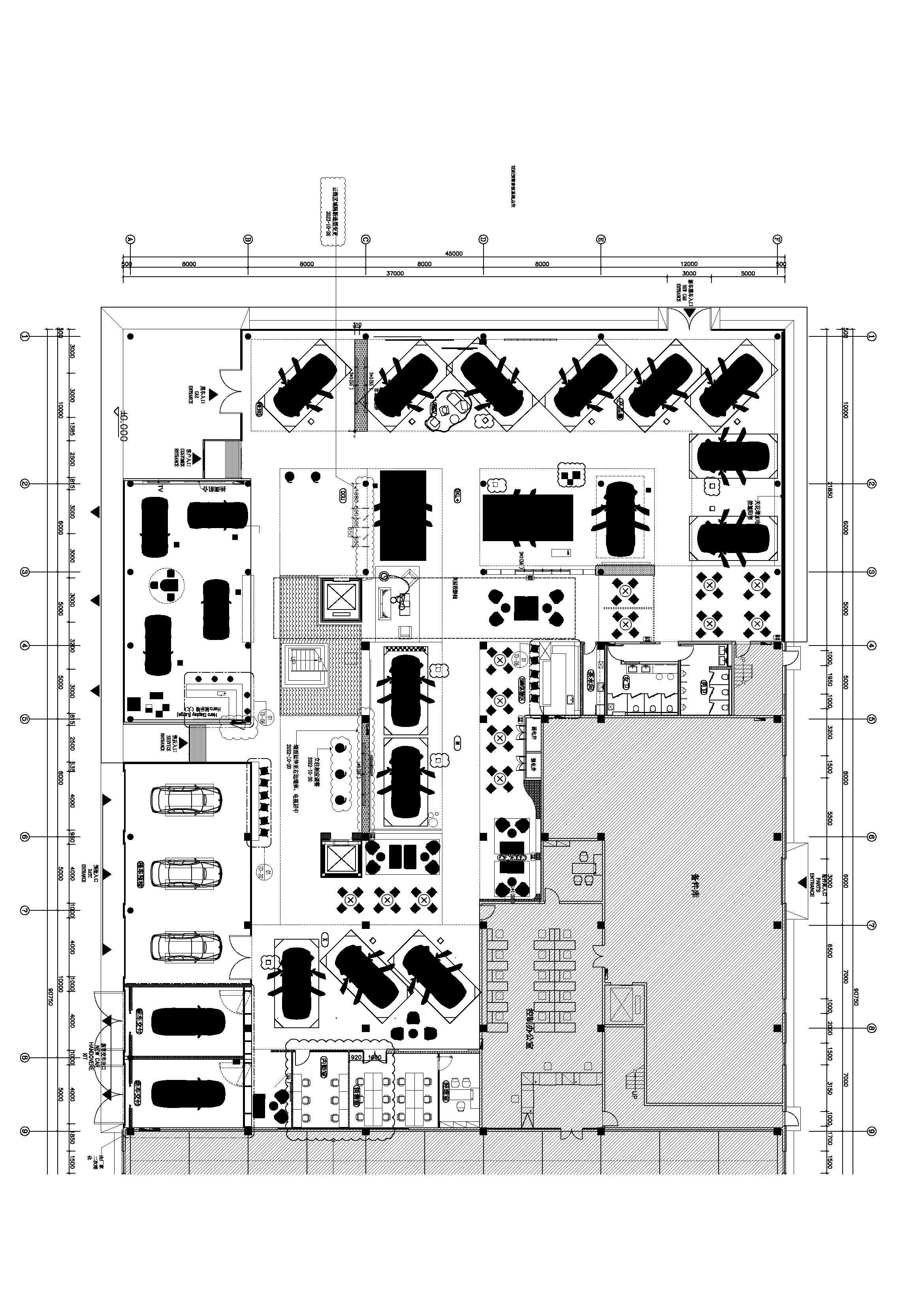
空间布局:整个项目围绕一种独特的、贯穿式的环形动线而设计,一二层的天花板吊顶采用蓝色亚克力透光板覆膜,其造型既象征BMW赛车的动态行驶轨迹,又寓意流动的水波纹,呼应由水幕与水池组成的水系景观,BMW标志性的三色斜杠化身隔断傲立水畔,本体与镜像相映成趣,于静态中体会动感。步入二层,极具质感的原木风客休区先声夺人,轻松的基调油然而生。莫兰迪色系的桌椅有致摆放,设计师透过纯粹的材质、多元的布局、雅致的陈设,创造一个充满自然与愉悦的场所。 拾阶而上,二层半的位置设有餐厅及功能展示空间,大幅的落地飘窗既让柔和的光线倾斜洒入,也让客人得以将室外美景一览无余。以不同材质、形式的隔断巧妙分区,即使多人的用餐环境,仍能确保客人的私密性和舒适性。
-
设计选材:采用绿色、低碳、可持续能源是BMW公司在全球施工的规章式要求之一,因此,本案将可持续发展的理念贯穿到整个项目的每一处细节。其一,采用LED节能灯具,设计团队对整体照明体系进行了重构,并在高窗位置穿插木格栅,将温润的自然肌理与现代科技融合,让空间能在光影中尽显朦胧雅韵。其二,以水机中央空调代替原有立式空调,并拆除了原先耗能较大的燃气暖气片,有效改善室内舒适度的同时,从根本上降低了能源的消耗。
-
用户体验:首先,设置如此巨大的水幕,其温控、流速、朝向、波形都需要在前期进行大量的测算,才能做好精准的把控。施工过程中,有效利用现成的深度,并在水底安放大块纯黑镜面天然石材,借助光线反射原理,在视觉上强化水系深度。其次,工程造价方面,由于一体成型的亚克力板所需成本超出甲方预算,因此,经过反复论证、修改,设计师将原稿中的版型合理拆分,定制成大小不同的亚克力零件再组合安装,既大幅度降低了成本,又确保了景观美感。
0
0

认证 · 让您身份增值