成都中西医医院改造项目


作品说明
- 项目类型:公共
- 项目地点:成都市
- 建筑面积:4265.0000㎡
- 项目造价:988.0000万元
- 参与设计师:严君 李好 程亮
- 竣工时间:2022-09-26
- 设计机构:四川省建筑设计研究院有限公司
票数 : 2049
-
项目定位:本项目于2022年11月建成并试运行,本项目定位为打造中医药文化浓郁的中西医结合服务区,满足民众多样化、差异化、个性化健康服务需求。
-
空间意境:项目方案整体以去医院化的医疗环境为设计思路,以现代化的设计语言结合中医传统文化和理念,以现代中式·东方美学——中医与城市文化、地域元素之间的碰撞为设计主线,提取自然元素中的色彩,色调在雅灰色的基础上传达温馨与舒适感,适当运用亮色进行跳色对比。软装配饰上运用金属质感,赋予空间层次与品质。
-
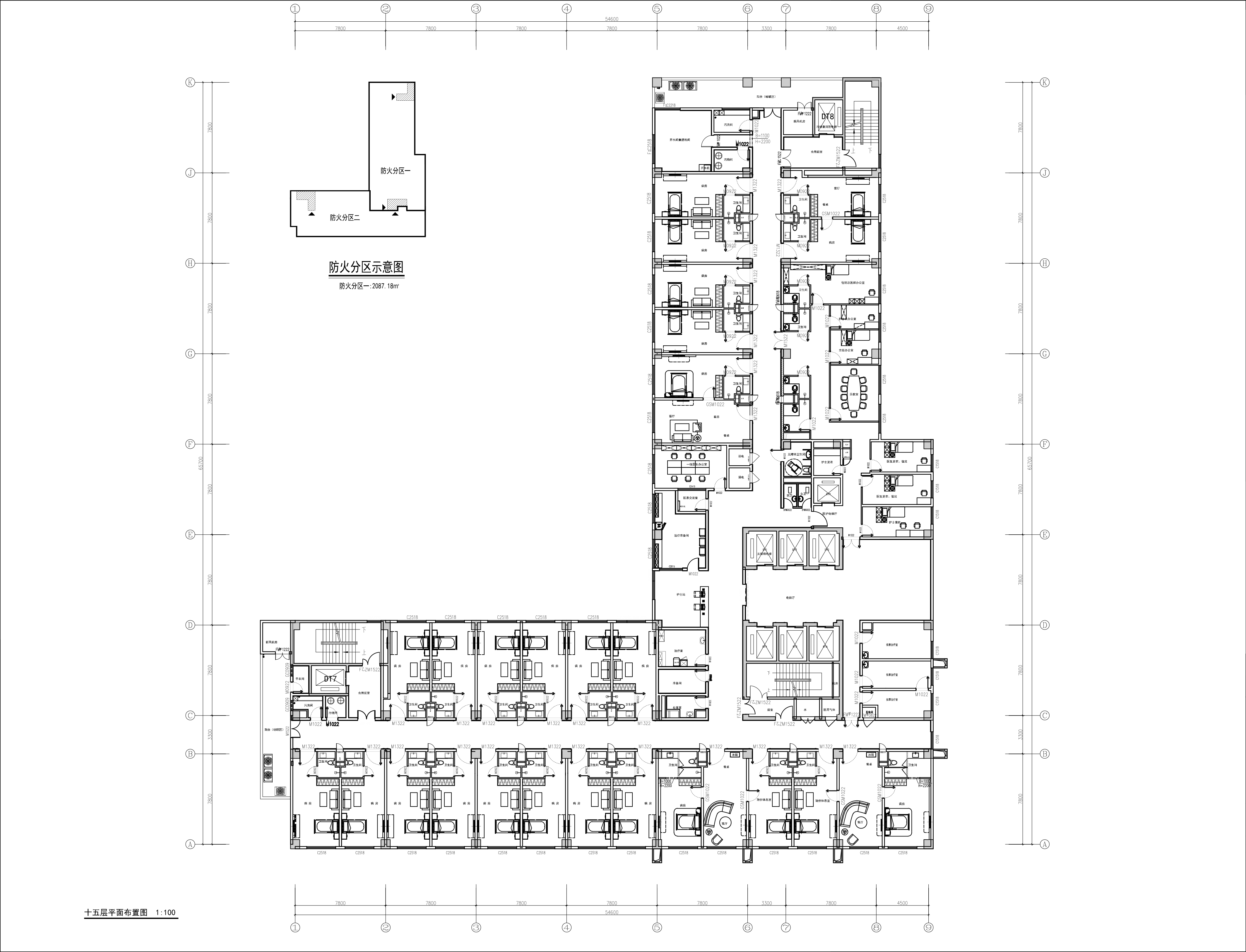
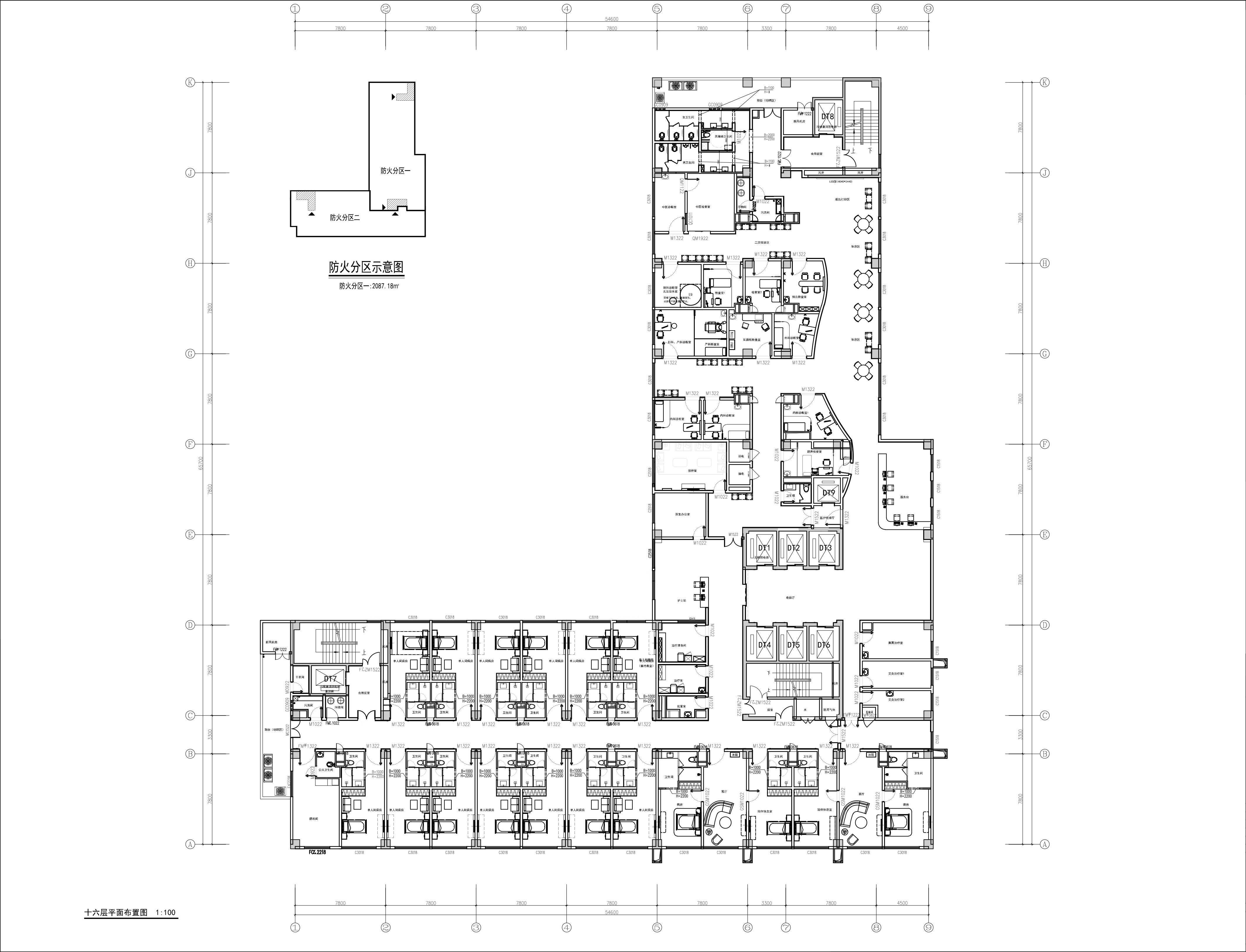
空间布局:本项目主要针对15-16层27间单间病房、8间套间病房及公共区域进行打造提升。改造后的病区布局有良好的私密性,具备酒店式及家庭式的环境氛围,病房配备完善的医疗设备、家庭化、智能化服务设施。公共区域的布局上打破传统陪护格局,为陪护家属营造一个有温度的休息环境。
-
设计选材:项目运用环保舒适、节能化、耐久性好的材料,体现人本关怀,处处细节体现国际化品质和精细化的设计,达到了去医院化的效果。天花设计上以天花以轻钢龙骨石膏板、斜角暗架钢质天花板铝方通等材料吊顶,兼顾吸音、防霉、质轻、易清洁、易切割。小型的公区等候区,采用木纹铝单板,并进行穿孔设计。其余走道区域, 采用模数化的钢制板、米色及木纹色彩穿插搭配。地面材料以PVC地板、锁扣式SPC木纹地板为主,考虑抗菌和抗酸碱能力,以达到无菌的要求,避免医院内交叉感染的发生,同时要求地材能有效降低噪音并防滑。
-
用户体验:项目坚持“一切以病人需求为中心”, 从医疗环境上提升患者就医体验,多方位满足患者身心健康需要,为医院的高质量发展添砖加瓦。

