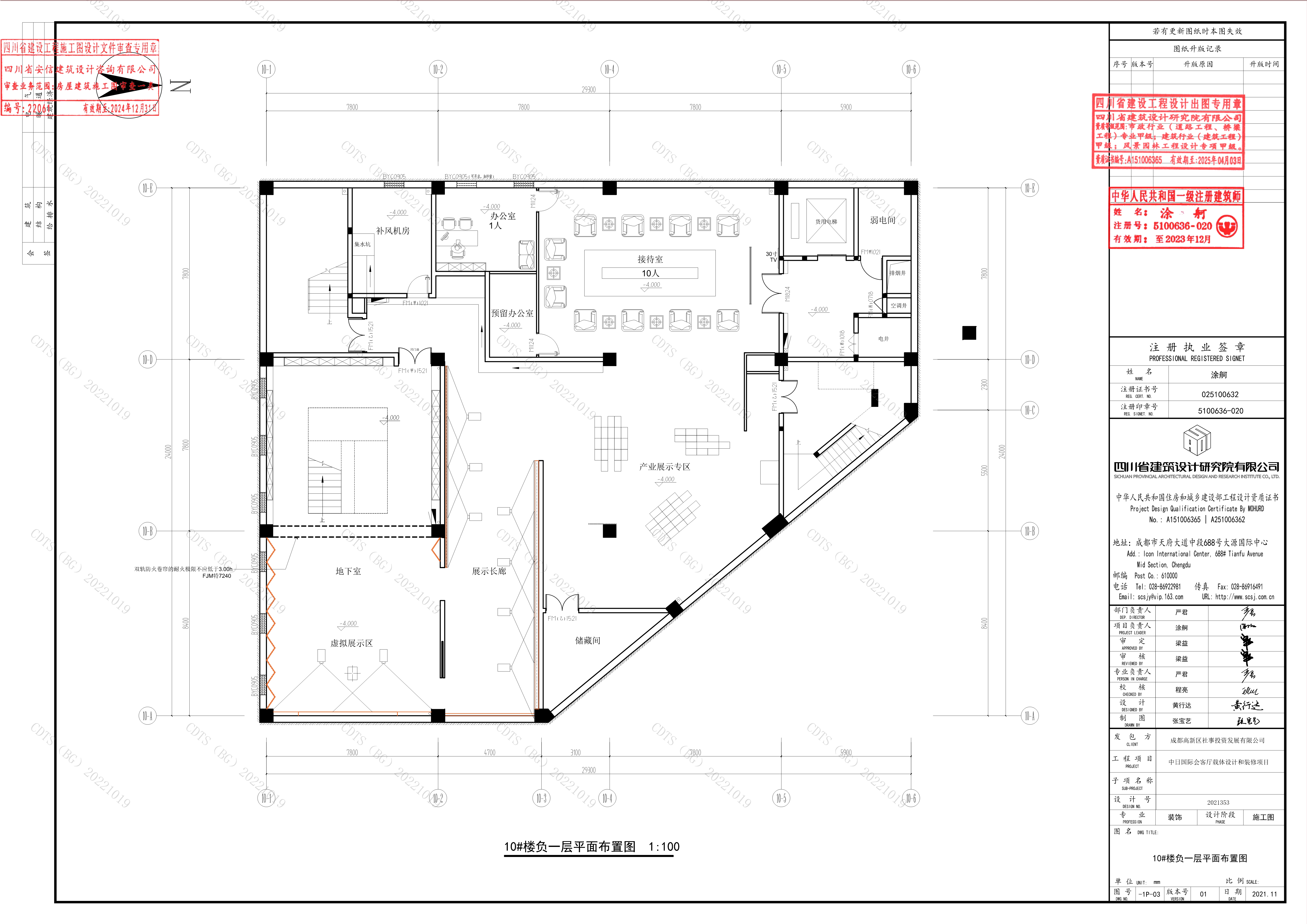
中日国际会客厅设计


作品说明
- 项目类型:餐饮
- 项目地点:成都市
- 建筑面积:1847.0000㎡
- 项目造价:550.0000万元
- 参与设计师:严君 黄行达 程亮
- 竣工时间:2022-03-04
- 设计机构:四川省建筑设计研究院有限公司
票数 : 2066
-
项目定位:该项目定位为一个高品质、集中展示唐宋文化、促进中日两国交流的场所,同时也是成都高新区展示自身发展成果的重要窗口之一。因此,设计的策划和定位应突出唐宋文化的韵味和特点,强调文化展示和互动的功能。同时,考虑到成都高新区的发展成果展示需求,设计应体现出现代化、科技化的特点,展现出高新区的创新和发展成果。
-
空间意境:为了体现中日文化的融合,建筑外观选择了中国传统唐宋风格与日式相结合的设计,尝试在景观、装饰、器物等各方面挖掘两国文化特质,呈现出一种全新的风貌。项目硬装及室内视觉画面会贯穿使用宝相花元素,以此增添整体的传统古韵感。在建筑立面的设计上,项目整体样式采用了中国传统建筑形式,用木、瓦、土坯墙等材料(仿)作为整体立面效果。在正立面的设计上,模仿了汉至北宋时期惯用的直棂窗做法形成整体竖向格栅,体现了中国传统建筑的特色。为了突出日式风格并兼顾南宋建筑的风格改变,局部使用了南宋时期形成的方格子木窗作为装饰,进一步强化了建筑的文化内涵。
-
空间布局:在空间布局的创新点上,应根据不同区域的功能和特点进行合理规划。例如,在展厅的设计中,应充分考虑展览和展示的需求,采用唐宋风格的布局和流线规划,使参观者能够更加便捷地了解唐宋文化的特点和内涵。在餐厅和酒吧的设计中,应注重营造舒适、时尚、开放的空间氛围,同时保证用餐和娱乐的便利性和舒适性。在包间的设计中,应注重私密性和专业性,提供安静、舒适的用餐环境。
-
设计选材:在选材方面,应注重低碳和经济性。例如,可以使用大量的可再生材料,例如竹子、木材等,以及能够循环利用的建筑材料,例如钢筋混凝土、玻璃等,减少浪费和资源消耗。同时,应考虑材料的耐久性和维护成本,选择性价比高的材料。在照明设计中,应选择高效、节能的照明设备,如LED灯具等,降低能源消耗和维护成本。此外,为了更好地体现唐宋风格的特点,可以选择具有唐宋风格的装饰材料和家具,如仿古砖、木质家具等。
-
用户体验:在展厅的设计中,应考虑参观者的视觉舒适度和体验感,选择合适的灯光、布局和展示方式。在餐厅和酒吧的设计中,应注重营造舒适、愉悦的用餐和娱乐环境,提供高品质的餐饮服务和娱乐体验。在包间的设计中,应注重私密性和专业性,提供安静、舒适的用餐环境。同时,应积极收集用户反馈和市场趋势的变化,不断优化和完善设计方案。此外,为了更好地体现唐宋风格的特点和内涵,可以提供相关的文化解说和服务,让用户更加深入地了解唐宋文化的魅力。

