戴可思梦工厂



作品说明
- 项目类型:办公
- 项目地点:铜陵市
- 建筑面积:34000.0000㎡
- 项目造价:180.0000万元
- 参与设计师:范君健,周炫焯,刘仪婵
- 竣工时间:2023-07-01
- 设计机构:壹所设计工作室
票数 : 0
-
项目定位:戴可思于铜陵设立梦工厂,总建筑面积约3.4万㎡,建设总投资5.3亿元,引进国际先进的生产线和自动化装备,项目生产环境全部达10万级GMP标准。梦工厂将成为展示可持续与高效生产的全球窗口,并为用户提供感知品牌文化的目的地。作为行业标杆的母婴洗护品牌的首个综合型生产基地。源于Dexter秉持“更专业、更温和”的品牌理念和行业属性,由E Studio执笔希望将企业对科技与人文兼优的态度融入设计,以孩童的眼光编织出一个有品牌感知力的新时代办公、生产、生活工厂综合体。
-
空间意境:梦工厂序厅,造型灵感来源于洗护场景中的独特印象,当宝宝在洗护时候,泡泡就像天空的云朵一样温柔环绕。以云的轻盈与自由带来的现代精神启示,使到访者在联想起洗护场景时感受到轻松、柔和的氛围。戴可思品牌天蓝色作为主色调,蓝白极简的强烈空间印象给消费者带来可信赖的品牌感,外立面造型、浅蓝马赛克、镜面白色气泡图案等无不唤醒着到访者对洗护场景的记忆,与品牌互动、与产品互动留下强烈的品牌印象。办公室依旧延续了品牌的母婴属性,运用了温润的基调,让使用者能时刻处于一个舒适、松弛的状态下办公。
-
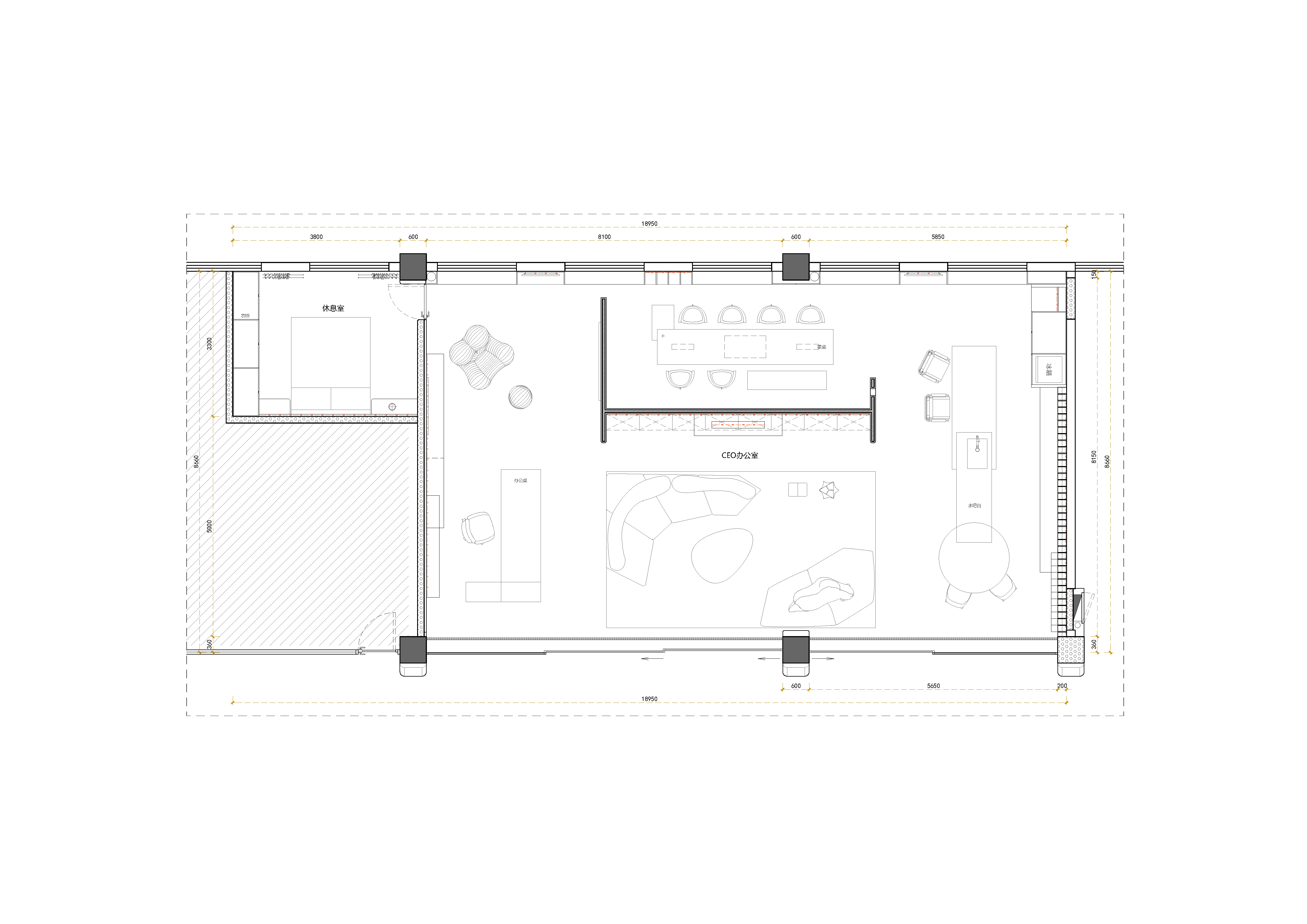
空间布局:序厅以方圆构筑,天圆地方的广阔背景下方形薄片以柔和的光晕悬浮于半空形成守护的图腾,意指环绕与守护。就好比戴可思以天然、安全、有效的产品,全方位温柔呵护宝宝娇嫩肌肤。环绕庭院布置办公空间,四周房间的墙体被玻璃隔断取代,处于室内的视线被打开拉远,最大程度地拉近使用者与景观的距离。CEO办公室设置在院子东北角,开放与私密共存,室内外模糊的边界,庭院景观使办公空间感受得以延伸回归自然,可观可游。以半高木质隔断区划分出一个半私密的茶空间,隔而不断的方式保证了办公室开敞的通透性。工厂配备饭堂和餐厅为企业员工和到访的客人提供了温馨舒适的就餐环境。
-
设计选材:人类离不开自然。室内使用大量真实植物作为点缀,不仅起到装饰的作用, 与品牌可持续发展理念以及整体设计风格风格遥相呼应,更起到了绿化环境、净化空气的作用,减少能源的消耗。
-
用户体验:让企业员工能在自然、轻松、友好的环境中工作生活,满足员工的内心需求。

