KClighting办公室
420
作品说明
- 项目类型:办公
- 项目地点:中山市
- 建筑面积:1215.0000㎡
- 项目造价:200.0000万元
- 参与设计师:范君健,周炫焯
- 竣工时间:2023-07-01
- 设计机构:壹所设计工作室
票数 : 0
-
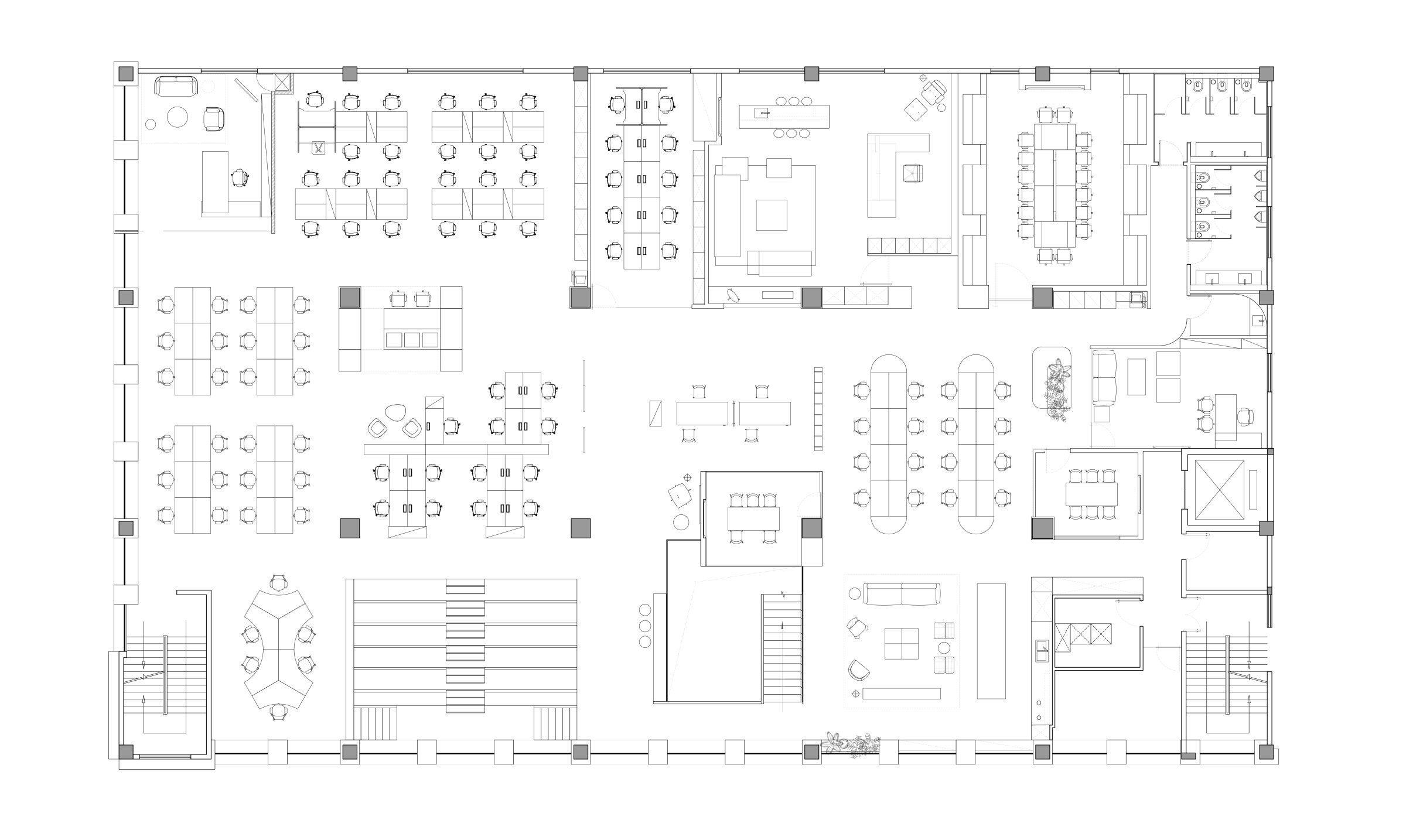
项目定位:KClighting总部园区是由办公楼、厂房、宿舍楼组成的现代化生产办公生活一体化总部,E Studio对整体园区建筑,室内,景观等进行一体化设计规划。国内过剩的房地产导致的大量空置旧建筑,在城市更新需求不断的拆建现状下,针对旧建筑的适应性改造更新并寻找全新的城市工业建筑改造思路是本案的研究方向。办公楼由四层旧厂房改造而成,功能集企业大堂、办公、展厅、实验室和空中庭院于一体。其中二层为KClighting灯具工作室。基于KClighting品牌气质与国际化的创意研发团队特质,整体办公布局策略以人的使用为逻辑,融合灯具产品的应用情景构建出一个可直观感受的灯光研发生活空间。
-
空间意境:粗犷的混凝土与极致的灯具产品碰撞出一个轻松、自由、灵活、艺术的场所,办公氛围侧面体现出品牌理念,比起对外精致包裹着的正襟危坐的商务办公姿态,我们更青睐于创造一个服务使用者迸发灵感的自由之地。建筑原始梁柱网格框架与窗户的关系形成内在秩序,各功能区域的布置自然地在这个基础上进行演化,我们选择裸露的原始天花来加强这种秩序印象,新置入的办公功能则以简洁的体块造型延续KClighting极简的品牌核心精神。
-
空间布局:咖啡区、会议室、脑暴阶梯、研发区散落在空间的各个角落并赋予不同的雕塑性几何特征,相互留出空间并形成空间的分区,空间上消解了大通铺的办公位带来的压迫感。两个楼梯在垂直方向连接了一层大堂与三层展厅,会议盒子就轻盈地悬空在一二层的挑空上,在室内构建出一个立体的垂直城市,丰富办公区域之间的视觉趣味和互动。打通二层与三层的楼板,设置一个开放性的脑暴阶梯连接三层的展厅空间。由阶梯引入三层的光线并增加了空间的开放性。各区域不仅是适用生活办公的空间,也是展示灯光应用场景的重要载体,灯光渲染的情节氛围是最直接的产品介绍。研发部体块像一块黑色纪念碑落在广场中央,宽大的工作台面设置转折的磁吸轨道可快速测试灯具性能,在部门分区之间形成一种开放性隔断方式,转折之间既开放又分离,灯具设计师就在这纪念性极强的体块中办公让灵感可见。
-
设计选材:办公家具采用进口功能桥系统,它灵活增减的特点利于应对企业未来员工人数的变化,也为空间形态的组合提供了多重选择,办公工区之间设置可移动的滑轨手写板为团队的即兴沟通提供便利。
-
用户体验:设计从功能出发,但最终不应止于解决功能性的问题,在人们对美学评判更加包容的今天,办公场所不再囿于传统的单一办公模式,而是从使用者的需求出发不断尝试更加多样化的办公体验。3年來,E Studio与KClighting保持着长期的战略合作关系,从品牌、展厅、企业总部、展会以及办公等进行全方位的品牌建设与布局,持续输出创意性的话题,将品牌不断打磨,是企业与全案设计实践的一种全新尝试。
0
0

认证 · 让您身份增值