欧文莱



作品说明
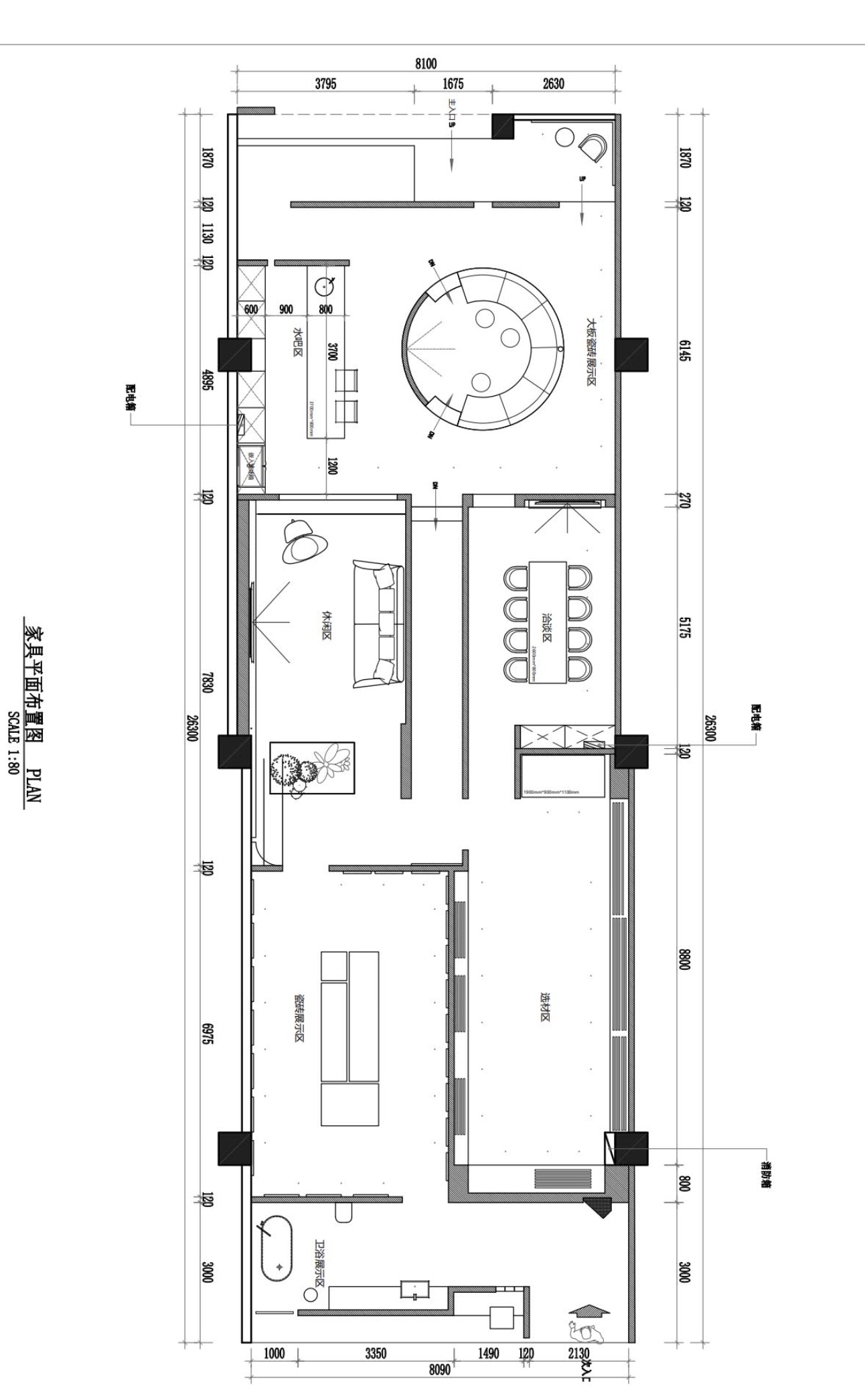
- 项目类型:零售
- 项目地点:宜宾市
- 建筑面积:210.0000㎡
- 项目造价:120.0000万元
- 主案设计师: 王晓樱
- 竣工时间:2023-05-10
票数 : 1
-
项目定位:好的设计,是源于对当代市场趋势需求的解读和美好生活方式的诠释。我们用欧文莱素色瓷砖的产品本身,来为宜宾欧文莱体验店提供了更好的表现力窗口,呈现出一场设计、美学、生活相互交织的感官盛宴。
-
空间意境:欧·亨利说:“美是完善无缺的自然;圆形是它的主要属性”,中国汉字“圆”,也有对圆满如月的光明追求的表达。圆形的下沉式休闲区,利用高度差的手法为大堂带来层次化的完美表现,与众不同的设计方式,给客户打造出不一样的沉浸式的体验,用足够的仪式感去打动人心。
-
空间布局:灰色弧形沙发休闲随意,白色艺术漆面投影墙柔和温润,顶部喇叭口暗光灯与地面弧形设计呼应,不仅提升视觉高度,防炫灯光局部照明,更显层次分明,降低压迫感。所有要素构成了一个平和舒适的展示、接待、办公空间,使接待更轻松,汇报更自如。
-
设计选材:瓷砖 艺术漆 不锈钢
-
用户体验:通透、细腻、时尚、温度……整个体验店整体兼顾了观赏性、舒适性与功能性,在刚柔并济之下融汇共生,淬炼成独属的城市美学,尽享不同的理想生活状态。

