塔塔西庄园



作品说明
- 项目类型:休闲娱乐
- 项目地点:广州市
- 建筑面积:200.0000㎡
- 项目造价:100.0000万元
- 主案设计师: 曹劲麟
- 参与设计师:张智宇、何嘉雯
- 竣工时间:2023-10-30
- 设计机构:广州市正在室内装饰有限公司
票数 : 5
-
项目定位:TTC项目的定位是为客户提供一个优雅的交流空间,一片孕育浪漫主义的土壤。项目的主理人表示,TTC 品牌引申是Time to communicate,一个让大家能畅快沟通的地方。同时, 他希望这是一个让客户招待朋友时候,会让朋友有『被重视』的感觉。
-
空间意境:基于建筑物的商业性质和外观特性,「正在设计」把设计目标定义为『庄园』的感觉,庄园风格通常涉及到豪华、宏伟和优雅的建筑设计,反映了贵族或富人家庭的社会地位和财富。
「庄园manor」通常指的是一座宏伟而庄重的住宅,往往是欧洲贵族或富裕人士的居所,庄园代表着主人的社会地位、财富和权力。同时, 庄园在文学和艺术中常被描绘为富丽堂皇的场所。
-
空间布局:“大院人家,马车停顿,主人归家,仆人已早早等候在门口迎接,走进大门,放慢脚步 带着经典和优雅的木质色调,感受惬意生活,满满的仪式感。”
当客户带着朋友回到『自己的优雅庄园』,归家的喜悦在各自的心中荡漾开来。
TTC是项目名称,同时也是其品牌文化,目的在于提供消费者一个优雅的交流的自由空间。
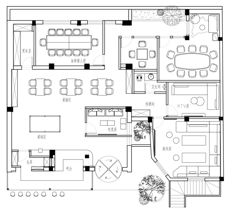
通过分析不同的桌游,比如棋牌游戏、策略游戏、电子游戏等,我们划分了很多游戏房间,而每个消费者都是一个游戏角色。我们的设计能让每个消费者寻找到他自己独一无二的位置。而每个独一无二的位置相互关联,形成一个巨大的网。网中的每个人都能观察、交流亦或参与到他人的活动中去。 -
设计选材:选用了大量预制型材,降低工程成本,及有效缩短工期。
-
用户体验:“摒弃繁琐,一切从简,正如旅行时的心态一样,放空自我,逃离生活的琐碎。我们的初衷是打造一个既浪漫又有故事,有腔调还符合当代气质的聚会地。理想主义的花,最终会盛开在浪漫主义的土壤里,我们的热情也永远不会熄灭在现实的平凡之中。”

