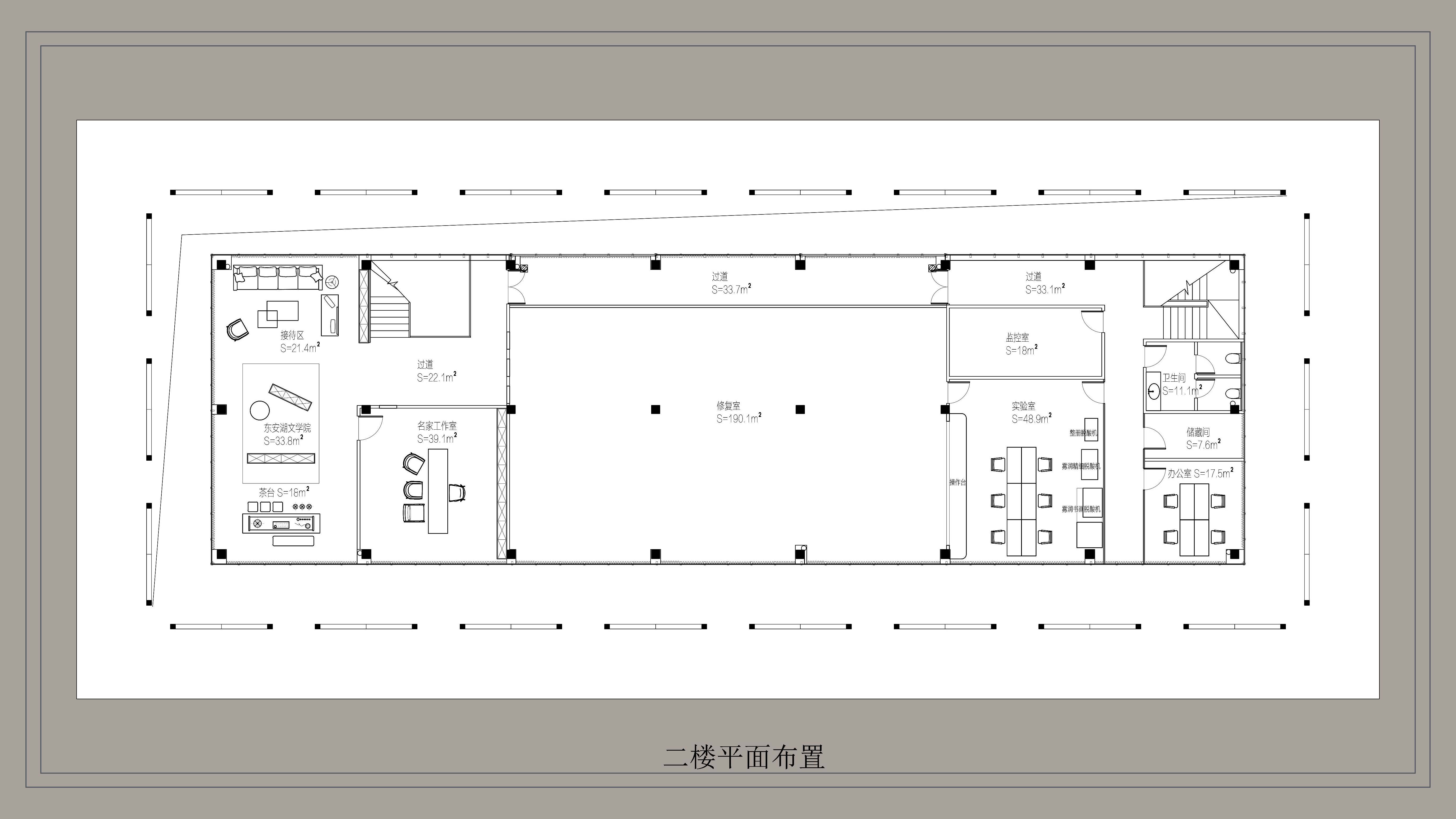
古籍修复沉浸体验馆



作品说明
- 项目类型:展示
- 项目地点:成都市
- 建筑面积:1600.0000㎡
- 项目造价:400.0000万元
- 主案设计师: 张兰屹
- 参与设计师:李菼
- 竣工时间:2023-04-20
- 设计机构:成都同睿室内设计有限公司
票数 : 0
-
项目定位:互动与参与:与传统的古籍修复展示方式不同,沉浸式体验馆强调观众的参与和互动。通过设置实操工坊、演示平台等,让参观者亲身体验修复古籍的乐趣和技艺,更深入地理解这一过程。
教育与培训:作为教育和培训的一部分,该体验馆不仅向公众展示古籍修复的魅力,还承担起培养潜在修复人才的责任。通过专业指导和实践操作,培养对古籍修复感兴趣的人,为这一领域输送新鲜血液。
文化传承与传播:作为文化传承的重要载体,古籍是中华文明的重要组成部分。通过沉浸式体验,让参观者更深入地了解古籍的历史、文化内涵以及修复的重要性,从而促进文化的传播和继承。
科技与艺术的结合:利用现代科技如虚拟现实、增强现实等技术手段,为参观者呈现一个既传统又现代的修复体验环境。参观者可以借助技术手段亲身体验古籍修复的各个环节,使得这一过程更加生动和有趣。
设计与环境:在空间布局、氛围营造等方面下功夫,为参观者创造一个舒适、有特色的参观环境。结合传统元素与现代设计理念,使体验馆既有古典韵味又不失现代感。 -
空间意境:融合传统与现代元素:在设计中巧妙地融入传统建筑风格和装饰元素,同时结合现代审美和科技,创造出一个既具有历史底蕴又富有现代感的空间环境。
生态与自然的理念:在空间布局和装饰上,注重使用自然材料和绿色植物,营造出一个与自然和谐共生的氛围。同时,通过引入自然光和绿色能源,体现对生态环境的尊重和保护。
科技与艺术的结合:运用现代科技如虚拟现实、全息投影等手段,为环境增添艺术性和趣味性。参观者可以在互动中体验科技与艺术的完美结合,感受现代与传统的交融。
地域文化的体现:在设计中融入地域特色和民族文化元素,使作品具有鲜明的地域特色和民族风格。通过展示当地的历史、风俗和文化,增强作品的地域认同感和文化魅力。
人性化与舒适感:在环境设计中充分考虑人的需求和舒适感,创造出一个宜人的空间环境。从色彩搭配、照明设计、家具布局等方面入手,为参观者提供舒适、便捷的参观体验。
创新材料的使用:在材料选择上勇于尝试新型材料和创新技术,使作品在材料运用上具有前瞻性和独特性。通过与传统材料的结合,创造出独特且富有创意的环境风格。 -
空间布局:开放与流动的空间设计:作品采用开放式的空间布局,使得空间通透、明亮,增强视觉的延伸感。同时,通过流线型的设计,使得空间在满足功能需求的同时,也具有动态的美感。
功能性与主题性结合:在空间布局上,注重功能性与主题性的结合。不同的空间区域有着明确的主题和功能定位,如展示区、互动区、休息区等,使得空间布局既合理又有趣。
隐喻与象征的手法:通过隐喻和象征的手法,赋予空间更深层次的意义。例如,利用特定的空间形态、装饰元素或灯光效果,表达某种情感或寓意,使空间不仅仅是物质的存在,更是情感的载体。
动态与静态空间的平衡:在布局上注重动态与静态空间的平衡。静态空间如展品区、阅读区等需要给予人安静、舒适的氛围,而动态空间如活动区、咖啡区等则需要有活力、动感的元素。通过合理的布局,使两者达到和谐的平衡。
空间的灵活多变性:作品的空间布局应具有灵活多变性,以满足不同活动和需求的变化。通过可移动的隔断、可调整的家具和设施,使得空间能够在不同的场景下呈现出不同的布局和氛围。
空间与自然环境的融合:在布局上注重与自然环境的融合。利用自然光、自然景观等元素,将室内外空间有机地结合起来,营造出一种与自然和谐共生的氛围,增强空间的自然气息。 -
设计选材:首先,选用的材料是传承传统的建筑材料以及古老的工艺处理,所以是低碳的,这意味着它们在生产、使用和废弃处理过程中产生的碳排放量较低。这样的材料有助于减少对环境的负面影响,符合可持续发展的要求。其次,选材应注重经济性。选用的大多数随处可得的普通材料,这意味着在保证质量的前提下,应尽量选择成本较低的材料,以便在满足功能需求的同时,也能降低作品的总体成本。
-
用户体验:从效果上看,作品在投入使用后实现预期的功能,并且使用过程稳定、优越,我们可以认为作品在效果上是成功的。此外,作品还具备一定的耐用性和可靠性,能够满足长期使用的需求。设计使用时间是十年。
业主和参观者对作品的评价整体很满意,达到了预想的效果,满足了业主的要求,同时也兼顾了经济性。

