新鲜誌餐厅


作品说明
- 项目类型:餐饮
- 项目地点:南宁市
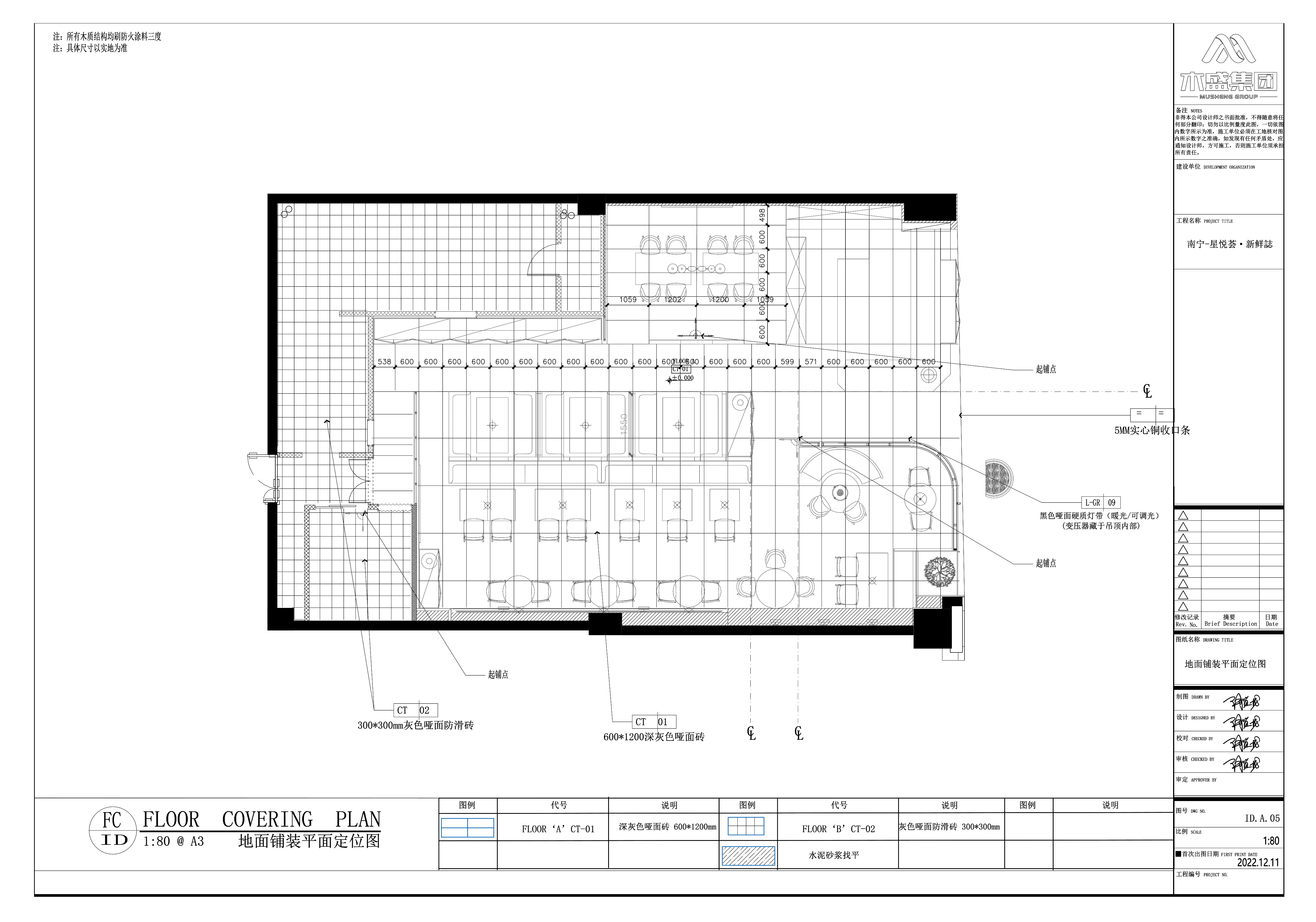
- 建筑面积:188.0000㎡
- 项目造价:40.0000万元
- 参与设计师:陶贤龙
- 竣工时间:2023-01-31
- 设计机构:广西东壹壹装饰设计有限公司
-
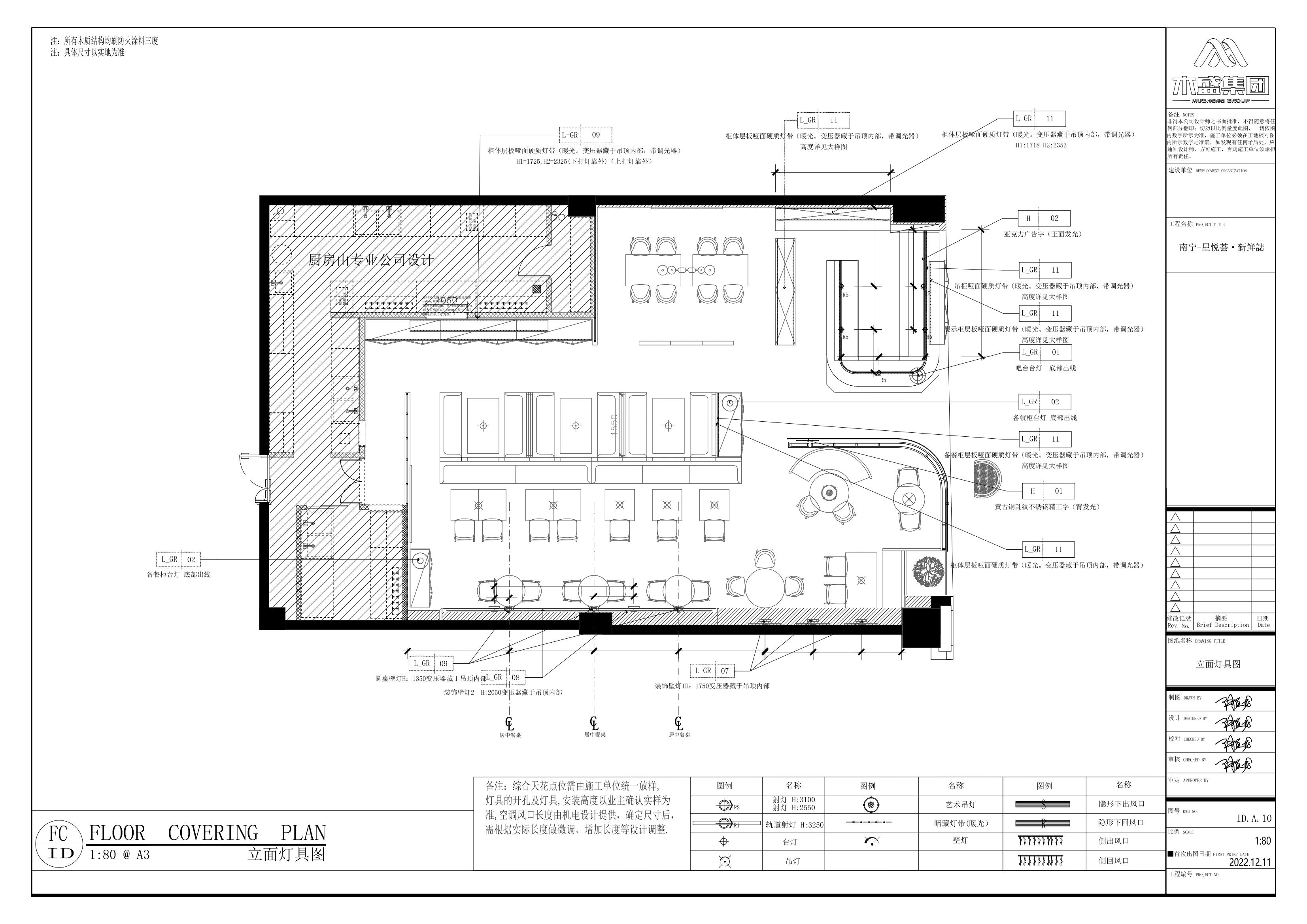
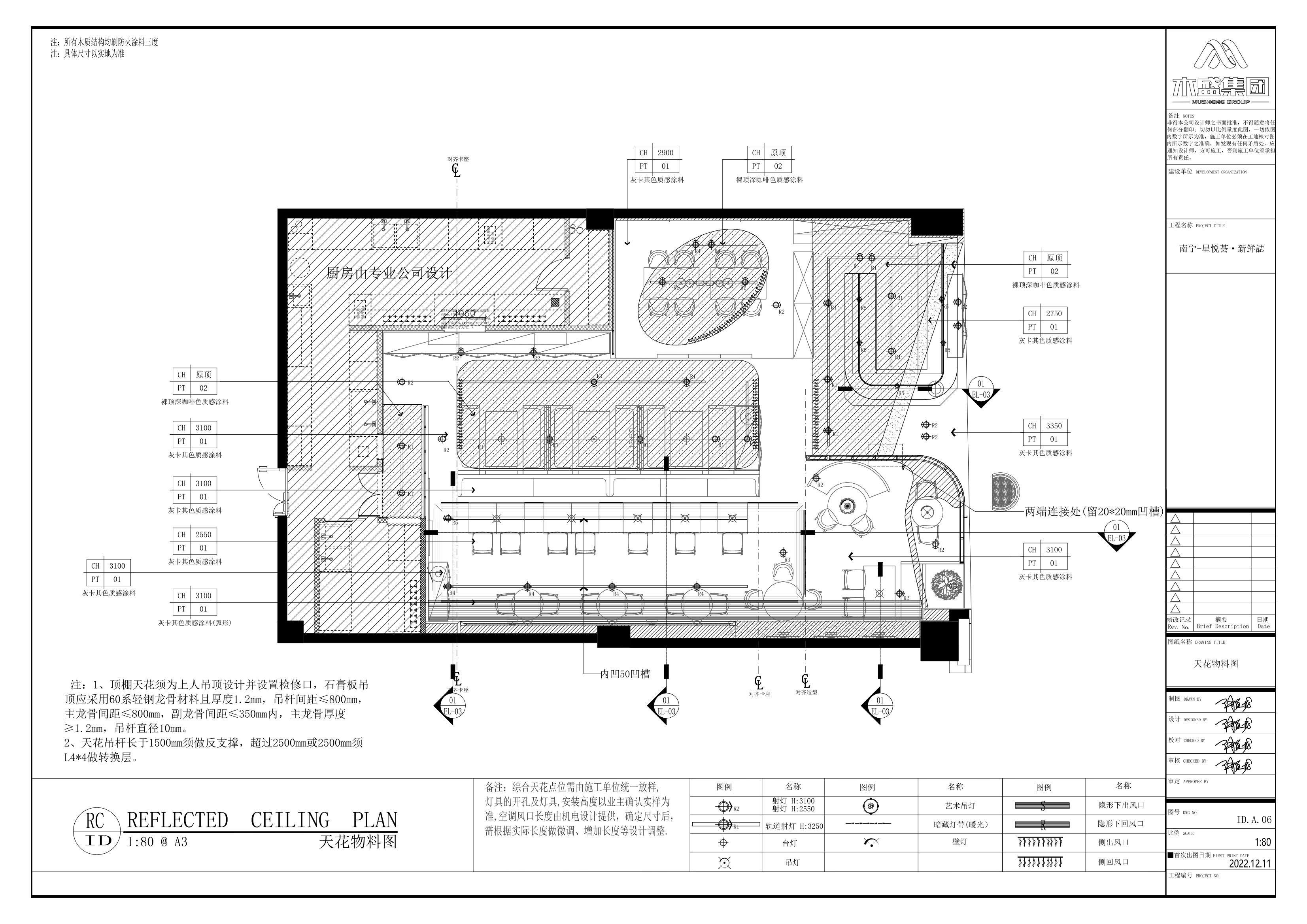
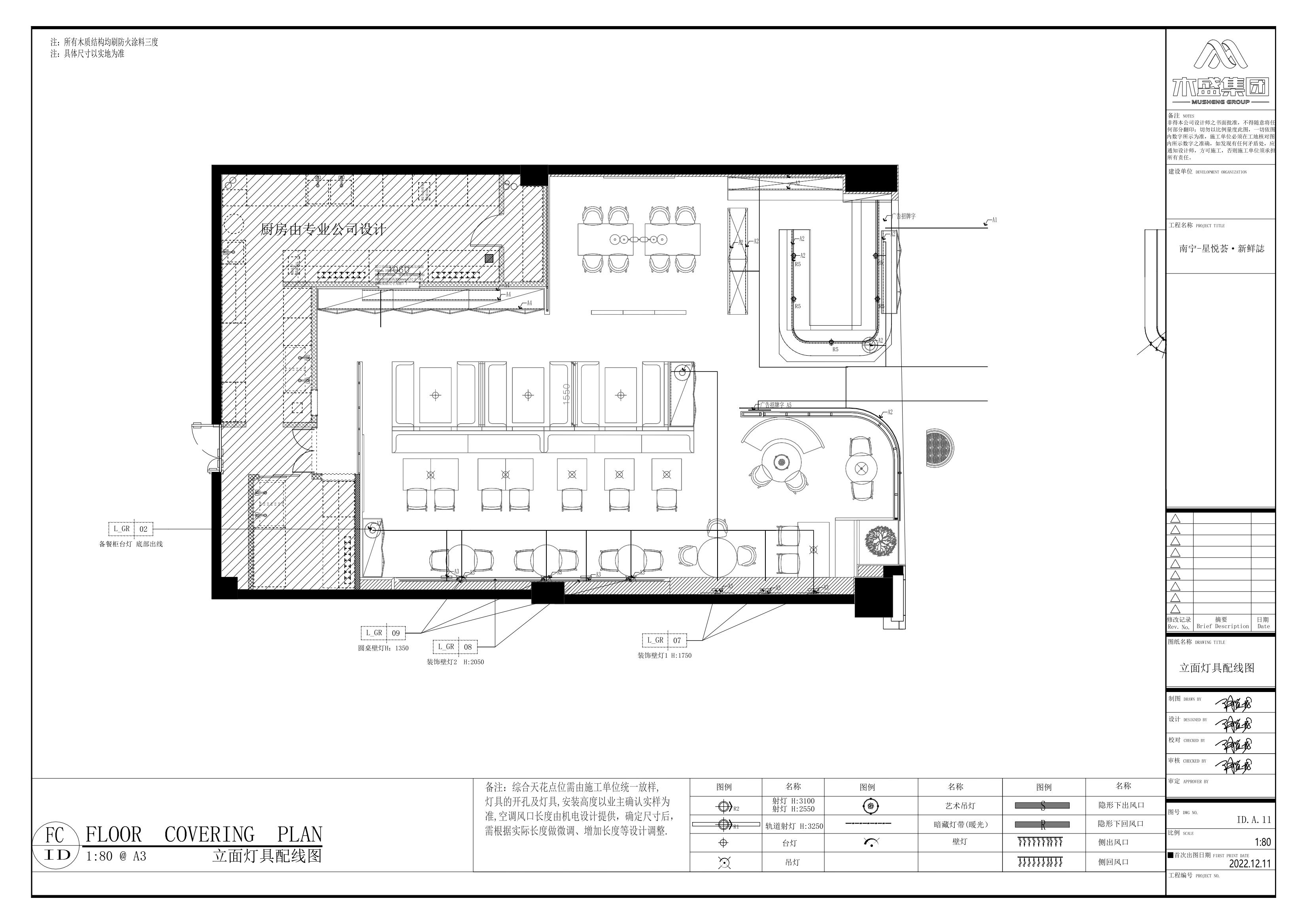
项目定位:在本次设计中,设计师运用了几何的面、线条和圆弧的弧等设计元素,将结构美和立面感融合在空间中。通过使用木饰面、金属和绿色石材的不同组合,整个空间显得轻盈而通透。同时,也适当地对空间进行了减法设计,营造出至简美感。这样的设计不仅注入了空间的轻盈感,还展现了优雅和精致的氛围。在整体色调上,选择了灰卡其色质感涂料作为主调,以蓝色的木质屏风作为点缀颜色,使整个空间更加活跃和有活力。这样的色调符合了新鲜誌营造年轻、有生命力且环保的品牌调性。
-
空间意境:通过大画框和不同组画的搭配,以及异形装饰银镜的运用,创造出了一个具有艺术氛围的空间。这种设计创新点使得整个空间得以延伸,给人一种精巧兼具视觉冲突的感觉。其次,在空间设计中注重个性化要求。通过巧妙地描绘出设计创新点,成功营造出了一种让人仿佛置身于艺术长廊的感觉。这种个性化的设计,使得餐厅在竞争激烈的市场中脱颖而出,吸引了更多的顾客。
-
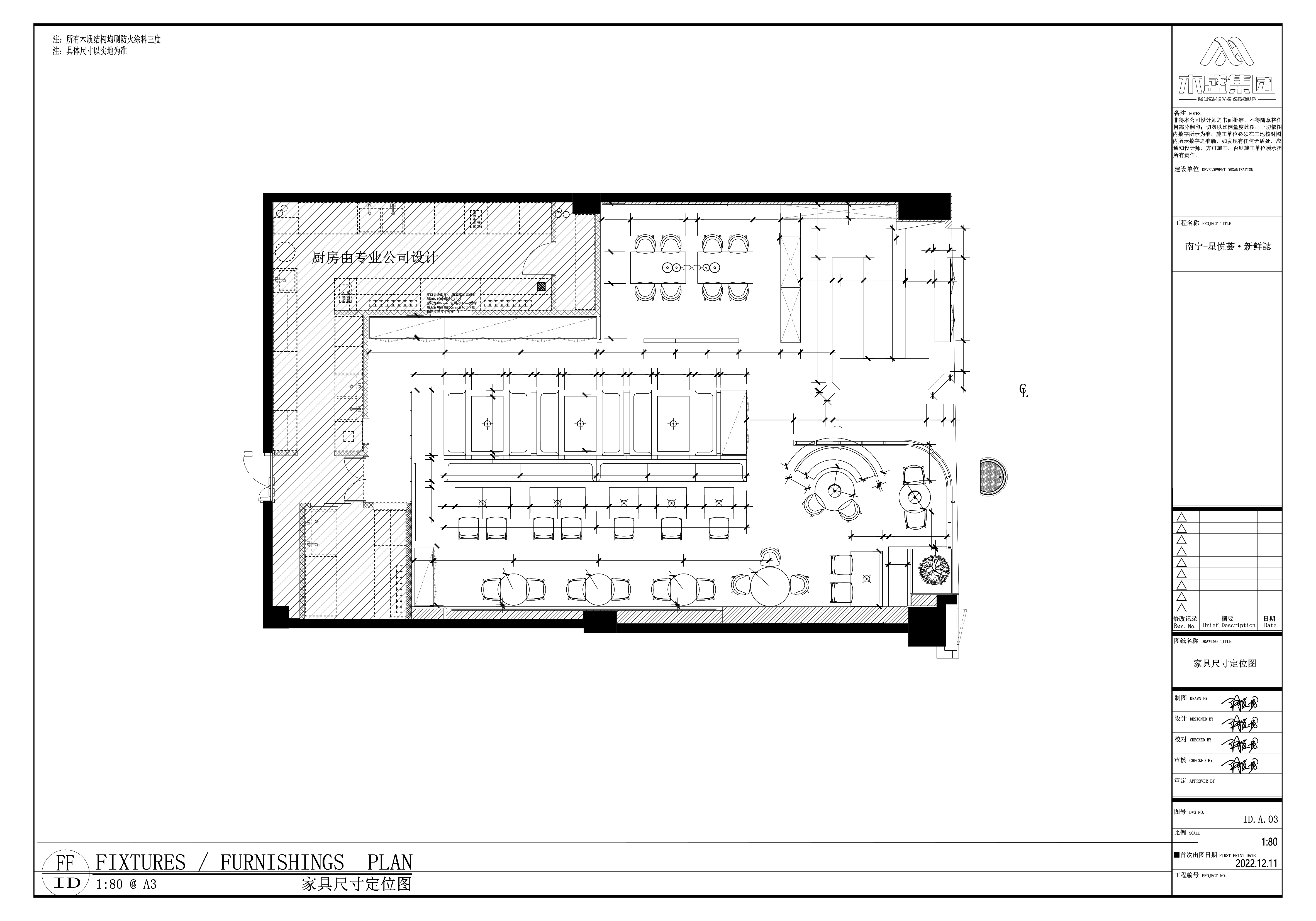
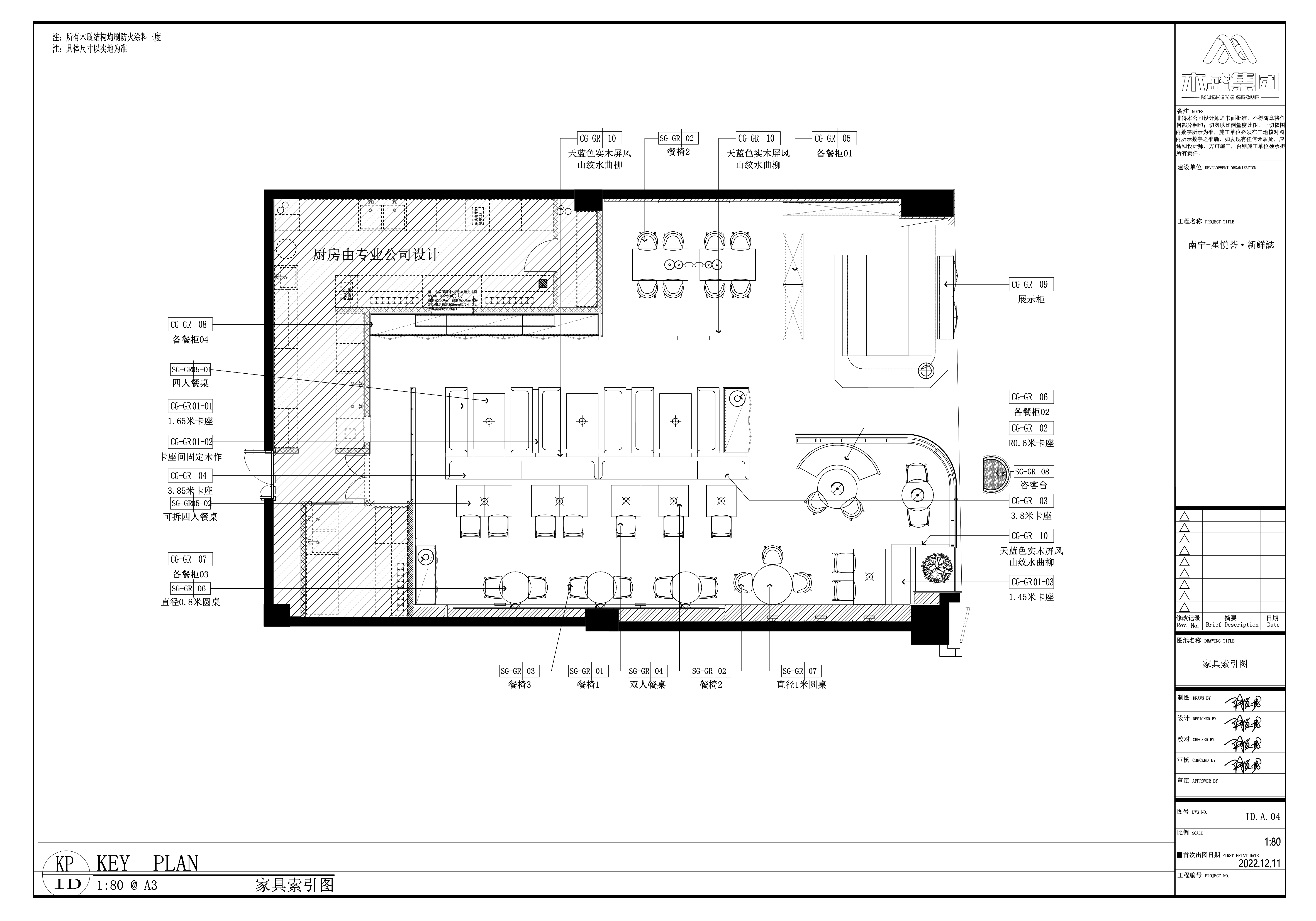
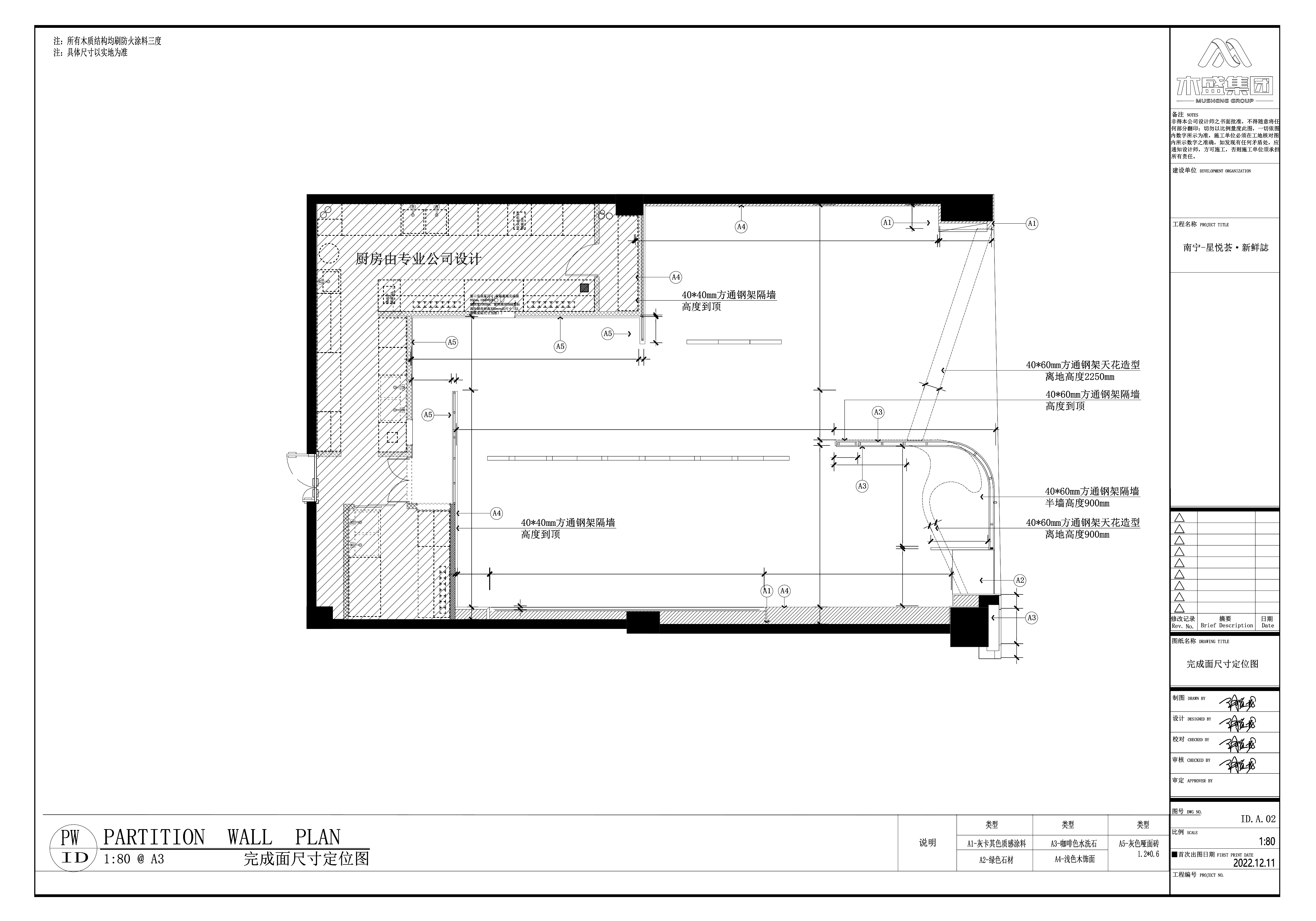
空间布局:在空间布局上,设计师进行了一些创新的尝试。选择了灰色卡其色质感涂料作为整个空间的基础色调,这种色调既能与餐厅的整体风格保持一致,又能给顾客带来舒适的用餐环境。而为了使空间更加活跃、有活力,设计师特意选择了蓝色的木质屏风作为点缀。这种深蓝色不仅能与基础色调形成对比,增添空间的层次感,同时也能吸引顾客的注意力。创造出舒适又有特色的餐厅环境。
-
设计选材:设计师以低碳、环保、经济为基础,在材料的选择上,主要使用了木饰面、金属和绿色石材等不同的组合。这些材料既有自然的质感,又能满足低碳、环保的要求。尤其是木饰面,它不仅给人一种温暖的感觉,还能有效地节约能源。同时,设计师也尝试用这些材料为空间注入一种轻盈而通透的感觉。在空间布局上,“适当地为空间做减法”,避免了过度装饰和浪费。希望通过这样的设计,能够让人在这个空间中,不经意间就能消弭了疲累,将优雅、精致尽然展现。
-
用户体验:设计师深入研究了餐饮行业的最新趋势和顾客喜好,以了解他们对用餐环境的期望和需求。与餐厅经理和团队密切合作,了解他们对空间布局的要求,并确保我的设计与餐厅的运营需求相匹配。运用艺术性的设计手法,将艺术元素融入餐厅空间中,创造独特的用餐体验。设计师注重细节和功能性,通过合理的空间分配和创新的家具布置,提供舒适和实用的用餐环境。在过去的一年中,我取得了以下成果和贡献:设计师的餐厅空间布局得到了顾客和员工的一致好评,增加了顾客的满意度和回头率。餐厅的用餐环境更加舒适和宜人,吸引了更多的顾客光顾。创新设计给餐厅带来了艺术氛围,增加了餐厅的文化内涵。

