梵己展厅



作品说明
- 项目类型:展示
- 项目地点:广州市
- 建筑面积:200.0000㎡
- 项目造价:100.0000万元
- 参与设计师:凌英麒
- 竣工时间:2021-09-25
- 设计机构:之一(香港)设计
票数 : 1
-
项目定位:该项目是一家独立全屋家居定制工作室,进驻到广州国际顶级家居卖场-罗浮宫艺术中心,与众多一线国际家居品牌同台竞争,如何展现品牌特性?如何让本土品牌,不淹没在国际品牌的展厅中呢?以追本溯源和建筑语言出发,通过对形体体量细化,多变的几何形体既作为空间分割又独立于空间中,借助建筑与自然特性打造「建筑客厅」——以光与结构的美,来传达品牌的个性,给常规刻板的商业陈设展厅带来新力量。
-
空间意境:旨在寻求生活中的复杂与简单之美间的平衡,整个作品充满了建筑理性之美,以“体验”为出发点,通过形、声、味、触、听等感官体验来营造出空间的气质,打造出一个由空间体验带动产品消费的场所,将产品完美融入其中。通过极简主义处理手法,摈弃所有的材料装饰,让展厅回归到最本质的光、空间、体量、结构,从而展现空间的艺术感、层次感、空间感,提炼更纯粹的艺术品味。
-
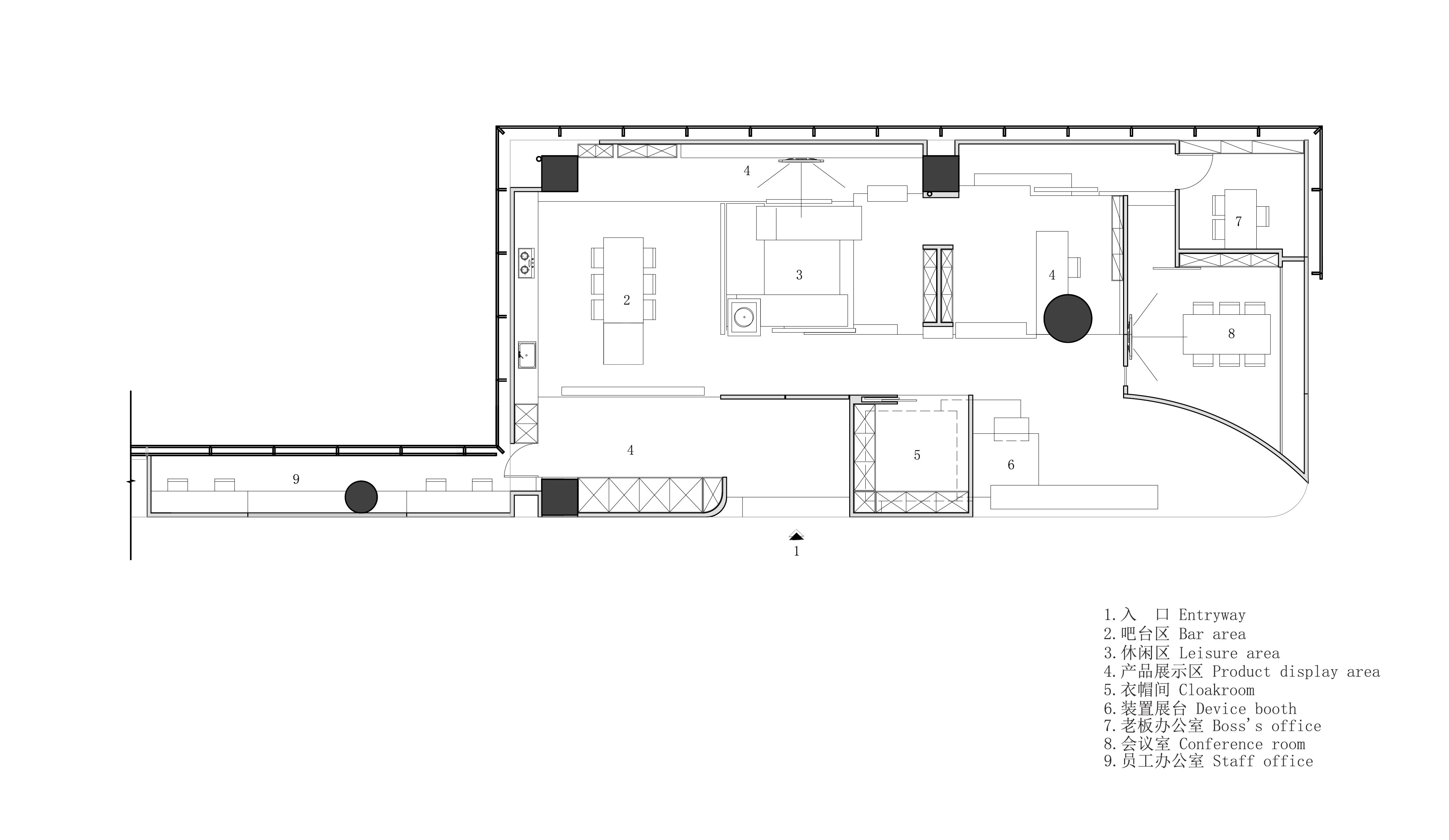
空间布局:1.引入:通过店门造型进行视觉引导的方式,将视觉中心引入店铺内部,营造开放又隐秘的视觉感受,引人入胜。让人经过众多商业气息的展厅后有一个新的发现,如艺术中心般的展厅,更好的烘托产品的艺术性与品质的同时强调材料本身与空间的高度融合。
2.建筑客厅:休闲区摒弃了传统的成品类座椅的形式,将座椅功能融入到阶梯硬装造型中,在满足功能的同时符合空间的整体性。大部分空间由中性色调的微水泥塑造,整体空间墙地壁尽可能在同一调性之中,使空间更加空灵,让人在其中得以体验片刻的宁静,沉寂,从而以这种氛围烘托出产品的调性。
3.“游园”:在布置动线方面采用多动线重组的方式,营造出“游园”的体验感。各展示空间通过拾级而上的跃层空间与悬浮柜体增强空间的联系与互动,模糊了既有结构与布局的界限,并在建筑和场所之间建立了一种新的流动,空间与空间的转换松弛而有节奏。
4.光:书房,仿古砖墙廊道,在使用中沉淀着时间的痕迹,逐渐演化出与建筑体共生的情感与记忆。客厅,引入大量自然光,光影随着时间而变化,与透光灯膜营造出一种太阳光自然照进空间的感觉,以自然的质感与光线给空间最真实的反馈,让人与自然、空间的关系更亲近,给人身临其境的感染力。 -
设计选材:整体空间墙地壁尽可能在同一调性之中,使空间更加空灵,让人在其中得以体验片刻的宁静,沉寂,从而以这种氛围烘托出产品的调性。客厅,引入大量自然光,节省能源。
-
用户体验:模拟庭院和寺庙营造寂静﹑禅意、空灵、幽暗的氛围感 ,以及“阴翳”的意境传达东方意象之美。

