瞪羚谷公共服务空间载体装修项目

作品说明
- 项目类型:办公
- 项目地点:成都市
- 建筑面积:1306.0000㎡
- 项目造价:327.0000万元
- 参与设计师:严君 黄行达 张奎
- 竣工时间:2022-02-24
- 设计机构:四川省建筑设计研究院有限公司
-
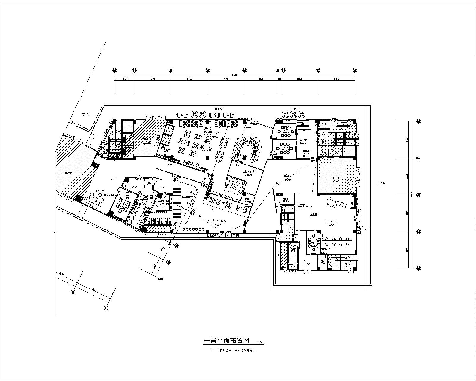
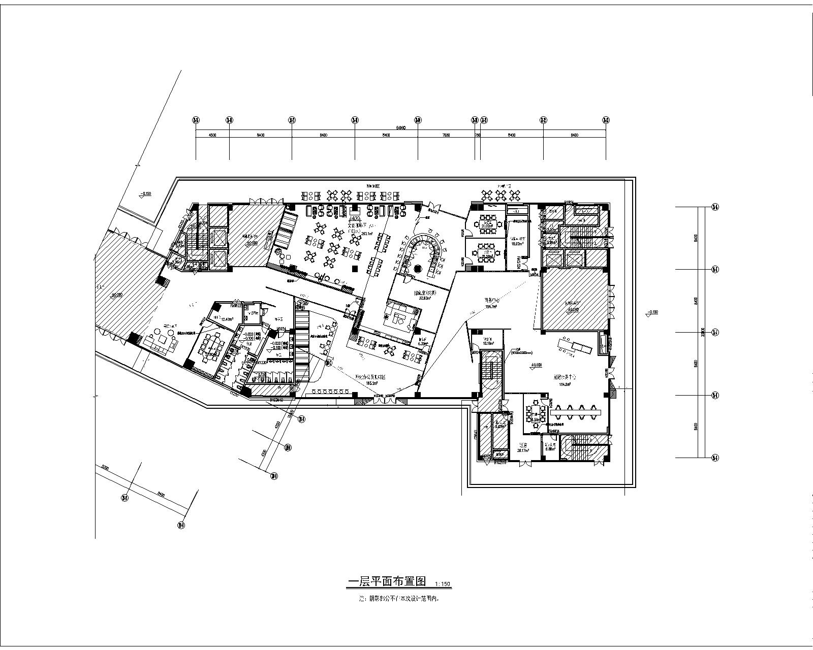
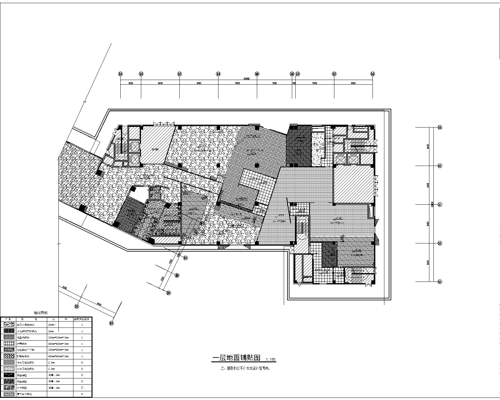
项目定位:打造服务园区日常会议及活动配套需求,支持多业态多形式活动使用。设计功能包括:报告厅、接待室、门厅、休息区、二层培训室等空间功能。本项目装饰面积约1306平方,共2层,建筑耐火等级为二级,抗震设防烈7度。
-
空间意境:服务园区多业态需求,多功能化、开放化、灵活化是设计的核心。注重功能性和艺术性的统一,追求设计与艺术相结合的效果。环保、可持续、节能是设计理念的基础,注重建筑与自然的融合。创造舒适、宽敞、自然的室内环境,注重细节的处理和用户体验。
-
空间布局:运用人工智能技术对空间布局、材料选择、建筑效能进行优化。采用可持续发展的建筑材料,以减少对环境的影响。设计注重实用性,实现多功能区域的灵活转换。
-
设计选材:引入智能化系统,例如智能门禁、智能照明、智能气候控制等,提高空间管理和使用效率。运用虚拟现实技术进行预览,帮助用户更直观地了解设计方案。采用可持续发展的建筑材料,例如再生材料、可降解材料等,以减少对环境的影响。通过绿色植物、自然光线等方式,打造舒适、健康的室内环境。采用可拆装的设计,方便后期调整和维护。以上创新点的应用,可以使得本项目具备更高的智能性、可持续性、环保性,同时注重用户体验,为服务园区的活动需求提供更加优质的空间服务。
-
用户体验:使用可重构的空间设计,使得空间布局和功能可以灵活转换,适应不同类型的活动和使用需求。采用声学材料和技术,优化空间声学效果,避免噪音干扰,提高听觉舒适度。引入物联网技术,实现设备互联,便于空间设施的管理和维护。在设计中考虑安全性,例如设置逃生通道、消防设备等,保障用户的人身安全。引入数字化艺术元素,例如数字展览、互动装置等,提高空间的艺术性和观赏性。

