350㎡湖光山色



作品说明
- 项目类型:住宅公寓
- 项目地点:西安市
- 建筑面积:350.0000㎡
- 项目造价:150.0000万元
- 参与设计师:软装设计师:彭润贤;助理设计师:张泽鹏、王迪
- 竣工时间:2023-09-27
- 设计机构:红杉创意设计工作室
-
项目定位:为一对父母和两个上学的孩子设计的家。因为有公用电梯可以到达各层,所以舍弃了内部电梯,扩大了厨房的使用空间,客餐厅形成良好的视线关系。二层窗户外移到露台,获得功能完备的淋浴、泡澡和桑拿房,居家也能体验酒店般的设备。光和风在这个家中流动,空间体块的交错间视线也延续往来,窗外的风景也投射其间。人与人的互动,人与自然的互动,都在这个家活跃着。
设计师 欧阳子泫 通过巧妙“改造”,层次化屋主的全面生活习惯,通过动线的颠覆重组、细腻关联,围绕“开合” 重点,在不同层楼中展开设计“插曲”,上下左右的纵横关系巧思探索,居住节奏中包裹对每个家庭成员的不同偏爱。
-
空间意境:1、设计师给每个空间都排布“任务”,将储纳和使用都不同程度的安排,负一层空间链接地库入口,较高的层高有了充分的空间使用,搭建的夹层形成了不同的内建筑关系,安排休闲影音区、衣帽间、设计健身馆、储酒间;
2、入户的动线多样化,景观又丰富,因此砸掉电梯井,上下的入户动线都变得通畅,拟自然情境,软膜天花的廊顶如日光,一边搭建,一边注意开放的尺度,上下左右都在克制的打开,弱化地下室的感受,让负一负二空间变成同等有效空间。 -
空间布局:1、设计牵引光进入空间“鸣唱”,空间开始发生变化,变得动态轻盈和无限延展,原始的负一层空间层高有优势,设计师进行了层次搭建,搭建夹层,将休闲娱乐的功能融合居住成员的使用双重考虑;
2、负一层采光井的区域,暗藏很多管道,通过设计的隐藏,同一空间的区别设计,通过不同的材质和地面层次展开,扩大采光面,让负一空间变得明朗舒适,同时增加更多的观景区域,前后左右都能欣赏景观。
3、居住的颠覆性从空间重组开始,一楼的设计改造较大,入户的客卧以及北向的卧室都很小,并且关联的空间都很细碎,设计师从进入的主动线进行全变“变革”,入户的小客房改成茶室,成为公共入户,玄关变得整顿,设计这面墙鞋柜,满足多个家庭成员的换鞋;
4、挑空的区域上下视觉感观都是舒畅的,而一楼的客厅更多的是用来会客。把原始一楼的户外阳台覆盖空间封进室内,变成一层大大的落地窗,人景互动,居住的松弛感在此,成为家里最欢喜的地方。
5、将原始客卫的盥洗池后退缩小,更多的空间让给茶室,因为很多好友和同事都居住的一个小区,串门聚会是常有的事,在一楼客卫设计小便斗,细节上实现便捷。
6、原始的餐厅空间非常小,设计师去掉电梯间以后,进行了区域分割和功能分配,功能一变三,一部分用作客卧衣帽间,一部分切割出冰箱区,还有一部分并入厨房空间,半开放式的厨房充满质感,甚至设计了多功能吧台、可以是早餐台、水吧区、餐边柜,也可以满足更多的储纳。圆餐桌满足家庭成员多的需求,阳台的光影离美食很近,寻常的温暖是日久生情的灿烂。
7、入户的小客房被打开改造成为茶室,满足时常接待朋友和同事串门聊天的需求,舒适中有些许商务感,中式茶室的意韵在此点到为止,也要很整体的气质有连接点,居住的多样化功能完美收拢需求落地。
8、大儿子的卧室被安排在一楼三分离的设计格局,套房的形式,原始电梯的空间设计两个衣帽间,剩余足够的空间留足学习的功能区,空间的格调上冷峻但不失舒适感,留有好的景观视角。
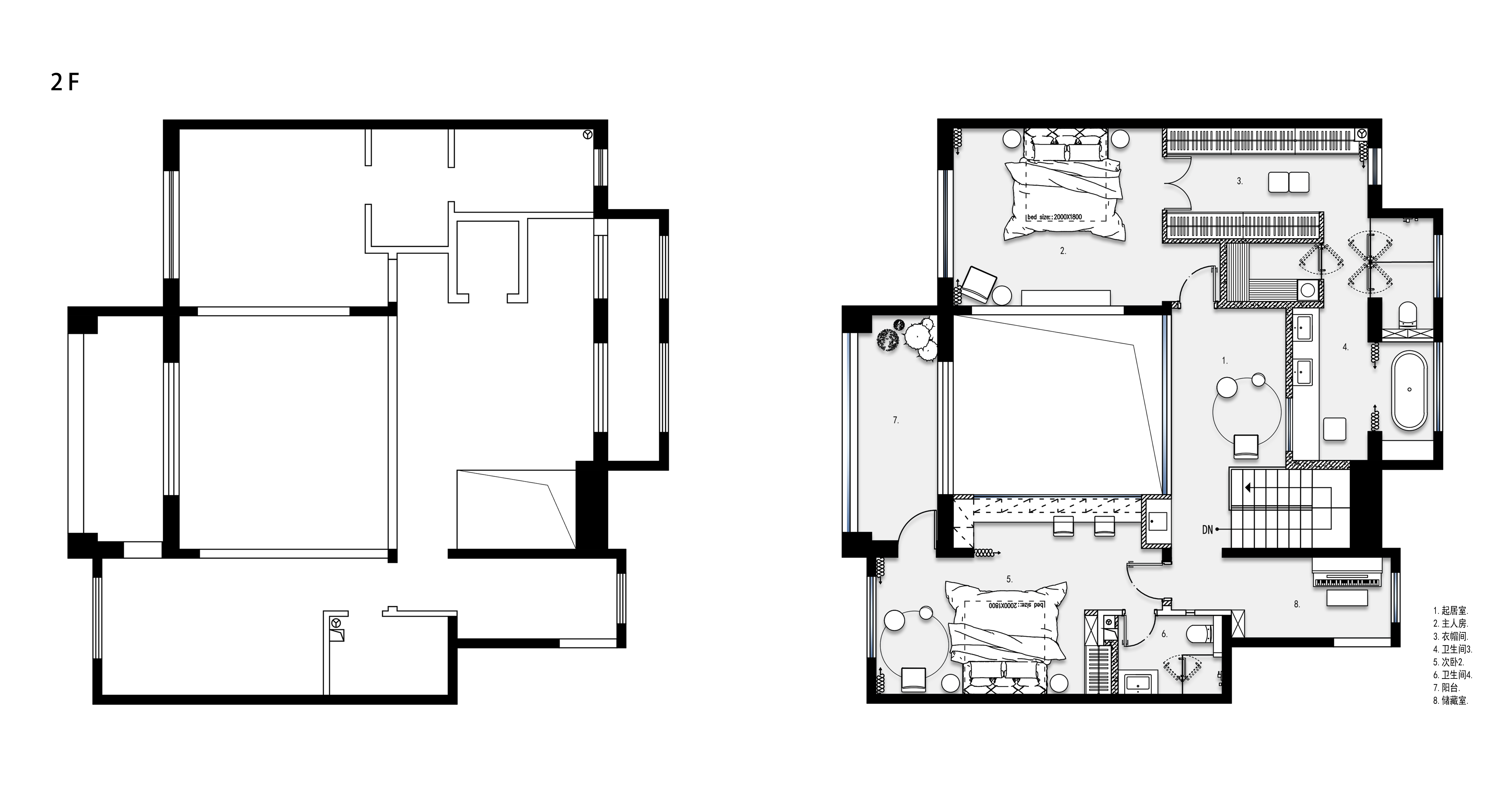
9、设计师希望空间结构的各种关系是为了家庭成员之间的互动而设置,二楼空间,一分为二,承载小儿子和屋主两口子的起居功能;
10、挑空将区域一分为二,一边的盒子空间有趣如魔方,小儿子的卧室安置于此,开水平横窗,电动百叶搭配,储物和学习功能充分考虑,也满足卧室内外的互动。
11、打通二楼的设备阳台,并入主卧卫生间,原始的衣帽间和主卫加上电梯间的空间,改造成为主卫和桑拿房,设计观景的浴缸区,在私属的空间里,以生活的名义化繁为简,让居住变得富有意义。
12、花草盈盈,过闲居慢生活,结合建筑本身的设计风格,庭院做了较多的硬化,以满足更多的使用功能,户外茶区,休闲娱乐运动都能够满足,每个人都能在庭院中找到属于自己的那份悠然惬意。 -
设计选材:设计师为屋主打造类豪华度假套房的起居空间,屋主非常喜欢度假,对于酒店的居住感情有独钟,那种轻松自在和质感便捷是屋主内心所爱;
在选材上,以呈现度假类空间的属性为出发点,也以环保、安全、品质为核心点,家具选择具有原创精神的,有质地的班兰 、可为等。 -
用户体验:1、其实真正意义上来讲,这是我们夫妻两个共同装修的第一套房,在这样的过程中,对欧阳这样的信任。
我越来越喜欢这个家,我觉得回到家彻底的放松,就觉得回家很舒服。我每天就想我别上班了,我家这么舒服的,往年我肯定就会想着计划着要出去玩呀啥的,今年我哪都不想去,我觉得我的家是最舒服的,我就想窝在这沙发上,然后看着外面的绿色,很放松,觉得我家就像在度假。
我真的希望这个时光就慢点,就让我好好享受这种慢的时光,其实我觉得设计团队已经给我创造非常好的条件,我就觉得坐在这里就是好放空,我什么都不想,就觉得很舒服。
我家电视和地毯、沙发是非常舒服,地毯是非常圆满的,跟电视融合。彭彭就特会给我家搭这个软装的,就每一点细节做的都非常好。
2、设计师说:我其实特别想感谢二位,在这个新家里,我们有好多突破性的改动,说真的比如说我们去掉了电梯,扩大了厨房,然后客卫改动成这样,因为当时你们纠结的一个点就是,我把客卫的门是冲着客厅的,然后包括把孩子的房间改出来、扩出来;包括把你们的卫生间扩出来,但是当时我们不是为了改而改而改,是我们分析了很多你们生活层面上的需求,家庭成员可持续性的这种发展,我们通过一个逻辑,得出了最后这样的结果。

