豪帝酒吧
1536
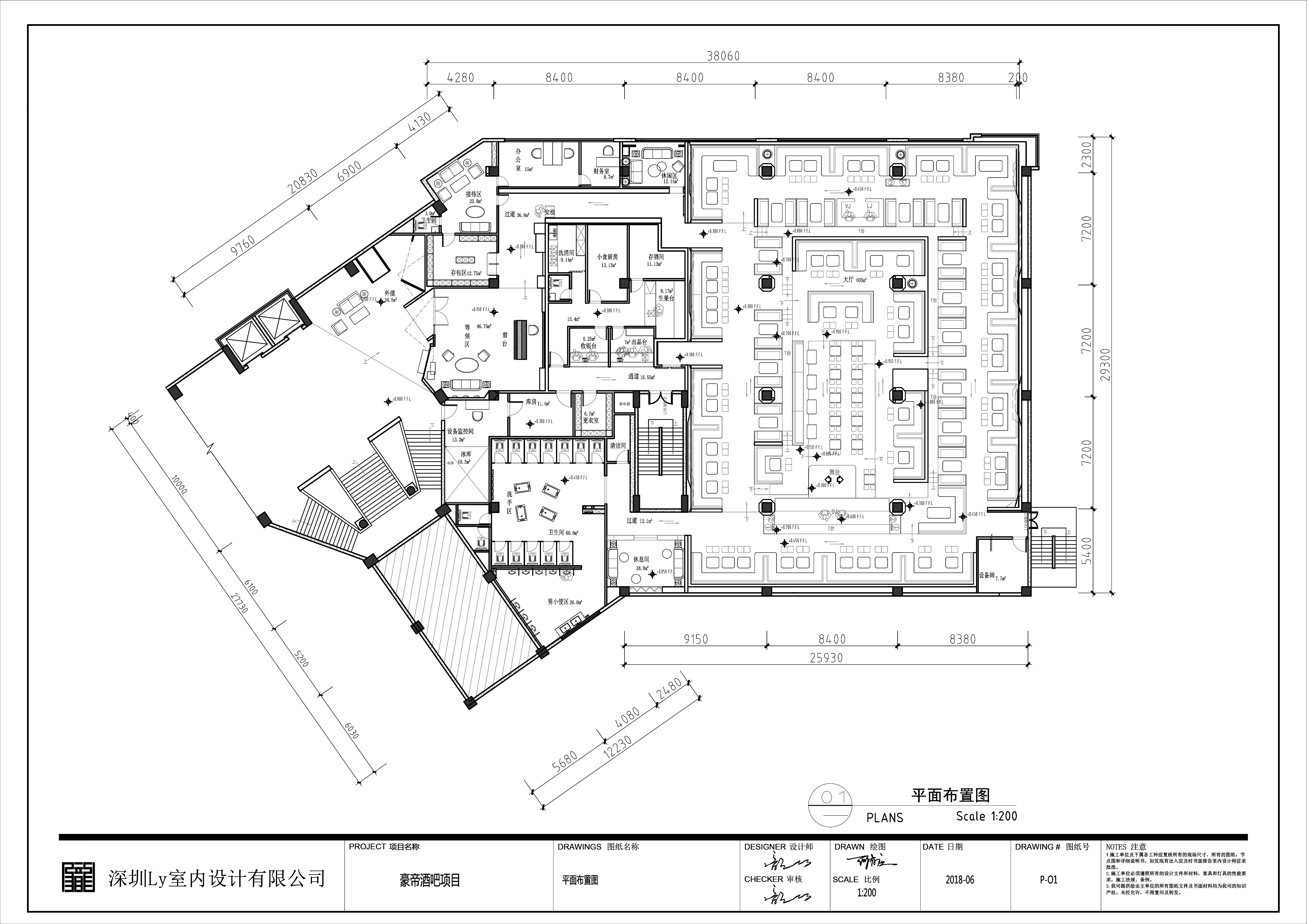
作品说明
- 项目类型:休闲娱乐
- 项目地点:海口市
- 建筑面积:1000.0000㎡
- 项目造价:1000.0000万元
- 主案设计师: 龙丽仁
- 参与设计师:龙丽仁 马莉波
- 竣工时间:2018-11-28
- 设计机构:龙丽仁室内装饰设计有限公司
-
项目定位:构建一个场域,诠释出视觉、空间、精神上的惬意与放松,让完美的空间体验在考究的细节中应运而生。
-
空间意境:全局引人注目紫色主调,一眼看去有种知微见著、层层深入的空间美感,精致中带着让人向往的神秘气息。提取“盒子”作为贯穿整个空间的元素,用连贯的设计手法,对原有的空间进行了重新解读,摆脱了传统酒吧的沉闷感的同时,延伸出有规律的形体来构筑空间的关系。
-
空间布局:通过制造一些极富戏剧感的细节,将抽象的艺术表达转化为可感知的空间意象。设计师借助实物与光影之间重叠的层次与模糊的边界,塑造虚实格局,创造出一个充满质感与深度的酒吧空间。
-
设计选材:室内可见之处极大程度地保留了材料本身的纹理和质感。设计师追求前卫,以水泥漆的斑驳铺开深灰的底色,点缀冷色调的灯光及局部紫色元素,降低了空间装饰的存在感,营造出动感十足的奇妙氛围。
-
用户体验:感觉身处在一个精神世界。除了喝酒放松,整个空间的色调给人放松平静的感官体验,设计师巧妙地融入了眼睛、嘴唇等充满当代艺术气息的画作,通过视觉化的设计语言,打造艺术氛围的同时,也加入了更多人性化考虑。
0
0

认证 · 让您身份增值