树洞
287
作品说明
- 项目类型:住宅公寓
- 项目地点:重庆市
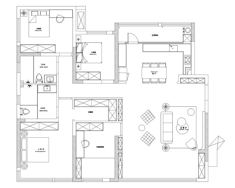
- 建筑面积:150㎡
- 项目造价:40万元
- 参与设计师:杨智慧
- 竣工时间:2022-07-20
- 设计机构:合壹空间设计
-
项目定位:本案主要为一家四口打造的温柔而治愈的居所,能包容一切的温暖的港湾,主要展现出空间的平静而温和,能包容抚平忙碌的疲惫。
-
空间意境:本案的风格是韩式奶油风,整体拥有了奶油风的温馨治愈,又结合了韩式风的干净简约,以及用色的简单统一,让整个空间都显得明亮而通透。
-
空间布局:户型的改造上,让原本就十分宽敞的客厅,更显流畅通透,开放式的厨房设计,更舒适宽敞,整体的储物空间也有大大的提升。
-
设计选材:本案主要以暖调的奶油色乳胶漆以及满屋通铺的人字拼木地板来打造整体温馨舒适的治愈感。
-
用户体验:本案客餐厨一体化的设计是十分舒适的,整体改造后,这个区域就有八十平,留给一家人互动的空间十分充足,以及书房双人的设计,方便两个小孩同时学习。
0
0

认证 · 让您身份增值