浮光
265
作品说明
- 项目类型:住宅公寓
- 项目地点:重庆市
- 建筑面积:268㎡
- 项目造价:140万元
- 参与设计师:徐欣
- 竣工时间:2022-06-22
- 设计机构:合壹空间设计
-
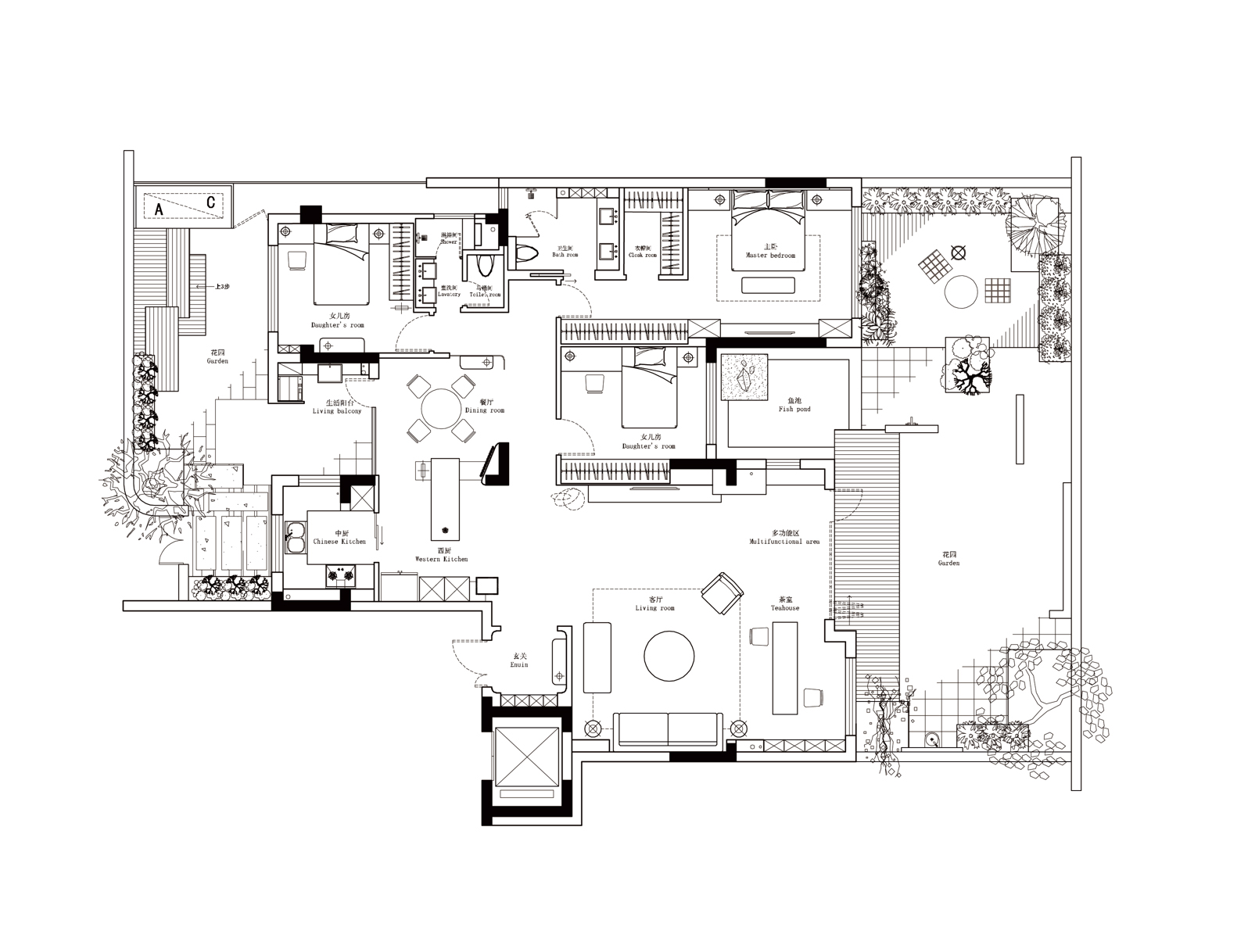
项目定位:本案的主要居住人为一家四口,整体打造的是舒适且有品质的轻奢空间,整体布局会利用户型原有的优势,来扩大屋主的居住体验感。整体空间主打干净雅致,内敛而不张扬的气质。
-
空间意境:本案的风格为现代极简,相较于其他的现代轻奢风,整体空间的通透感十足,用细节彰显轻奢品质,更加低调内敛。
-
空间布局:户型的改造上,能动墙体全拆重新打造。连通客厅外阳台,将客厅空间重新布局,兼具多功能区域与开放式茶室,让整个客厅更通透大气,将厨房与生活阳台连通,且向餐厅延伸,加入西厨岛台,增加了整个厨房的操作空间,也让整个餐厨区域的动线更流畅方便。
-
设计选材:本案的材质主要采用各种纹理自然大气的大理石来营造轻奢的品质感,以及部分玻璃材质,增加空间的时尚感,部分金属质感包裹的空间结构,更具格调与设计感。
-
用户体验:空间的改造布局上,让一家人的互动性增强,特别是客餐厨的改造设计,让动线更方便直接,花园的布局,更方便一家人闲暇时的娱乐活动,可以烧烤与露天电影,十分有趣。
0
0

认证 · 让您身份增值