鸣蝉
271
作品说明
- 项目类型:住宅公寓
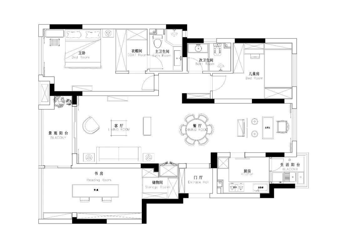
- 项目地点:重庆市
- 建筑面积:120㎡
- 项目造价:48万元
- 参与设计师:宋娟
- 竣工时间:2023-04-09
- 设计机构:合壹空间设计
-
项目定位:本案主要的居住人为一家三口,整体设计风格主要是对于中式美学的呈现,屋主有喝茶的习惯,因此在打造茶室上,也别具一格。
-
空间意境:本案的风格为新中式,不同于其它新中式沉闷老气的效果,看起来更显静谧雅致,即便是这样低沉的配色,也不显压抑。
-
空间布局:户型的布局上,将公区之间连通,使整个空间更开阔大气,利用原始的餐厅阳台区改造开放式的茶室空间,拆除多余的非承重结构,来扩大收纳区,增加储物空间,提高整屋舒适度。
-
设计选材:全屋家具采用实木家具,展现中式之美,大多采用深色胡桃木打造深邃静谧感,部分空间用工笔画的墙布装饰,体现中式韵味,公区暖白的墙漆,更显温柔。
-
用户体验:整屋改造最为舒适的便是单独的书房区域,在原有的基础上扩大了不少,并且改造了原始的进入位置,让整个空间更加私密安静。
0
0

认证 · 让您身份增值