中骏天宸



作品说明
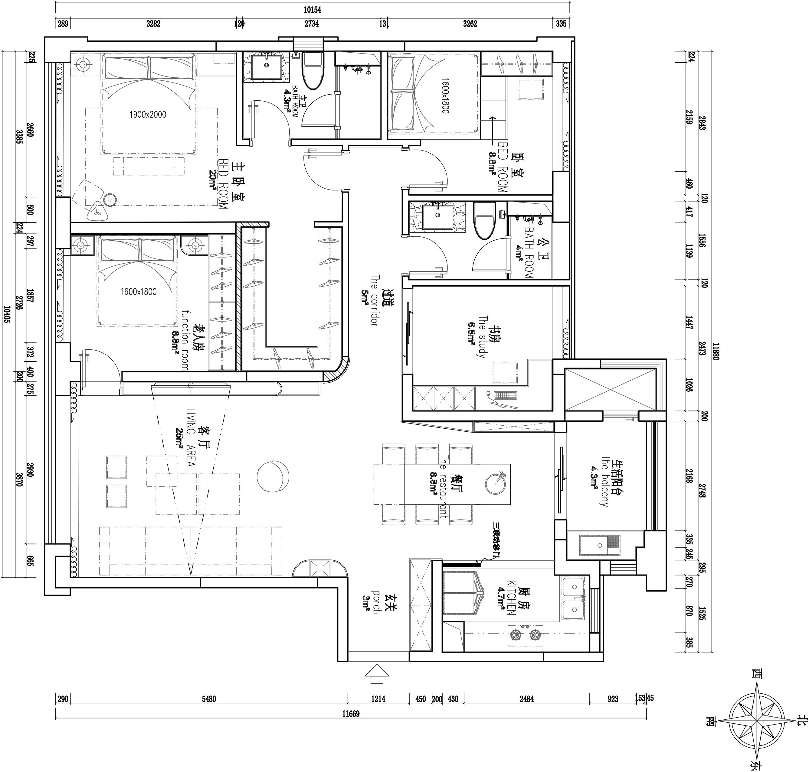
- 项目类型:住宅公寓
- 项目地点:厦门市
- 建筑面积:120.0000㎡
- 项目造价:60.0000万元
- 参与设计师:胡水炉
- 竣工时间:2023-03-17
- 设计机构:厦门居岛室内设计有限公司
-
项目定位:精装房是多数设计师绕不过去的一种项目现况,而且越来越普遍。这就对本就有所限制的家居设计加上更多的制约,当然不管不顾一切推倒重来只为最理想效果的案子不论。
因为精装房的初衷就是节约社会资源,方便省心入住。本着能不伤筋动骨,防止过度浪费的前提下我们接手了本案,在空间格局与隐蔽工程不破坏的情况下我们通过增加收纳柜和单品家具,利用家具的材质和色调来重新塑造空间的氛围。结合客户的家庭成员情况延伸了空间的功能性。 -
空间意境:水电等隐蔽工程不重新铺设的前提下我们保留了地面的灰色石材,为了总体色调的协调墙面的木质材料采用了奶油灰的混油工艺来呼应地面。之后在公共空间的中心点与客餐厅的交界处贴上L型的湖蓝色墙板,让低饱和度的总色调跳跃出活力的氛围。
-
空间布局:水电等隐蔽工程不重新铺设的前提下我们保留了地面的灰色石材,为了总体色调的协调墙面的木质材料采用了奶油灰的混油工艺来呼应地面。之后在公共空间的中心点与客餐厅的交界处贴上L型的湖蓝色墙板,让低饱和度的总色调跳跃出活力的氛围。
-
设计选材:尽可能的保留原有的装饰层与铺装面,通过新增的墙顶面材料与之呼应,形成崭新的空间形态。
-
用户体验:保留房子大基础不敲打的情况下,彻底摆脱了原始集成化装修的工业产品,最终实现了一套符合心目中时尚温馨的理想之宅

