“禅” 归本 “静”


作品说明
- 项目类型:休闲娱乐
- 项目地点:长春市
- 建筑面积:780.0000㎡
- 项目造价:350.0000万元
- 主案设计师: 赵磊
- 参与设计师:赵磊
- 竣工时间:2022-09-08
- 设计机构:金亭鸟空间设计
-
项目定位:应无所住,而生其心,世界上本是什么都没有的,一切都源于我们的内心。万物归本,回归自然,自然是纯粹的,不掺杂其他空间,古有闹中取静,在生活之中,禅意就代表着自然,就是静的本身。
-
空间意境:人与空间的磁场是否契合,有时在于我们的心境和阅历是否能与之产生共鸣。置身其中,室外自然风光一览无余,生活中我们对于禅意的表达有很多种,语言、行为、思想,禅意是一种生活上的表现。
-
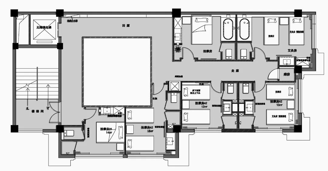
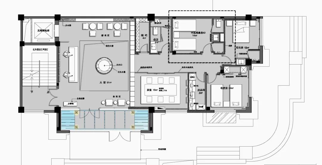
空间布局:以高于寻常生活的山水情怀,有大隐于市的淡然静默,在于身心宁静,保持心境中的悠然志气。通过屏风、石、水、木等材料与光影交织融合,回归自然。闲暇时刻,且喝一杯茶去,等待友人,茶室空间极尽中式韵味,自然孕育出一丝禅意,营造一种独特的境界。通过回廊造型的设计,用景观引入室内的房间,以自然的景观与地面灯带进行呼应,达到反差质感,让石子的搭配不显突兀,更能直观的表达纯真质朴的感受。
-
设计选材:提取自然元素运用到空间,结合纱幔打造自然生态的轻松氛围。在自然与时尚之间,感受环境的舒适与惬意。
-
用户体验:万物归本,回归自然,自然是纯粹的,不掺杂其他空间,享受城市之中的静
“菩提本无树,明镜亦非台。本来无一物,何处惹尘埃”
一花一世界 一叶一菩提
人与空间的磁场是否契合,有时在于我们的心境和阅历是否能与之产生共鸣。
万物归本,回归自然,自然是纯粹的,不掺杂其他空间,古有闹中取静,在生活之中,禅意就代表着自然,就是静的本身以高于寻常生活的山水情怀,有大隐于市的淡然静默,在于身心宁静,保持心境中的悠然志气。通过屏风、石、水、木等材料与光影交织融合,回归自然。
应无所住,而生其心,世界上本是什么都没有的,一切都源于我们的内心。
休息室的设计按照“以人为本”的理念,让休息更加舒适、休闲,可以更好地体现设计的人性化。
闲暇时刻,且喝一杯茶去,等待友人,茶室空间极尽中式韵味,自然孕育出一丝禅意,营造一种独特的境界。
通过回廊造型的设计,用景观引入室内的房间,以自然的景观与地面灯带进行呼应,达到反差质感,让石子的搭配不显突兀,更能直观的表达纯真质朴的感受。
提取自然元素运用到空间,结合纱幔打造自然生态的轻松氛围。在自然与时尚之间,感受环境的舒适与惬意。延续传统的东方美学,让人到达这个区域,能够体会到温柔、细腻、清爽的感觉。
禅意是独立的,它是一种完整的表现,在空间中我们将禅意融入了设计当中,从细节处入手,以粗犷的表达手法达到所表达的效果,用自然的材质纹理,突出个性化的现代生活。取点设计,将禅意进行表达,让柔与刚相互融合。

