文盛堂-曲径通幽处



作品说明
- 项目类型:餐饮
- 项目地点:吉林市
- 建筑面积:2200.0000㎡
- 项目造价:750.0000万元
- 主案设计师: 赵磊
- 参与设计师:赵磊
- 竣工时间:2022-12-01
- 设计机构:金亭鸟空间设计
-
项目定位:文化的延续与传承,传统与现代的碰撞;每一个设计都有他独特的文脉与故事。设计是一种永恒的挑战,在舒适和艺术之间、在实用与理想之间,在历史与现代之间取得平衡,它从这片土地文脉中走来,传承里亦有新生。
-
空间意境:可行可游可居,曲径通幽趣,便可围合空间的间与隔 。作为一种间隔的介质,虽间隔但不阻隔光、气、 风、景相互流动渗透。灵动的关联,化物象为思绪,也引领着整个空间的礼序与意趣,令这敞阔的空间跌宕出古雅而温煦的情韵。
-
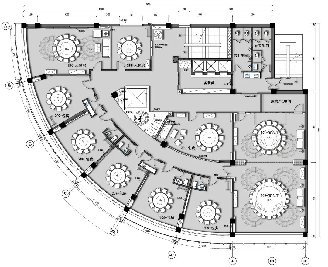
空间布局:林尽水源,便得一山,山有小口,仿佛若有光。便舍船,从口入。初极狭,才通人。复行数十步,豁然开朗。身在景中,即为景致。合理利用空间节点与空间 连通性,各功能空间互为景致 。硬装与建筑相融,陈设自硬装中生长。艺术装置与自然山水在空间主题中贯穿而一。
-
设计选材:设计是一首诗,是感性的灵活的生命。纹理与材质轻奏出其间的意蕴与力量,带来简远意深的美学感受。
-
用户体验:非常受欢迎的中式风格餐厅,优美的空间环境加上合理的空间布局,留恋其中。
设计是一种永恒的挑战,在舒适和艺术之间、在实用与理想之间,在历史与现代之间取得平衡,它从这片土地文脉中走来,传承里亦有新生。
灵动的关联,化物象为思绪,也引领着整个空间的礼序与意趣,令这敞阔的空间跌宕出古雅而温煦的情韵。
光滑厚实的深色大理石地面,映照出窗外的风景与室内主材柔软的倒影。虚实相生,雄浑的材质力量与流动的气韵在室内交融宕开。
硬装与建筑相融,陈设自硬装中生长。艺术装置与自然山水在空间主题中贯穿而一。
设计是一首诗,是感性的灵活的生命。纹理与材质轻奏出其间的意蕴与力量,带来简远意深的美学感受
文化的延续与传承,传统与现代的碰撞;每一个设计都有他独特的文脉与故事。
身在景中,即为景致。合理利用空间节点与空间 连通性,各功能空间互为景致 。
林尽水源,便得一山,山有小口,仿佛若有光。便舍船,从口入。初极狭,才通人。复行数十步,豁然开朗。作为一种间隔的介质,虽间隔但不阻隔光、气、 风、景相互流动渗透。

