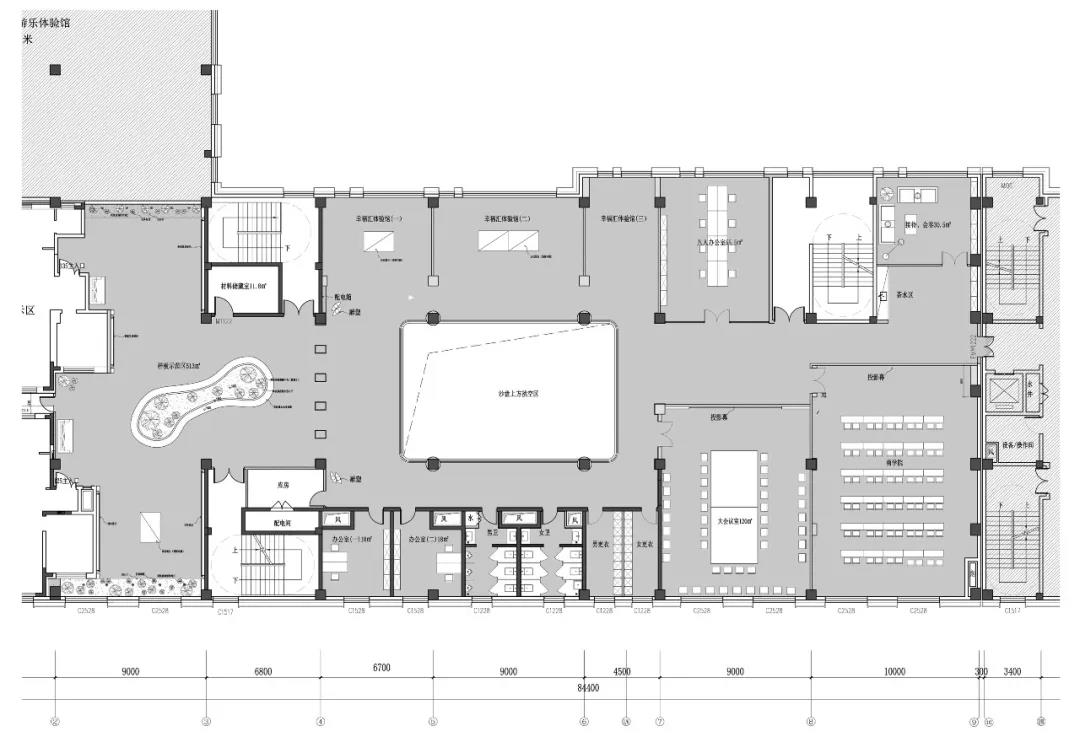
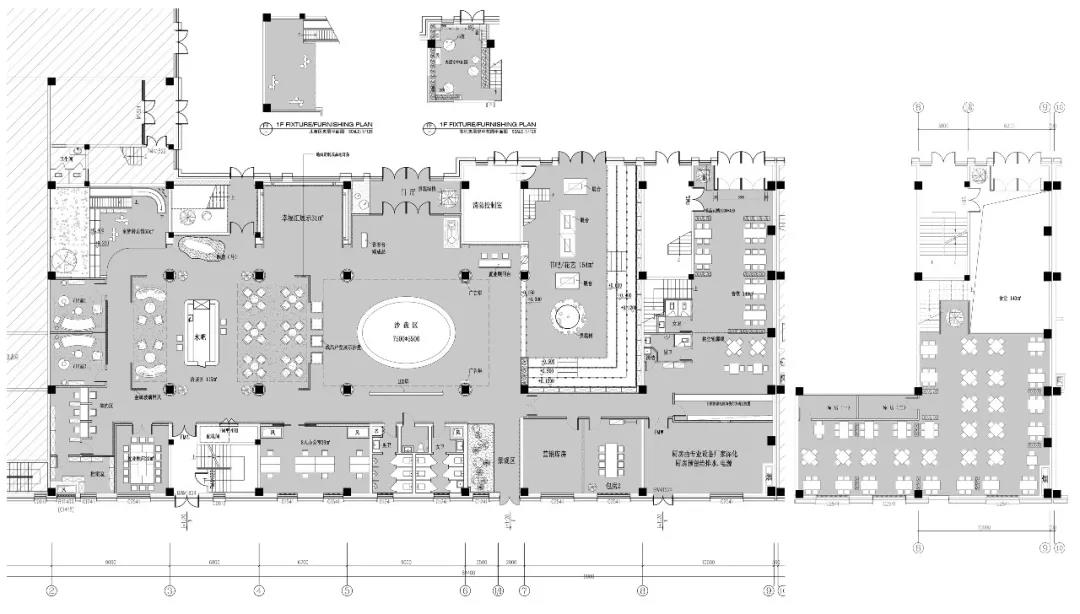
领秀熙南售楼处


作品说明
- 项目类型:样板间/售楼处
- 项目地点:四平市
- 建筑面积:2850.0000㎡
- 项目造价:700.0000万元
- 主案设计师: 赵磊
- 参与设计师:赵磊
- 竣工时间:2022-11-06
- 设计机构:金亭鸟空间设计
-
项目定位:用视线的虚实将空间与自然的风景结合,空间又因浅木纹肌理的勾勒而围合成一个更为纯净的场所。
一种由内及外的串联方式,对都市生活、自然人文的探索与融合。
主要定义为城市生活体验馆 -
空间意境:“我们希望营造的,是一个以当代设计语素为基底,又褪去繁复束缚的理想境域,在售楼功能之外,也影响着未来入住者的家居导向以及生活方式。”通透与纯净交织,植被葱葱芃芃,而气氛则重在对生活的情调的感染熏陶,在这空间中灵活发挥,迂回曲折,曲艺盎然。
-
空间布局:用视线的虚实将空间与自然的风景结合,空间又因浅木纹肌理的勾勒而围合成一个更为纯净的场所。
-
设计选材:清雅低调,极富体验的设计,带来纯粹的精致感受。变化无尽的木质纹路,打造沉静清淡,曲柔寡合的气韵。
-
用户体验:只有人身在其中,才可以感受到他的温度,营造出不一样的情绪色彩
“我们希望营造的,是一个以当代设计语素为基底,又褪去繁复束缚的理想境域,在售楼功能之外,也影响着未来入住者的家居导向以及生活方式。”
一种由内及外的串联方式,对都市生活、自然人文的探索与融合。
好设计的定义,不仅在于外在的美学视像,更融于内里的气质与底蕴。
用视线的虚实将空间与自然的风景结合,空间又因浅木纹肌理的勾勒而围合成一个更为纯净的场所。
通透与纯净交织,植被葱葱芃芃,而气氛则重在对生活的情调的感染熏陶,在这空间中灵活发挥,迂回曲折,曲艺盎然。
在一个自然所能触及的领域,尊重空间特点,抒写生活方式。 只有人身在其中,才可以感受到他的温度,营造出不一样的情绪色彩。
清雅低调,极富体验的设计,带来纯粹的精致感受。变化无尽的木质纹路,打造沉静清淡,曲柔寡合的气韵。

