-
项目定位:以居住者为本,先解决空间构架,再融入提升生活品质的设备类,然后才是效果及落地。简约与艺术并存的高级,品质与细节皆在的舒适
男主说:我在英国读博,喜欢简单,安静的氛围,回国后居家办公的时间会很多,要求有可以随时工作的台面。
女主说:我在澳洲上学即将毕业,喜欢大大开式放的厨房,除了正常的衣帽需求还需要独立的储物间。 -
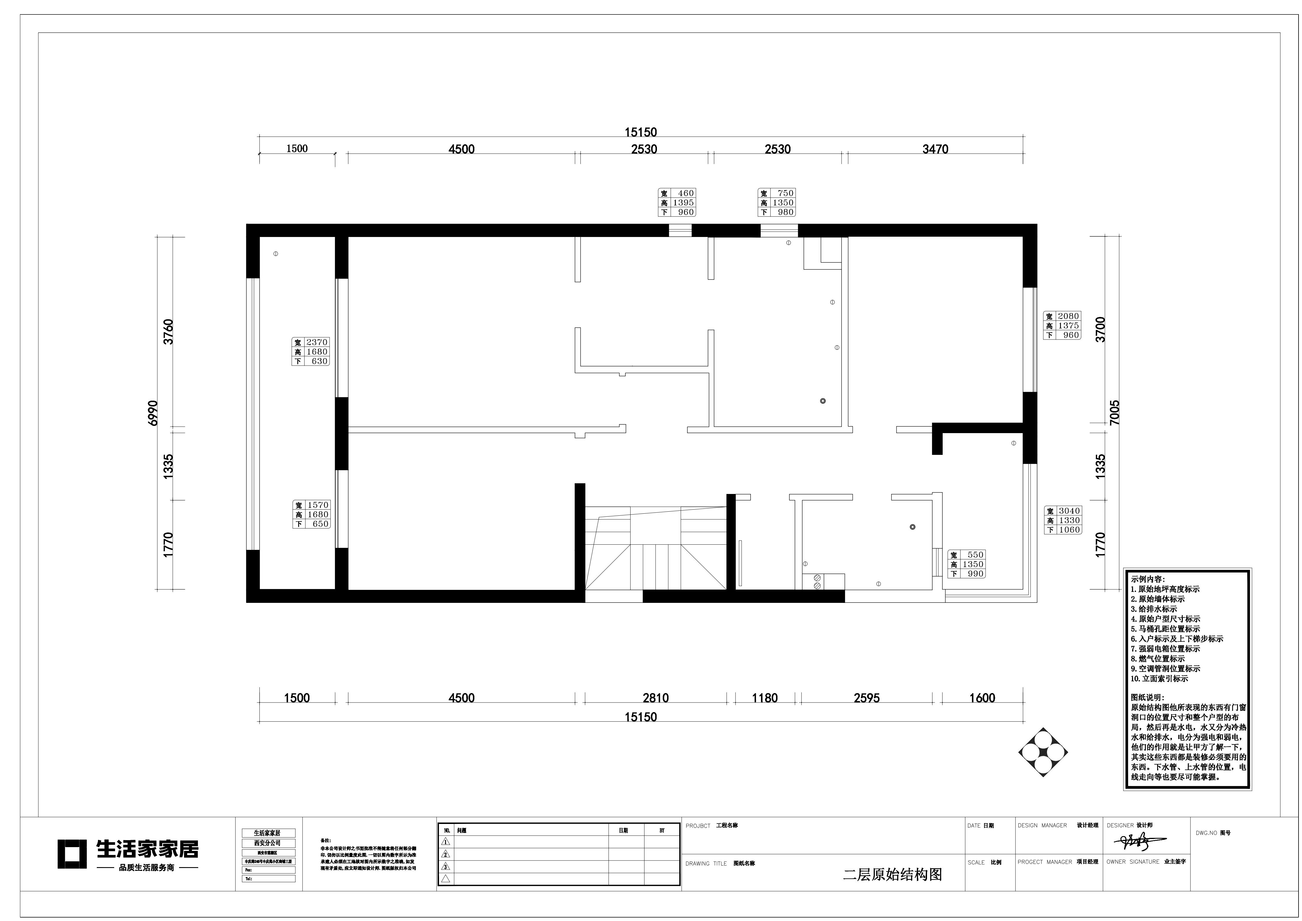
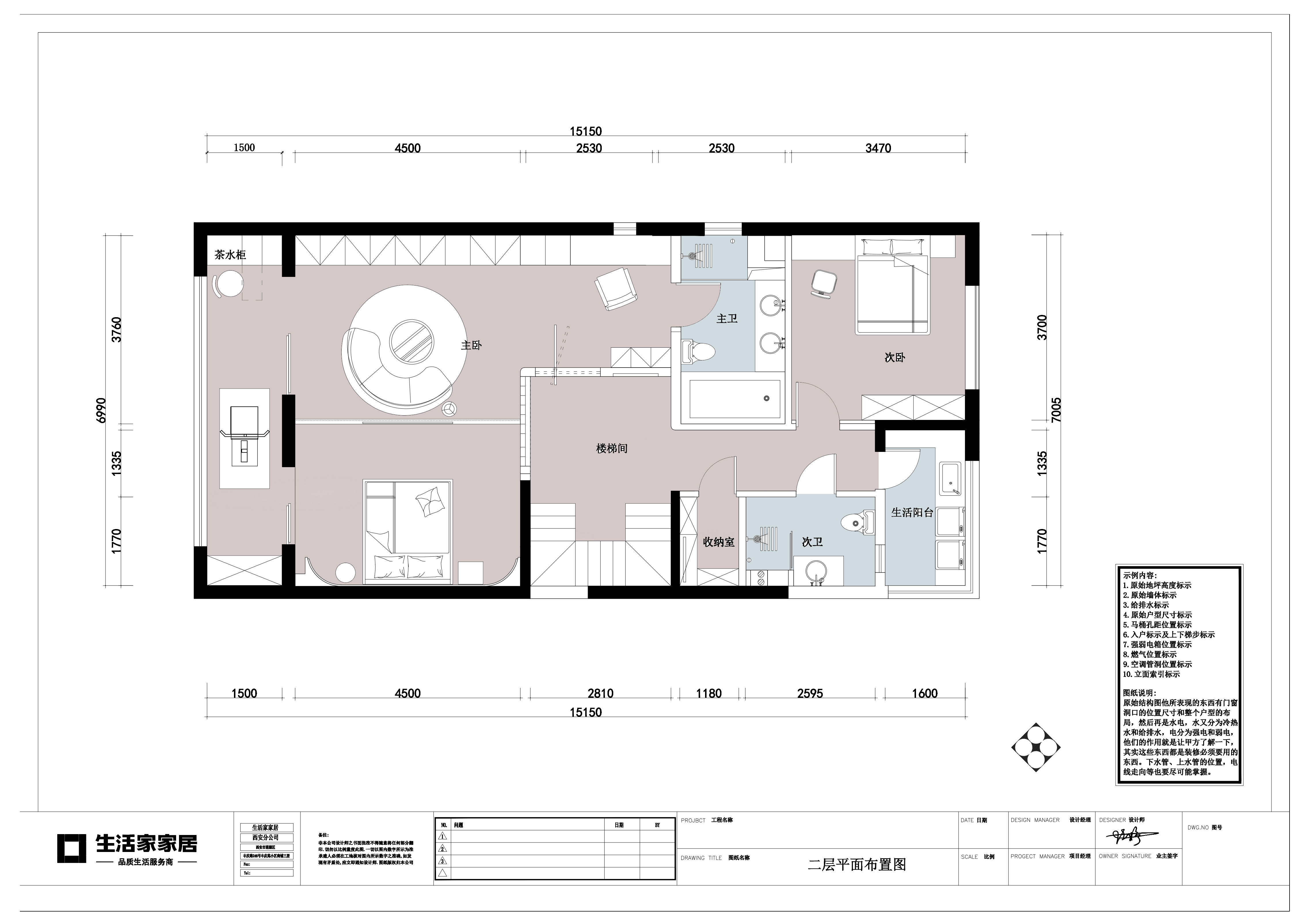
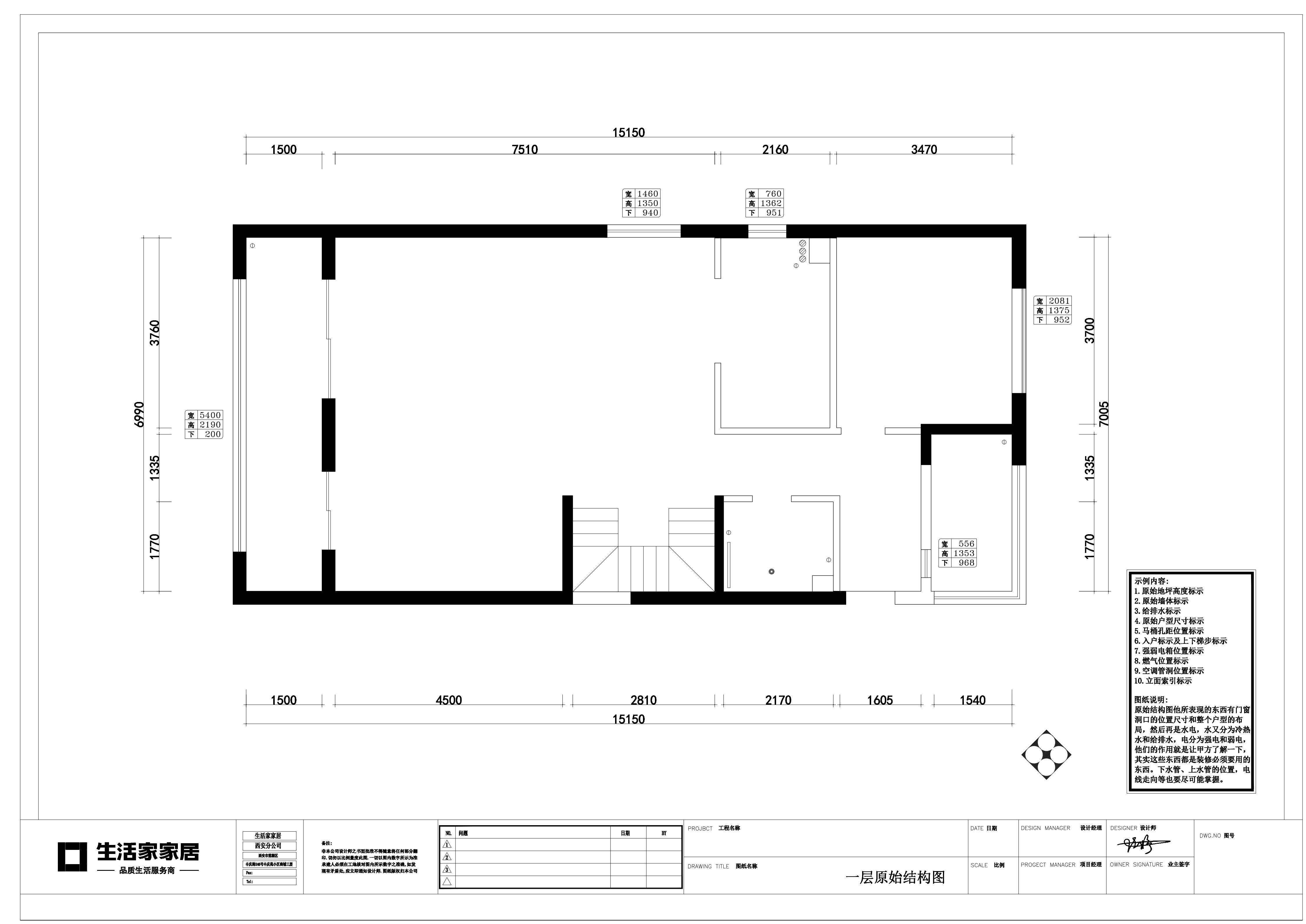
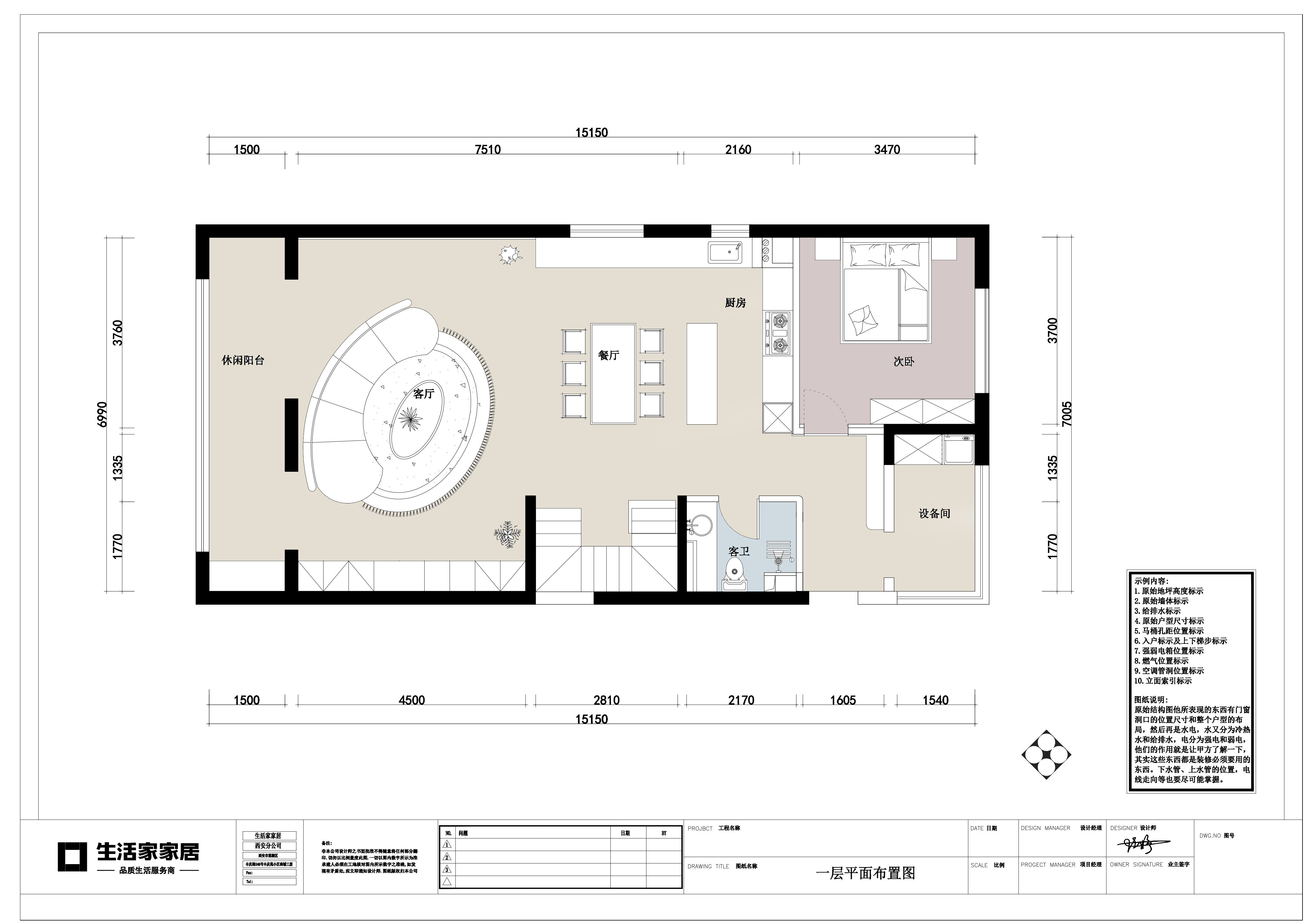
空间意境:本案户型为叠拼结构,因为业主小两口长期国外留学的原因,生活习惯西化,故将原有的中厨墙体全部拆除做中西一体的开放式厨房。客餐厨的环形动线是本案的亮点。隐藏式的幕布及投影设备,既满足了极好的视觉效果,又让客餐厅动线十分开阔舒适。主卧门后移并改向,双推门的设计让生活有了仪式感,应用玻璃砖做隔墙,既增加了楼梯间的自然采光,又虚虚实实,充满艺术感。
-
空间布局:客餐厨一体环形动线的设计深得业主的喜欢。拆除过程中发现主卧隔墙下有280mm高的地梁,为保证安全性没有做强拆,果断调整方案,将卧室和衣帽间位置互换,利用地梁整体抬高做地台式构架,反而得到了极好的动静分区。一些细节的设计点最后呈现的效果反馈也不错,如书房嵌入式排插的预埋,在没有墙面找方的情况下,选择了稍高的40mm踢脚线的定制,厨房墙面微水泥的定制,橱柜台面选品及无翻边无挡水的设计,主卫加长隐形地漏,防眩灯具的选品,都取得了不错的效果。
利用梁体,做了隐藏式幕布设计。客餐厅环形动线,无主灯灯具选品品质很高,真正的见光不见灯。 -
设计选材:①空间利用:合理
②收纳功能:尽可能多
③细部收口处理:厨房台面无翻遍无挡水,客厅柜无拉手设计
④主材及色彩运用:子午灰,珍珠白,爵士白
①定制柜体的结构合理性:外观符合硬装设计要求
②收纳空间的功能划分:内部符合客户需求 -
用户体验:好用实用,按居住者使用者需求量体定制。空间所表达的意义,不仅是安顿身心的栖居之所,还是让我们寻找到自我本真与精神认同的场域。
0
0

认证 · 让您身份增值
275