朵沫


作品说明
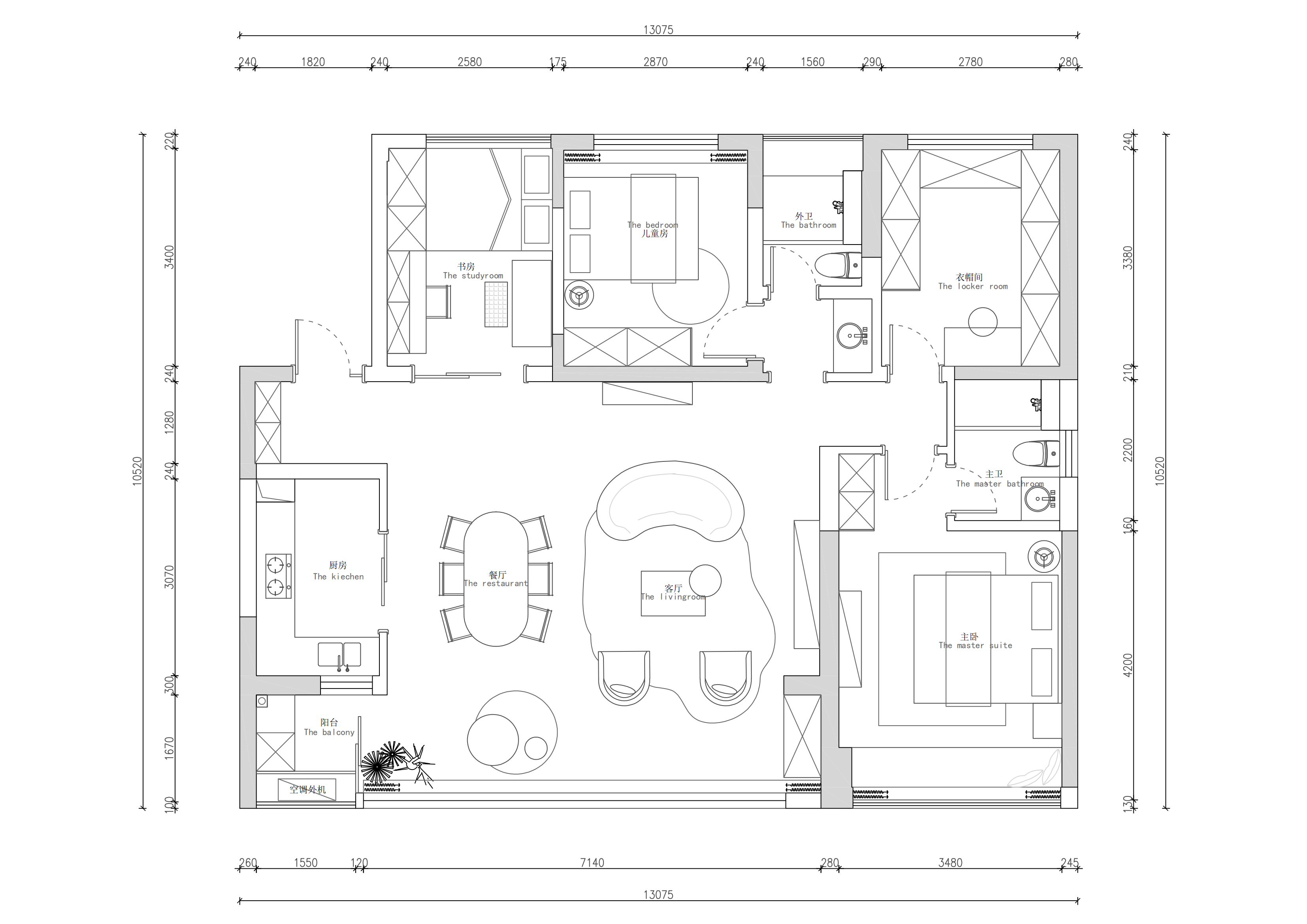
- 项目类型:住宅公寓
- 项目地点:成都市
- 建筑面积:130.0000㎡
- 项目造价:50.0000万元
- 主案设计师: 黎秋辰设计工作室
- 参与设计师:何乾本
- 竣工时间:2023-01-05
- 设计机构:黎秋辰设计工作室
-
项目定位:她走在美的光彩中,如黑夜
皎洁无云而且繁星漫天
明与暗的最美妙的色泽
在她的仪容和秋波里呈现
耀目的白天只嫌光线过强
它比那光亮柔和而幽暗
-- 乔治.戈登.拜伦
《她走在美的光彩中》
客户给我的第一印象是热爱生活,坚定,有趣,优雅。理想的家大概是满屋阳光,三五好友喝下午茶插花,追剧拍照。当客户给我们讲到理想家的定义时,眼睛里藏不住的光芒。于是,我们想为客户筑一个梦,优雅不落幕理想家。 -
空间意境:这是一套平层精装房改造,整个设计的主线全是粉色系,色彩只有大量加入白色,白色带给人的感受是纯净无暇,简单纯粹。
户型的朝向足够满足大量采光,阳台考虑到并无室外休闲的需求,加上本身的客餐厅面积不够使用,打掉推拉门,把阳台包了进来,作为客餐厅使用。
-
空间布局:平面功能布局没有以传统的电视作为设计中心,结合家里有小朋友的情况,更多的时候空间是作为家人的沟通交流休闲的,也需要满足仪式感,我们选用了户型沙发加上两个独立的单人沙发。四个房间分别分为:主卧,儿童房,次卧(老人房),独立衣帽间。
空间自由的同时,也在人活动动线上更加方便。所有原有的电视墙硬包和墙面墙纸墙布,全部进行拆除,从而用带着古典主义的石膏线条进行墙面顶面的镶嵌,为了让空间更加立体丰富,墙面的颜色选择了粉驼色和浅粉色进口涂料进行搭配使用,不显得幼稚也体现了空间的质感。
用进口涂料改色的方式,将原有的木质色系修改成了干净的白色系。客厅阳台包裹住的阳台,中间梁的原因,无法进行连贯,空间应该是整体统一的不应该被分割开,客厅阳台的顶面用了柔软的弧形造型进行柔化。
软装设计都是圆润,优雅,舒服的,不尖锐的,主沙发是云朵,单人沙发是花朵,茶几和餐桌如同漂浮的冰面,浅色布艺的柔软,木质的温暖,大理石的纯净,都是为了构成整个空间初始的设计基调。
主卧:专注于休息放松,也需要简单的日常穿搭收纳;主卧的沿用了客餐厅的设计理念,优雅的同时更要注重提供良好的睡眠氛围。
儿童房:满足休息及储物的同时,需要更多的小朋友玩耍的区域,蓝色系的运用,让童真继续。
次卧:不仅仅是作为居住使用,更需要满足书房的功能及女主的琴房;榻榻米书房简单干净,该空间链接到客餐厅,属于半开放的公共空间需要更加的包容,白天作为书房和琴房,夜晚作为偶尔来居住的老人房。
-
设计选材:因为考虑到精装房本身的特殊性,我们在综合考虑设计中,检查到了本身门的质量合格之后,决定进行更加环保循环使用的方式,用进口涂料进行门的改色。
-
用户体验:体验感很好,空间不仅满足了功能上的需求,也在形式上满足了客户对于住宅的幻想何需求,浪漫满屋。在家也能拍照打卡下午茶。一家人都住的很幸福。

