-
项目定位:两套打通做大开间,将客厅、餐厅、西厨、书房连通
隐蔽性与穿透性相互兼容,光的透彻,穿行空间 -
空间意境:因时而变的光影也是设计的一部分
窄窗虽小,却还能装下落日余晖与明月几何
庭院灯带与草坪灯融入场景,调节气氛
一花一草、一树一木都徜徉在光和风下
给居家心情来一场光合作用 -
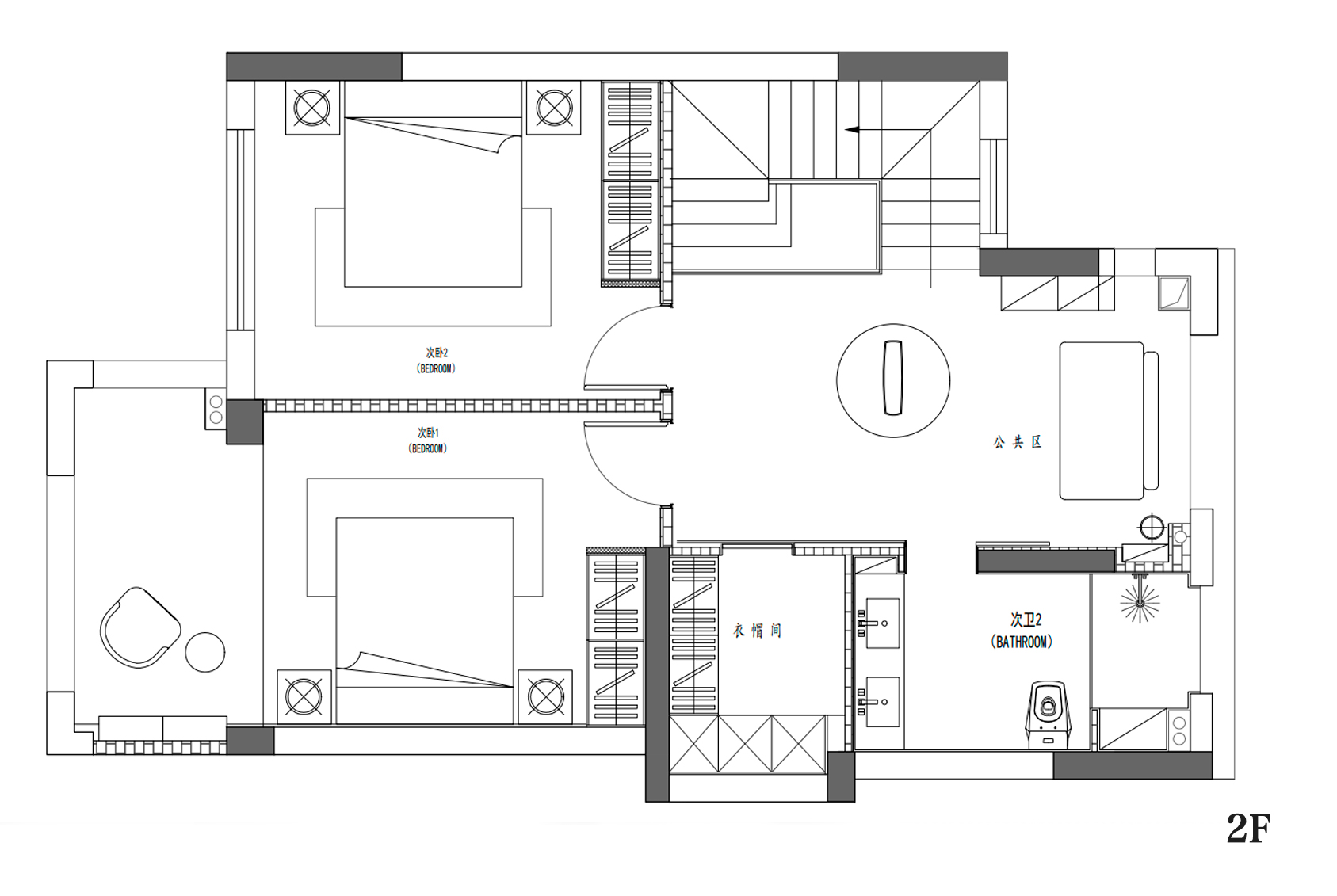
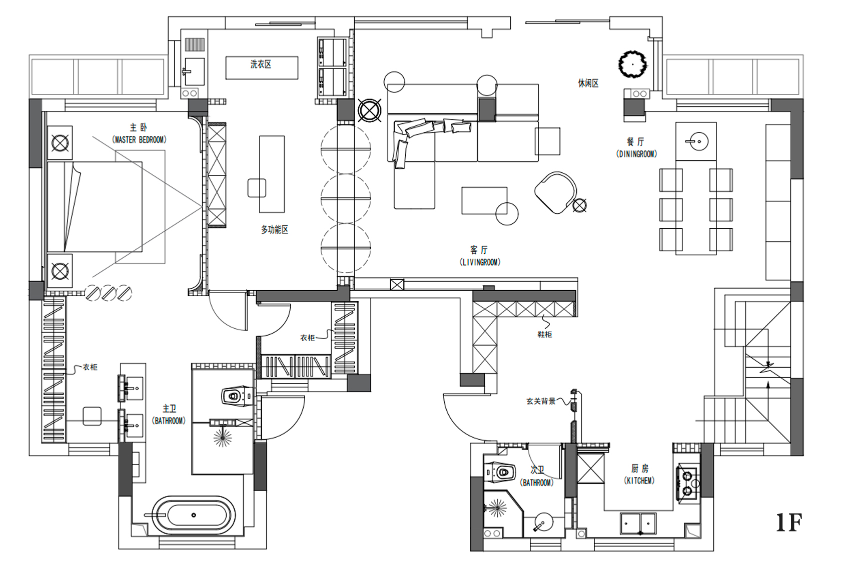
空间布局:Ⅰ. 一层两套打通做大开间,将客厅、餐厅、西厨、书房连通;
Ⅱ. 改变原始客厅布局,双靠背沙发弱化承重柱,在客厅也能面向庭院;
Ⅲ. 开放式主卧,减少了与其他功能区的隔挡,灵活的动线大大提高了生活效率;
Ⅳ. 改变原始楼梯位,创造出玄关区。 -
设计选材:顶部横梁用弧形吊顶弱化,电视墙采用岩板和木饰面结合,按照一定比例铺满墙面,在视觉上增加了层次感。嵌入式电视柜并搭配开放格,可用于展示或收纳,既美观又实用。
-
用户体验:本作品是改善型房子,极大地提升了舒适性,实现了客户一直想要的院子,每个家庭成员都拥有自己的空间

