“进化”的实验场域



作品说明
- 项目类型:办公
- 项目地点:广州市
- 建筑面积:1200.0000㎡
- 项目造价:240.0000万元
- 竣工时间:2023-05-04
- 设计机构: 慢珊瑚设计
-
项目定位:进化是宇宙最强大的力量,是唯一永恒的东西,是一切的驱动力!
—— Darwin -
空间意境:以“进化”为灵感,并以此为切入点,利用现代的材料和表现手法相结合,打破结构和边界,创造一个实验与办公结合的多场域复合空间。在设计上打破常规布局。以一个抽象和沉浸式的实验环境,根植于“进化”这一概念。
-
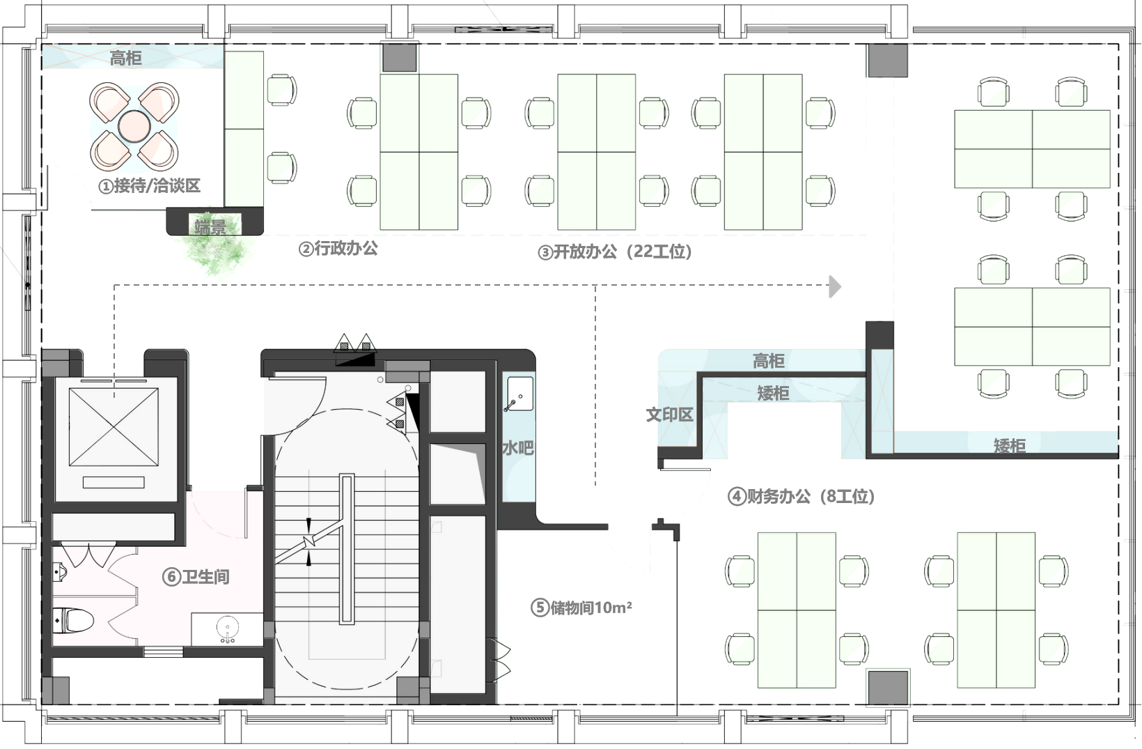
空间布局:入驻B6栋的科盈集团是一家集研发、生产、制造等为一体的企业,随着产业的全面发展,空间的需求也在随之进化——多元的展示空间,时尚、科技兼并办公。
在空间设计上,时刻处于混沌与清晰的动态,置身其中仿佛行进在流体中,给工作者和参观者一次惊喜的感官体验。让空间本身成为艺术的载体,也是这次设计所探索的主题——进化。凭借现代、科技感的造型模拟实验场所,引导来访者以全新的视角探索丰富的空间层次。设计中一改常规的横向空间思考模式,通过试管装置,及至二楼,一层大厅与二层展示区形成了共享的开放区域。凭着“它借”的策略,借中空一部分,拓宽面积。
贯通的球体,突破边界打破传统楼层格局,体现流动空间的生机与韵律,同时也平衡着展示与洽谈两种不同的功能需求。没有明确的分割,扩大空间使用率,将各个功能做到既开放又独立。直线表达空间的理性与秩序,曲线与直线的多种结合、变化,展现空间的多面与延展性。纵向的空间关系思考,打破一二层的中空设计作为整个空间的亮点,不仅满足采光,在视觉上平面移改“柱体”延伸,观者的视线不自觉间沿着实验装置沉浸其中。 -
设计选材:宇宙能量是意识进化的基础,也是生命进化的根本。试管、显微镜、实验舱内的分子细胞裂变,则是进化的感官表现。
当你觉得实验室只是冰冷、抽象的环境,它却以趣味装置的形象出现在面前,金属亚克力材质和热情的情绪相碰撞,为整个空间赋予全新的能量。 -
用户体验:大面积的浅色将空间串联,与空间的“共享”概念相呼应。运用明暗不同的肌理质感,营造出"多重叠加"的视觉效果与科技感共存的氛围。
通过内外一体的叙事性表达空间,提升品牌的美学价值,不断地探索更多种可能性,实现空间多样的场景化。

