92㎡复式可开关的布局告别杂乱
              
 421- 项目类型:住宅公寓
 - 项目地点:北京市
 - 建筑面积:92㎡
 - 项目造价:37万元
 - 竣工时间:2022-06-15
 
在客厅与楼梯之间放置了猫爬架,喵星人可以从猫爬架,跳跃到沙发背景后,再跳到家具上。也可以直接在楼梯上的格栅处活动,让它们的游戏角,既独立又融合,使整个客厅舒适简洁。
打通客厅与餐厅的隔墙,让整个空间融为一体,营造的氛围更为融洽。空间双倍放大,使视距更开阔,层次分明。
客厅去电视化,用投影满足观影,还能省下电视墙的空间。
投影升起来,客餐厅和厨房融为一体,方便交流与会客。投影落下,又可以专心享受大荧幕的体验。在切换之间,同时转换不同的生活状态。
将厨房墙体打掉,让客餐厅和厨房融为一体。为了保证隔绝油烟,除了必备超大吸力的油烟机外,还做了通顶的超白长虹玻璃联动门,更能完全的隔绝油烟。
4+2的联动门,单扇门尺寸是100*205cm,可以完全推到一起四扇变一扇,增加通透性还不占地,满足不同的使用状态。
开放式的厨房,让原本面宽较小的橱柜,同时拥有了电器高柜和岛台,
,使用方便还让整个餐厨空间动线更加灵活。阳光透过窗户洒在每个角落,温暖光亮的气息充满整个空间。
2.5cm的黑色极窄边框,简约高级又精致。吊轨厚度21cm,横跨4米空间,将餐厨空间完全包围,承重力强更稳当。 
简约的客厅氛围,整个空间以白色和经典原木色系为主色调,大面积的留白让整个空间呼吸感十足,视觉上大气且开阔。
90*60cm岛台与相同白色的1.4米餐桌拼接,利用15cm的高低差安排电源,在餐桌吃饭或办公,都不用担心手机没电了。
这也是家庭互动的好地方。宽敞的开放式厨房,也让做饭不再枯燥孤独。家庭聚会空间也相对增多,烘托出日常的仪式感。
高低分开的橱柜台面,是对屋主生活习惯的尊重,洗菜切菜在高位,炒菜在低位,让整个做饭过程轻松自在。
门厅与客厅之间有一道结构梁,利用原有结构梁承重,做了吊轨的金属门,从而去实现空间的划分。
地面则是选用白色石材纹理砖通铺,既有融合的空间,也能在需要的时候明确区分。
推开门后看到的玄关,是片刻之间的静谧美好,瞬间从嘈杂的世界,抵达温暖的家园。
门厅的收纳也是最大化呈现,预留出了大量鞋帽以及小件物品收纳,以及挂衣服的空间。
楼梯是连接上下层的过度,楼梯的设置采取的白色和木色的搭配,空间统一有连接。
在楼梯转角的位置,提前给偶像预留了空间,以后会把爱豆照片挂满墙面。每次经过看到爱豆的笑容,都会让自己元气满满。
二层作为静区空间,色调延续简约黑白+原木的色调,温暖而现代,简洁又利落。
卧室是极其放松的地方,绿色的背景墙和温润的木色床搭配,为休憩空间,保留平整舒心的观感享受。自然的色调清新十足,释放温柔的能量,让人倍感放松,卸下一身的疲惫感。
柔和的光线使卧室更显温馨,配合与墙面同色系软装点缀,让整个空间更显清新温暖。
大面留白的墙柜,辅以绿与原木色交织的出现,搭配粗棉麻布料,质朴的肌理与触感,建构一个充盈丰沛的精神领地。干净又不失温度的环境,最是疗愈心情。
游戏房是充满竞技的地方,男女主人双排设置,可以共同奔赴战场。房内的深蓝色墙漆,结合超长的木色升降桌,给屋主打造一处,共同游戏的梦想空间。
生活不仅需要温度,更需要潮玩的态度。
卫生间利用暖色墙砖搭配中灰色地砖,让空间有了柔和的基底。衬托干净的洁具,空间明度结构丰富,让人轻松舒适。
浴缸与花洒根据屋主的使用习惯,安排在了同一空间,能有一池的水泡去全身疲惫,实在太舒服了。
一层卫生间除了洗漱马桶和淋浴,还能拥有家政空间。把洗衣机和烘干机安排在一起,方便操作,日常家务也能轻松搞定。
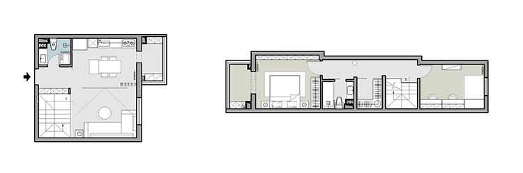
改造前:
一层原始户型每个分区都比较明确,但是每个空间都比较小,进门口也缺少收纳空间。空间之间没有互动与联系,这让餐厅位置尴尬。所以一层应该加强空间的连接性,每个区域应该有相应舒适的尺寸。
二层原始空间结构比较规整,但需要合理安排出,相应的卧室区,游戏室,衣帽间的卫浴区。
改造后:
在复式的结构里,第一步就是考虑楼梯的位置和方向,涉及到所有空间的比例和动线。
在门厅处更改了楼梯的方向,从而增加出了一排的储物收纳空间。
扩大了卫生间,使内部活动尺寸更为舒适合理。
客餐厅,厨房形成一体,增加互动性。无论从活动还是视觉上,都放大了空间,更灵活。
整个二层空间更加偏重于生活,二层南向小空间作为了屋主的游戏室,承载了他们的爱好与习惯。
把大卧室归属在了主卧,增设了衣帽间。
- 
              
              北京市
工作地点
 - 
              
              联系方式
15210611558
 
        
          
        
          
认证 · 让您身份增值