呼吸在野,共生共长的自然乐园



- 项目类型:别墅
- 项目地点:成都市
- 建筑面积:380.0000㎡
- 项目造价:200.0000万元
- 主案设计师: 东己壤设计研究室
- 参与设计师:何雨晴
- 竣工时间:2022-07-31
- 设计机构:东己壤设计研究室
-
项目定位:房屋就像是生命,有其内在的秩序,生命的形式与功能无法割裂。采用建筑、室内、景观有机一体化的设计方式,建筑内外贯通、相互回应,通过时间的概念,空间延绵不绝地铺展开来。让钢筋水泥的沉重结构,向外自由呼吸,真正浑然一体。
-
空间意境:考虑到“之后”或独处或社交的多种情境,我们从空间的氛围感出发,设计出“过去”“当下”“未来”的多重变化的空间,空间在行进与叙事中变得丰富有趣,与人共生共长,多元的空间变化、丰富的顶面造型、活泼跳跃的用色用材,将栖息地平静的诗意的诉说与人听。
-
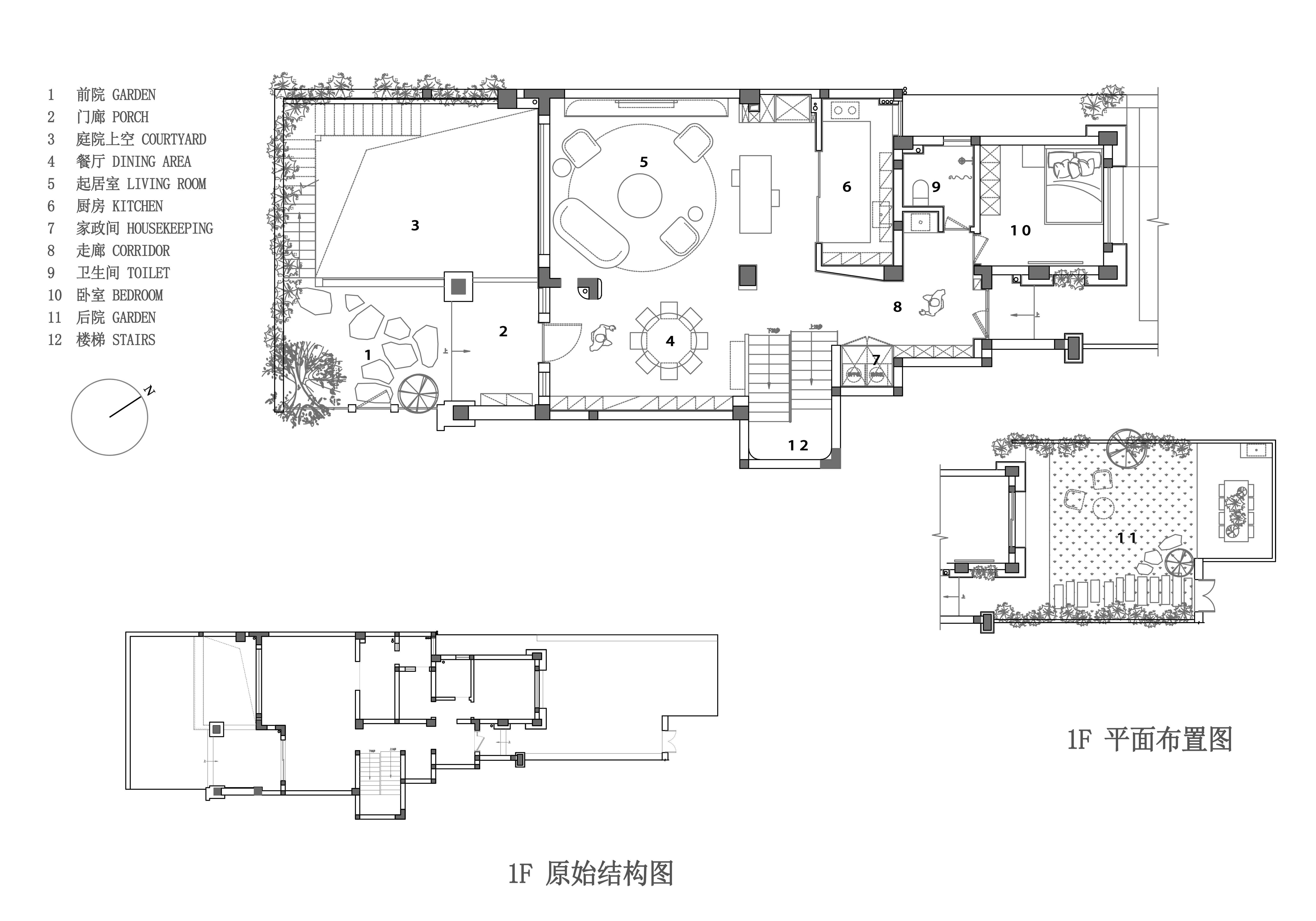
空间布局:1.将不同需求不同高度的空间,通过细微自然的功能性方式整合起来,强调空间会带给人源自建筑的根本感受,人与不同尺度的物质空间之间相互关系,使用者能在空间中自由的思考,让空间更有安全感。
2.原本负一层的天井进深过小,地下室采光通风较差,我们将天井扩大,形成私密度极高的天井花园,同时增设楼梯与汤池,与负一楼的影音室、茶室形成良好的私家娱乐室。 -
设计选材:木头与藤编的材质点缀,使其柔美形态呈现出中式审美中独特朦胧氛围。采用质朴原始的材料、虚实相间妙趣横生的空间,营造出一个平静的氛围,实现多层次的平稳过渡。
-
用户体验:屋主已经入住一年半,现在非常喜欢使用负一层空间,因为隐私性非常高,且采光极好,屋主常在这里做瑜伽、看电影,夏天在汤池游泳玩水,秋冬在娱乐室一起放松玩耍。
穿过小院,进门之后是一条南北向的短廊,朝南通向会客厅。而通道的尽头则是落地的木头窗扇,豁然明朗的光线与白色圆桌的端景,给予人视线引导。
光线从中部射入,柔和的光感为空间提供了适宜的光线,木头与藤编的材质点缀,使其柔美形态呈现出中式审美中独特朦胧氛围。采用质朴原始的材料、虚实相间妙趣横生的空间,营造出一个平静的氛围,实现多层次的平稳过渡。
打破原有的秩序,分解、叠加、重组,在变化的材质与体块中实现统一与均衡。墙与墙的边界互相穿插,彼此拼贴又彼此遮挡,相互贯穿间,形成多种样貌的空间实体。
夜晚降临,柔黄的灯光将木头熏出暖烘烘的味道,洗去了一整天的疲惫,在这温馨的空间里,家人们跟随光的指引走向彼此的内心,在一片安宁中卸下外在世界对身心的束缚,豁然明朗。
起居室三两沙发自由摆放着,一边是窗外的盛夏光景,一边是岛台,连接着可以同时容纳十个人的用餐区,满足不同的使用需求。而我们之所以将客厅放在这里,是因为这里拥有绝佳的视野,除了小区绿道,还可以俯瞰整个下沉庭院,欣赏窗外茂盛的绿意。
逐渐增多的器物、灯具、抱枕、装饰,是共生共长的见证。
短廊的设计非常简洁,家政间隐藏其中。远处的庭院通过窗框照进幽幽的门廊,光线将房屋南北贯通。
车库入户是整个家庭中使用频率最高的动线,我们将原本逼仄的入户门扩大,蜿蜒的弧线仿佛一首动听的乐章,使得归家的仪式感更强。
在弧形门洞、丰富光线指引下,转向花园,苍翠挺拔的树木、蜿蜒的石板小路、清幽的苔藓,行进中情绪由开敞、舒展转为平静、悠远,材料也被粗粝原始肌理的材料替代。
原本的地下室天井狭窄潮湿阴暗,为了解决地下室采光通风差的问题,扩大天井花园的采光面,裸漏出来的结构,只是稍加粉刷便呈现出来。
改造后的下沉庭院,明亮开阔,并且比一层的花园更具有私密性。冬日里阳光可以洒满整个负一层的屋子。屋主常在这里阅读、练瑜伽、看电影,感受生活的惬意。
巨大的折叠落地窗扇,使得空间暧昧,建筑和自然之间模糊的界限以模糊的表面形式出现。万物皆自得,随着四时的更替,人也能花木池鱼中获得悠闲的能量。
遵循小朋友都喜欢玩水的天性,在天井花园的一侧设置汤池,阳光摇晃着树影拨动着水池,透过竹帘将整个小院收入眼中。
茶室偏于一隅,有其自在与意趣,男主人可以在这里煮茶品茗。一旁巨大的落地窗与花园带来的视野相得益彰,满目柔和,若隐若现的院景吸引着人的眼球。室内的器物模拟自然事物的形态,枯枝、叶舟,雅致悠远。
雕饰的木质空间是整个私密空间的序章,它拥有原始的宁静、质朴,木头的斑驳得以保留,在利落的几何线条衬映下,呈现着自然与人工和谐之美。弧形与光影的组合创造出柔美韵律,曲线与直线交错丰富了空间的形式与层次。
木门轻划过轨道,为生活增添了一份诗意,邀请着屋主探索门内的世界,营造出强烈的神秘感。把推拉门打开,书房就变成了一家人玩耍的地方,屋主常在这里与小朋友一起做手工画画;把推拉门关闭,则成为了家庭私密的书屋。
主卧各个区域分区明确,各功能区顺畅流转,以木头为介质,让淡然的意韵自由穿梭,强化了整个空间的宁远气质。木质特有的纹理,就像毛孔,每一寸都能感受到空间带来的柔软与舒适。
在孩子的私密空间里,创造出只属于她一个人的游乐园,温润和煦的基调、灵活多变的收纳陈设、可以看到院子的书桌,将缝隙填满的玩偶,以及极富安全感的小床,都将童梦娓娓道来。

