屋弄家居艺术展厅
415 - 项目类型:展示
- 项目地点:福州市
- 建筑面积:5000.0000㎡
- 项目造价:300.0000万元
- 主案设计师: 郑桂通
- 参与设计师:郑桂通
- 竣工时间:2023-08-01
- 设计机构:福州纬众室内设计有限公司
-
项目定位:屋弄是⼀个新生家居品牌,设计师郑桂通先生在接受屋弄展厅的设计邀请后,就在思考如何把产品和客户体验紧密地联系在一起,创作一个打破传统家居展厅概念的全新展示空间,因此展厅的设计思路并不是从单纯的商业产品展示出发,而是从人文美学精神的角度出发,将其作为一个家居艺术馆来打造。设计师的意图是:让人们在宁静中感知空间的力量,能够静下心放松下来,与产品进行深层次对话,并在品味的过程中对生活产生新的憧憬。
-
空间意境:一个概念美学空间
一个不被定义的空间
一个让家具更艺术让艺术更生活化的家居空间
它分享生活分享爱
希望让所有人都能把热爱搬进家里
它很纯粹,纯粹到只想弄好一间屋子 -
空间布局:UNOspazio除了有不同风格的展厅区之外,同时还设立了亲子休闲区,艺术装置打卡区,休息咖啡区,逛完还可以拍拍照,喝咖啡。
-
设计选材:UNOspazio是一家注入了年轻血液的家居体验馆,融合了艺术、音乐、潮流,以其独特、独立性的艺术风格和对年轻时尚软装家居的专业见解,与常规的家居店打开整体差异,帮助有软装需求的朋友们创造属于自己理想中的生活空间。
-
用户体验:1F的非常高级感的意式家具系真的爱了,特别是奢石区,真的太美了,还有个儿童玩耍区,简直乐开了花刚进门就被红色的旋转钢板楼梯震撼到,仿佛进了一个艺术展家具简单干净却又不失高级感实用性也都很强。
让人们在宁静中感知空间的力量,能够静下心放松下来,与产品进行深层次对话,并在品味的过程中对生活产生新的憧憬。
曲线,是生命有机运动的象征,柔美的形式被解构、重塑、从而被重新定义。 楼梯是所有空间的连接点,盘旋而上,流畅而富有动感,仿佛在诠释着一种流动的艺术。
循环镜头捕捉不到的内容梦中接驳。平行重复的弧线、错落的体块形式彼此链接、错位、 咬合、呼应景观与空间相互融合和渗 透。
时间轴从此扭曲加速蒙太奇旋转、错叠在「椭圆」这一基本形态。 从阳光转向静谧,光影重叠,进退有序。纵向结构的交织与错落,用光线调节了空间的节奏。 抽象的精神由此被赋予形态,并在光的调和之中获得连贯的内在逻辑与秩序。
新生物是人类对生物的自然亲和和对感官体验的增强。 绿化象征着生命的源泉,空间周围环绕着修剪整齐的树木静谧又宁静。
时间遗留和痕迹 ,散发情感温度与独特韵味、光、人物 、几何形体相互之间发生着微妙的关联和明暗变化,形成充满故事性的动人场景。
光与影交织,构成了空间的一切美妙。光勾勒形体、递进层次、形成节奏。
空间的纵横与开合,在光影的配合下,有序、丰富且层次分明。在空间中游走,自然光透过百叶窗进入室内,光线或近或远,忽明忽暗,既温柔又炽烈。天地无界,光影跳动。
亲子空间中,水的柔和无形包裹着那些缤纷的想象力,一切都是如此活力、治愈、舒适。
流线圆弧的流畅线条,无止境地流动。圆弧贯穿整体空间弱化空间棱角,守护小朋友安全的同时,赋予柔和流畅的视觉感受缤纷的色彩,让整体空间充满活力。
咖啡厅入口
不同属性的空间之间有着缓和的过渡,满足静立、回望、等待。空间大小的切换与形式结构的变化,体现了节奏律动、混合开闭之间的频率,回应生命的自然状态——呼吸。
咖啡区延续展厅空间,在创造了通透视野的同时给予了咖啡店辨识度。简单舒适的空间体验卸去疲惫,带来安静放松的空间感受。
咖啡厅点餐台
独特的空间预言,既突出美感又展现舒适性。
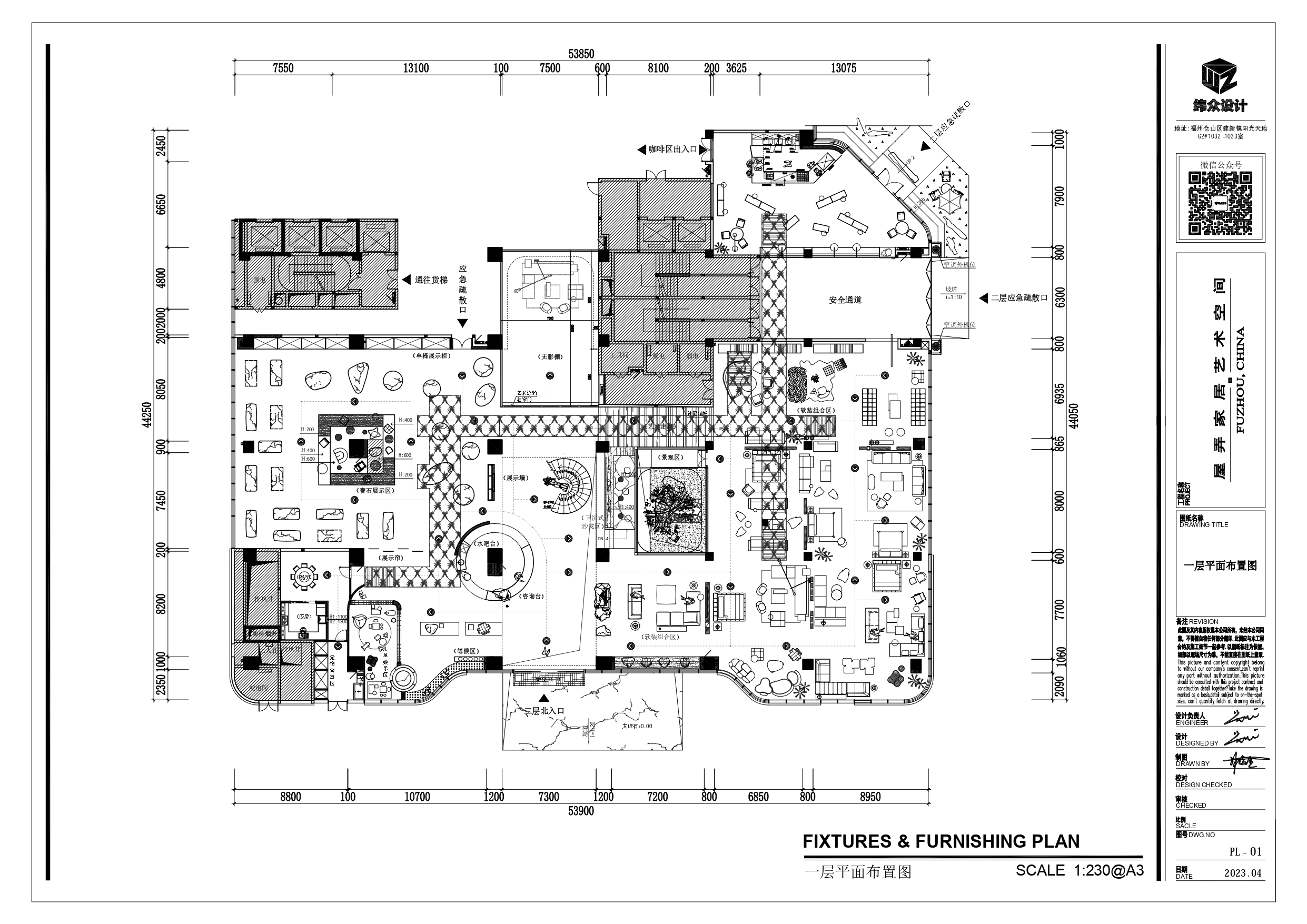
一层平面布置
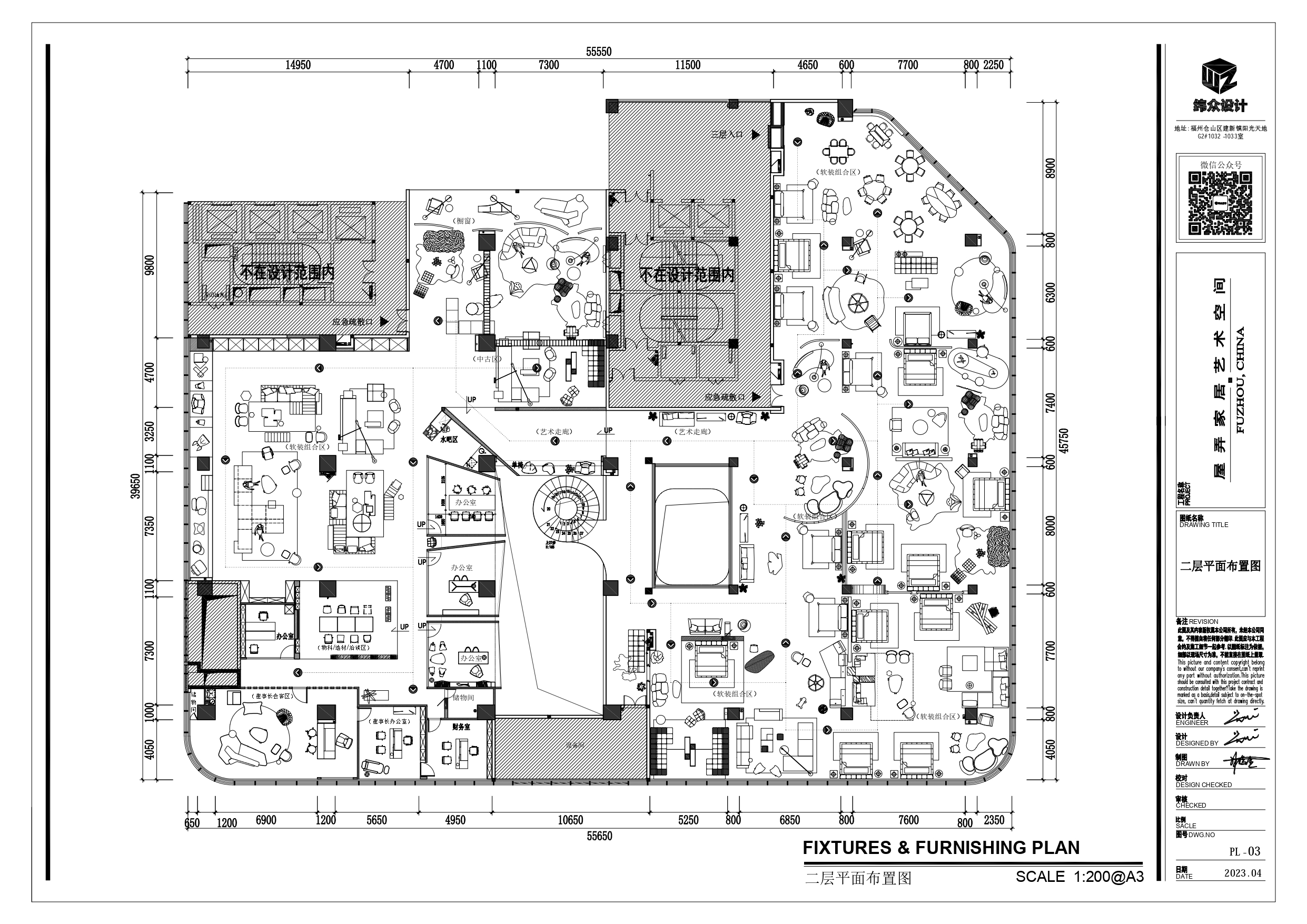
二层平面布置
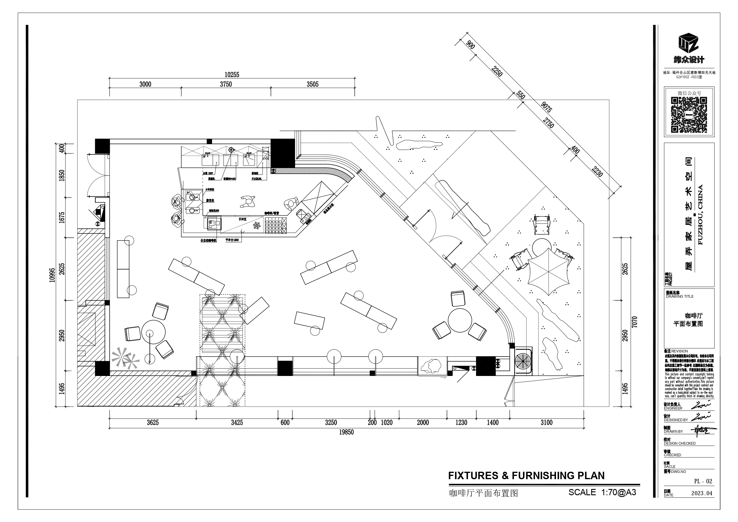
一层咖啡厅平面布置
0
1

认证 · 让您身份增值