“灯塔”守望 静观里安
430 - 项目类型:别墅
- 项目地点:西安市
- 建筑面积:600.0000㎡
- 项目造价:600.0000万元
- 参与设计师:张座熔
- 竣工时间:2023-06-20
- 设计机构:见住饰界
-
项目定位:本案为600㎡双拼别墅,设计团队以蒙德里安艺术思路在全案设计中“穿针引线”,以“灯塔”精神为本案设计的精神内核,方案设计初始,屋主的两个孩子在大洋彼岸,希望用营造居住的“温柔乡”,守望和等待孩子们的归来,如今,孩子们已然学成归来,一家四口的居住生活在设计的营造下翩然有序,品质显现蕴含期许,舒适“坚守”。
在设计师和屋主的思维碰撞中,惊喜发现,喜欢贝聿铭和安藤忠雄的屋主,拥有对建筑和设计很好的审美和感知,因此,素雅的质感和颜色成为空间设计的主色调,引入蒙德里安的艺术,展开空间的设计笔触。 -
空间意境:一层北入户为正式门厅,从门厅开始,使用蒙德里安的模数拼,将走廊和客餐厅区域做分色处理,不同深浅色的地面石材做空间区域和动线的双分割,既能让空间具有不同功能区的节奏感,又不影响横厅的整体张力,挑空的客厅光影充盈,拥有无限延展的电视背景墙,自下而上,由外向内,冷静的空间里元素仿佛无限变幻,从而生动。
-
空间布局:拥有较高层高的地下空间,设计师将空间进行了挑空设计夹层的处理,保留的下沉庭院改为采光井,让整个地下空间被充分使用,负一和夹层空间功能定位为社交空间,酒水吧、会客厅、茶室、儿童娱乐区、影音室、保姆间、客房等都被设计安置于此,整幢的主客生活娱乐规划有序,设计格栅窗景,随时针流转,进入的光影也变幻,同时满足空间的私密安全功能。
-
设计选材:艺术感的石材通铺主卫,从地面到墙面形成整体,自然的纹理向外延伸,让空间无限扩大。
-
用户体验:用户说很庆幸认识我们,感谢我们给他家精致、美观、实用的设计,两个儿子回国后都很喜欢这个新家,一家人幸福地生活在一起。
本案为600㎡双拼别墅,设计团队以蒙德里安艺术思路在全案设计中“穿针引线”,以“灯塔”精神为本案设计的精神内核,方案设计初始,屋主的两个孩子在大洋彼岸,希望用营造居住的“温柔乡”,守望和等待孩子们的归来,如今,孩子们已然学成归来,一家四口的居住生活在设计的营造下翩然有序,品质显现蕴含期许,舒适“坚守”。
在设计师和屋主的思维碰撞中,惊喜发现,喜欢贝聿铭和安藤忠雄的屋主,拥有对建筑和设计很好的审美和感知,因此,素雅的质感和颜色成为空间设计的主色调,引入蒙德里安的艺术,展开空间的设计笔触。
一层北入户为正式门厅,从门厅开始,使用蒙德里安的模数拼,将走廊和客餐厅区域做分色处理,不同深浅色的地面石材做空间区域和动线的双分割,既能让空间具有不同功能区的节奏感,又不影响横厅的整体张力,挑空的客厅光影充盈,拥有无限延展的电视背景墙,自下而上,由外向内,冷静的空间里元素仿佛无限变幻,从而生动。
一层客厅
一层客餐厅
一层餐厅
一层厨房
从犹抱琵琶半遮面的门厅玄关开始立面结构的延展,设计师将入户的屏风与西厨的岛台结合关联,分明的节奏是生活情境的刻意引导,沿着中厨向外“伸展”,拉平贯通的整面多功能柜,兼容储纳、展示、电器收纳,同时发挥庭院南入户的衣帽柜功能;餐厨满足功能的同时,更多的使用效能被充分考虑,与庭院入户相接,自是最惬意,美食时光是家庭成员的亲切距离。
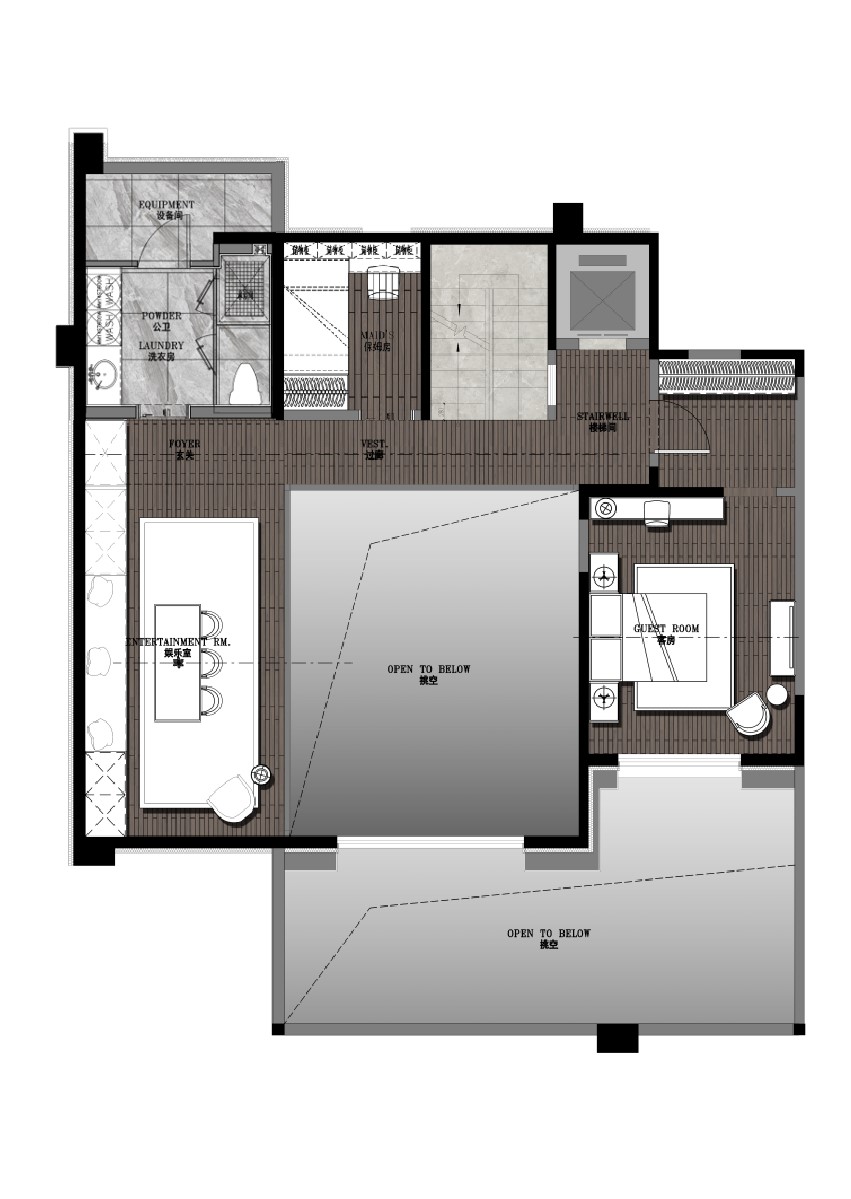
二层走廊
二层大儿子房
二层大儿子房书桌角落
二层大儿子房书桌书架细部
二层小儿子房
二层空间以挑空为中轴线,两边规划成为两个儿子房,对孩子们的期望莫逆于心,素雅于境,不简于型,和一层的整体色调上保持一致,拥有艺术质感的床头硬包与开放式的书架相接,卫浴间和衣帽间共同规划,共同成长又各自拥有,设计师希望,他们彼此的陪伴与成长来自“俭与简”带来的居住和内心的丰富。
三层主卧玄关柜上摆放的是见住饰界设计团队- 蒙德里安画作
三层主卧室
三层空间作为屋主的主要空间,以主卧套的设计呈现,基于更多的功能和设计效能,将空间重现划分,设计男女主人双衣帽间,睡眠区清雅怡然,纱帘随风盈动,窗帘修饰亦遮光,在卧室区域,如卷轴徐徐展开的造型,金色收边,与床头背景墙的蒙德里安魔术拼关联,为主卧营造雅趣的同时拥有私密性。
艺术感的石材通铺主卫,从地面到墙面形成整体,自然的纹理向外延伸,让空间无限扩大,浅色的浴缸点缀其中,隐喻的高品质在此体现。
负一层下沉式庭院保留,开发成为采光井,让光充分进入负一和夹层空间。
负一层会客厅
负一层品酒区
拥有较高层高的地下空间,设计师将空间进行了挑空设计夹层的处理,保留的下沉庭院改为采光井,让整个地下空间被充分使用,负一和夹层空间功能定位为社交空间,酒水吧、会客厅、茶室、儿童娱乐区、影音室、保姆间、客房等都被设计安置于此,整幢的主客生活娱乐规划有序,设计格栅窗景,随时针流转,进入的光影也变幻,同时满足空间的私密安全功能。
穿过浮华 仁立于家 不问喧哗 只留初心 盛满人间清欢 身边随处桃花源
一层平面布置图
二层平面布置图
三层平面布置图
负一层平面布置图
夹层平面布置图
0
0

认证 · 让您身份增值