宁波艾谱保险柜旗舰店
806
作品说明
- 项目类型:零售
- 项目地点:宁波市
- 建筑面积:650.0000㎡
- 项目造价:195.0000万元
- 主案设计师: 郑伟
- 参与设计师:陈周斌 王荣洲 陈婉露
- 竣工时间:2023-08-01
- 设计机构:宁波路飞设计
票数 : 4
-
项目定位:驱动空间的一种可能,在不可预见中探寻规律的可能性。是商业探索,也是一场实用艺术的结合。
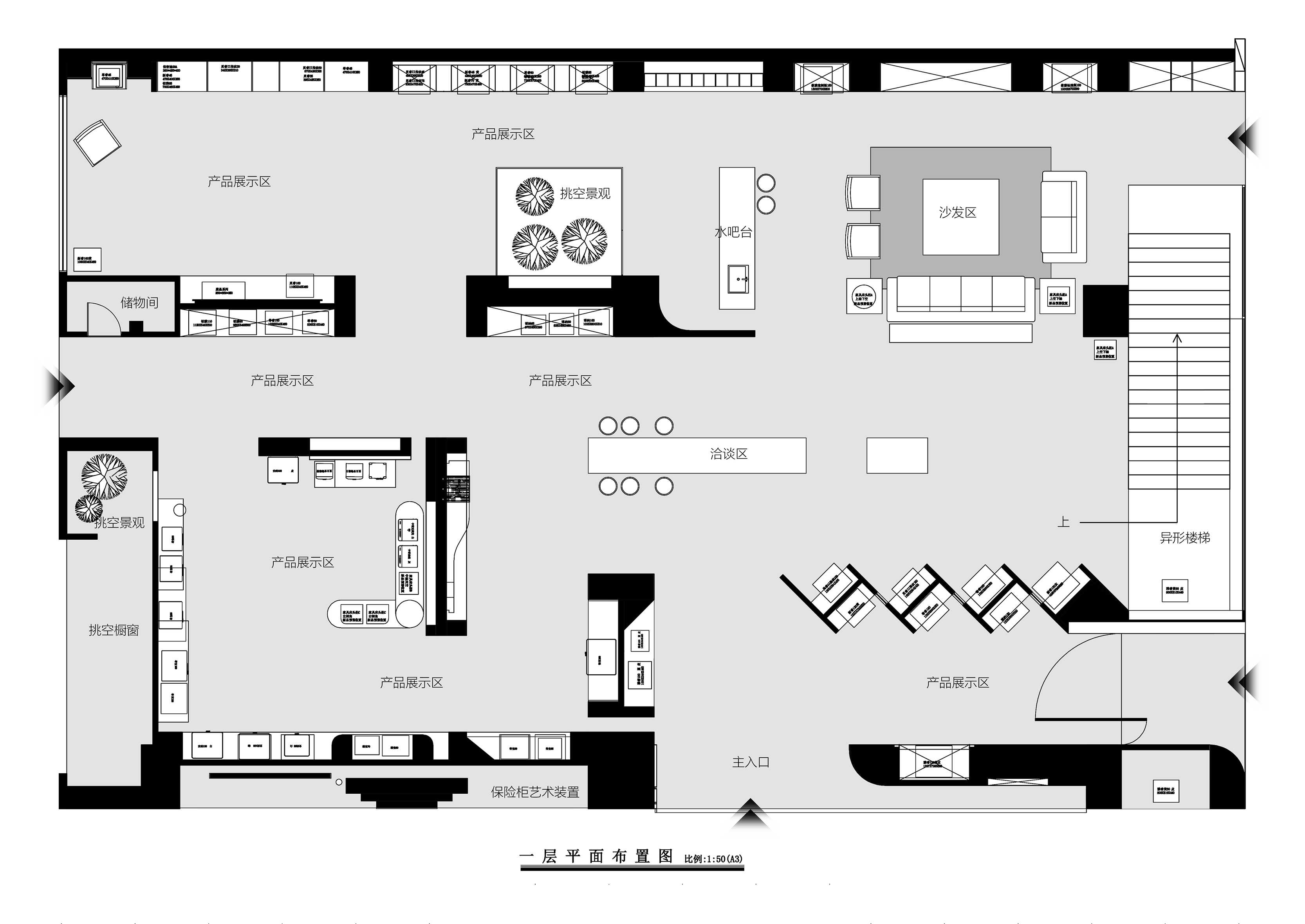
本案有别于传统的保险箱展厅,伴随着传统制造业和用户群体的年轻化,设计师基于商业空间的第一性原理,结合产品机械工艺、艺术美学强化符号等特性,在空间规划中突破产品自身限制,注入生活美学语言。以艺术展陈的形式,把保险箱较大的尺寸和一些产品自身的色彩叠加,让空间和产品可以巧妙的融为一体,也扩大空间坪效直观传递产品内容,设计师灵活布局参观者动线,围绕产品展陈、生活体验层层递进。在展厅中游走,切换不同的场景色彩和空间语态,就像参观一场艺术展。
产品陈列区,简约温润的背景实现充分的视觉退让,让重点聚焦于核心展品。硬朗的棱角与色彩碰撞出极致的机械美学,颜色之间互相汲取、拼撞,勾画出一件件家的艺术品。
“回”字形参观动线,将每一件产品尽数纳入视野。设计师为不同材质、颜色的产品安置专属的展陈形式,包含了嵌入式的未来科技风格、极简系列的包豪斯风格等,打造艺术装置带来的生活格调。吧台和沙发区的曲线度交相呼应,侧边的客人名牌茶杯存放处综合一起,可以让一个现代硬朗的工业展厅有了温度舒适一面。
景观装置应用于产品区和休闲区的中立位,在视觉交替和空间转换中实现巧妙过渡。立体的镂空装置打通了不同场域之间的元素交融,穿透平面界限,增强空间整体感。红色楼梯作为醒目的艺术装置,将位面的相交与平行进行可视化呈现,增添空间互动的趣味性,体验在不同界面中穿梭行走。
步入二楼,一个纯白的画轴,一只坐在老船木上的蓝兔正望着画轴,老船木代表了品牌的历史,白色画轴代表了品牌的未来。老船木在蓝兔引领下前行,朝着品牌初始就已明确前进的航向,终将在未来书写出更为精彩的画面。
进入中厅月球自天顶降临,重现科幻世界的震撼,缓缓踏入“元宇宙”的神秘境界。在产品的功能传达中,展现了“就像在月球一样安全”的概念,是品牌对安全性能的极致探索。穹顶之下,是放松身心的开放茶室。在宽阔自由的空间感受心灵的充分释放,是被守护的安心与平和。入里,为收藏级别的展陈区。展品优雅静伫,表面肌理可触摸到大师工艺与珍贵质感,无需言语表达,自持绅士品味。
产品与空间联动,打造了一场精湛工艺与空间美学相融合的视觉盛宴,与每一位参观者一起见证品牌产品空间所以带来的力量。 -
空间意境:弱化产品的体量强化产品的颜值和功能 融合到空间中
-
空间布局:按产品功能区分 多元素叠加和强化产品属性和品牌记忆点
-
设计选材:最简单最耐用的材料。涂料。玻璃。不锈钢。仿古砖
-
用户体验:目前客户和消费者防窥都不错。的确强化了品牌的记忆点和购物体验。也提高了成交效率
0
0

认证 · 让您身份增值