舜山府
754
作品说明
- 项目类型:住宅公寓
- 项目地点:重庆市
- 建筑面积:220.0000㎡
- 项目造价:180.0000万元
- 主案设计师: 熊翔飞
- 竣工时间:2022-01-15
- 设计机构:重庆威尼装饰设计
-
项目定位:
该项目是新房设计,设计师从2019年4月正式着手,接近三年的时间,作品沉淀着居者的心愿,设计师对居者内心的挖掘和生命成长的思考。空间设计语言一如设计师本人醇厚细润的个性,缓缓叙出属于一家三口的简单温馨而又充满现代气质的空间故事。 -
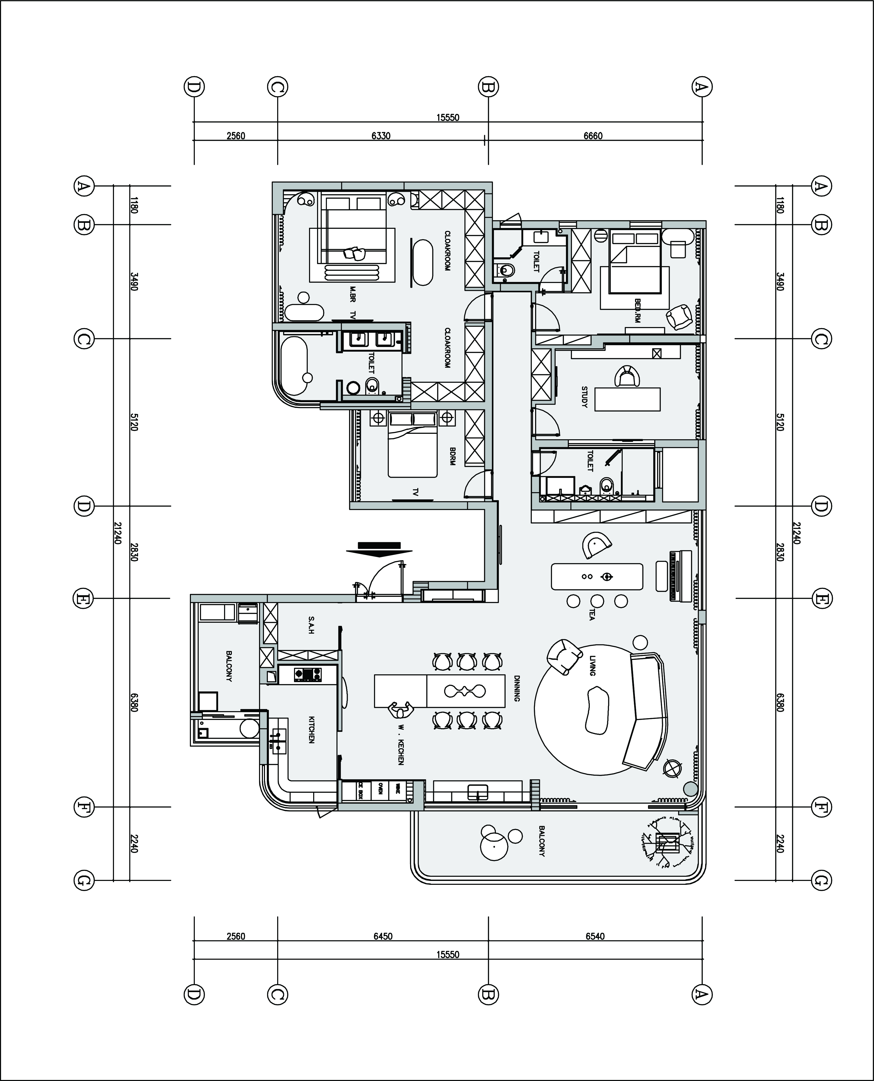
空间意境:舜山府位于照母山,是重庆高端社区的典范,拥有极佳的地理位置和景观资源。与此同时,也有着令设计师焦虑的空间内部格局——厅成L型,两面采光,给人散乱、冷清、无视觉焦点的第一印象;设计抓住【厅大】这一关键,开启了“一镜到底”的设计手法。
-
空间布局:取消玄关隔断和传统的电视墙设计,新增鞋帽收纳功能区,从入户开始,给与视觉上规整干净、完全通透明亮之感,一眼揽入,真正突出大厅的优势所在:开阔、宽敞、大气。白和灰作为空间的主色调,用低饱和度的色调去构建空间的和谐统一,彰显现代简约的高级感,平静与沉稳的形容在此刻让空间气质与人物个性完美贴合。
客餐厅与中西厨之外,更纳入了茶室设计。将客厅放在茶台和餐桌中心线的交界处,移动沙发向后靠窗,实现最佳的视觉动线。为了丰富整个空间的无限可能与场景创意需求,只需要移动沙发的位置,便可以获得不同的客厅场景,实现空间的可动与灵动。
同样简洁利落的餐厨设计,因大面积白色的铺陈装饰,体现了极简主义下的几何美;点缀寓意自然和美好希望的植物,将日常生活的审美带动起来,空间的生命力也随之绽放。
茶室在色彩上用温暖自然的原木,为业主提供舒适的品茶环境;利用滑动拉门隐藏背后的茶柜,让视线更干净,当打开之后,柜子里的收藏品将成为最美的天然背景画,使空间更为生动有趣。
整个空间的结构布局,其实非常简单,一大厅和四室。虽然房间的面积比较小,但每一间都是刚需,所以如何让每个房间拥有使命,让居者在不同主题下享受不同的情景呢?设计师利用宽敞的大厅(比如餐厅、过道处)去设置必要的储藏柜、书柜,满足日常的储物需求。每个房间便可以最大化地容纳不同居者地脾性爱好。
主卧以灰色为主调,没有多余的装饰,将现代极简的审美情趣延续下去。床头曲线的白色吊灯,点亮了整个灰色空间。艺术插花更流露出女主人对生活的态度。融入一个开放式的衣帽间,与主卧隔而不断,扩展视觉。
-
设计选材:设计师坚持所有家具选品都应适合的设计原则,餐桌和茶台是设计师出图统一餐桌和茶台的支撑脚,在不锈钢厂进行定制而成。
-
用户体验:时间会是非常好的证明,恰如空间在时间中是否会随之成长,符合居者不断变化的情绪心态?也会证明设计师对于极简之美、可变动态的空间设计是否经得住时间的考验?平凡简单的往往最打动人心,而设计师在本案中用看似简单的设计手法去勾勒出一段具有电影质感的空间故事,当一家三口在舒适的空间快乐生活时,设计的使命暂告段落,空间故事暂时关闭帷幕,而他们的幸福人生还在继续!
0
0

认证 · 让您身份增值