缤果小子健身馆
509
作品说明
- 项目类型:休闲娱乐
- 项目地点:广州市
- 建筑面积:320.0000㎡
- 项目造价:60.0000万元
- 主案设计师: 曹劲麟
- 参与设计师:曹劲麟、张智宇、陈智恒
- 竣工时间:2022-10-21
- 设计机构:广州市正在室内装饰有限公司
-
项目定位:概念源于“激励·无限·爆发·内敛”,这四个关键词。
-
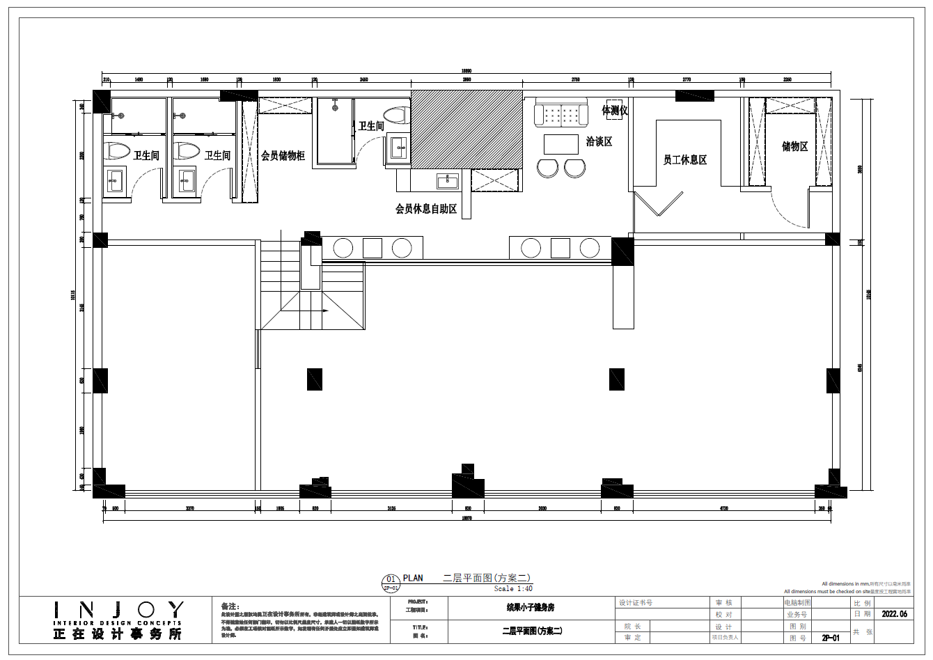
空间意境:注重休闲休息区的设计以及轻松氛围的营造,一个愉悦放松的氛围能够消除人们健身过程中产生的疲劳感,同时休息区的设计也是提升消费体验的关键所在。
-
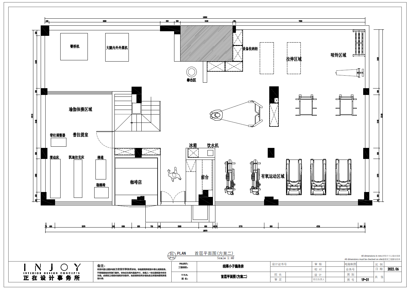
空间布局:无论我们的健身会所设置了多少健身器材和功能区域,我们的健身房设计都要保证消费群体在健身房的功能区域里完全的放下内心的防备,在一个空间足够大,且轻松愉悦的健身场所,更加能够让健身者的身心都得到很好的放松,能全身心的投入到健身训练中。
-
设计选材:利用冲开孔铝板的特性,结合落地窗,使白天的阳光能穿透至室内的每一个角落。且对于健身房而言,冲孔铝单板还能担当置物架的功能。
-
用户体验:根据精心的灯光设计,尽量减少室内的眩光。保持照度的同时,不影响客户的运动体验。
0
0

认证 · 让您身份增值