孤城



作品说明
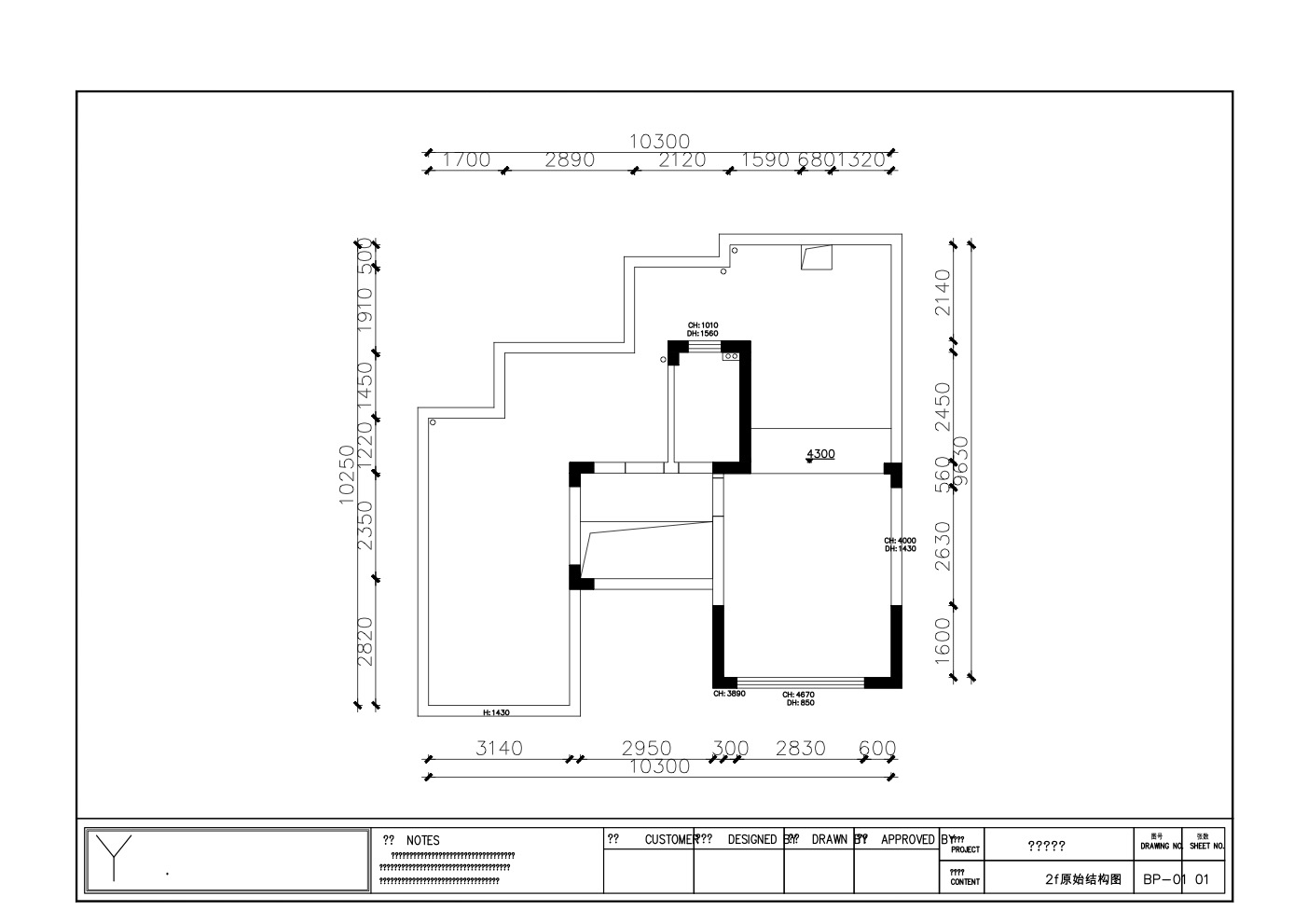
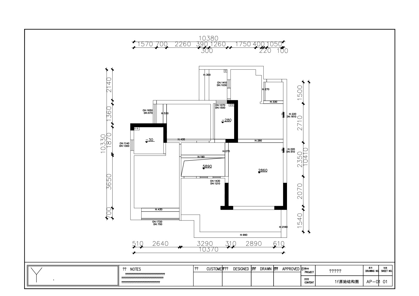
- 项目类型:住宅公寓
- 项目地点:德阳市
- 建筑面积:170.0000㎡
- 项目造价:80.0000万元
- 主案设计师: 杨康
- 参与设计师:王滟濛 张富城
- 竣工时间:2022-04-01
- 设计机构:YANG KANG空间设计
-
项目定位:疫情时代 ,任何一个城市都可能成为一座孤城。城市的最小单位住宅,成为保护我们的最后堡垒。作为设计工作者的我们,思考当人居环境被割裂后,我们应该给到居住者如何的体验。
-
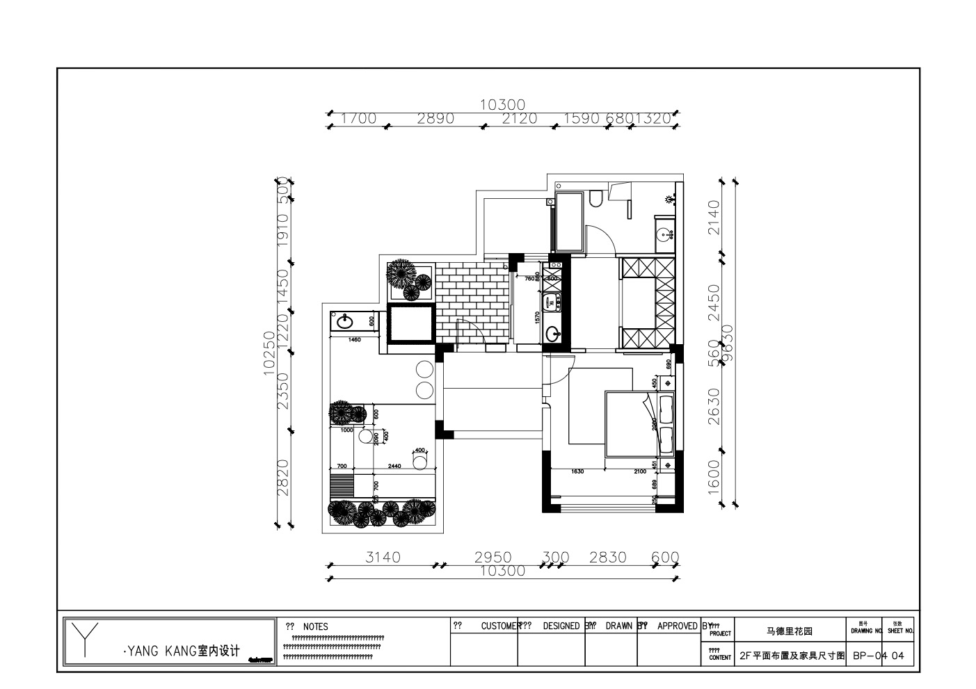
空间意境:人类离不开自然,不能走入自然以后怎么办,在有限的空间中给到居住者一个私属花园,一屋看尽四季更迭。设计者在思考:空间不应被定义风格,只要使用舒适,视觉舒适,何必强调风格。当被风格后,不自觉的会被条框化。
-
空间布局:空间本质是一种精神意愿以视觉的方式存在,留白大量空间配以器物
-
设计选材:除回归空间本质,亦衬托出空间器物,以及窗外打造的一花一木。器物虽不言,但仿佛又诉说着故事,微水泥搭配原木地板,细腻的材质肌理与光线相互交叠。
-
用户体验:使用舒适,视觉舒适

