以爱之名
353
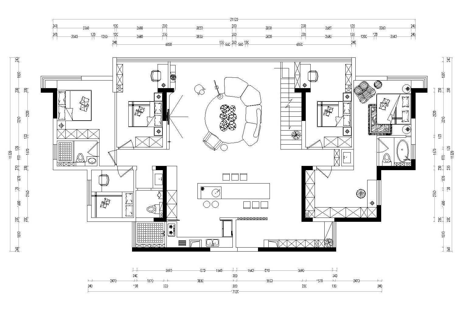
作品说明
- 项目类型:住宅公寓
- 项目地点:安顺市
- 建筑面积:185.0000㎡
- 项目造价:68.0000万元
- 主案设计师: 吴音
- 参与设计师:李松
- 竣工时间:2022-10-16
- 设计机构:木舍空间设计事务所
-
项目定位:爱,大气,舒适
-
空间意境:利用独有的阳台引入环境
-
空间布局:两套打通,从格局改变,打破传统式结构
-
设计选材:轻装饰,重软装
-
用户体验:舒适,大气,不拘一格
0
1

认证 · 让您身份增值