白月光



作品说明
- 项目类型:休闲娱乐
- 项目地点:南昌市
- 建筑面积:198.0000㎡
- 项目造价:45.0000万元
- 主案设计师: 赵毅
- 竣工时间:2021-12-14
- 设计机构:毅泽空间设计
-
项目定位:该项目是为三个年轻女业主量身定制的商业空间策划,以高定美甲美学中心为定位,完成她们合伙创业的2.0阶段。为该项目取名为“白月光”,其一是该项目本身用色用材上追求自然之美,以原生态的肌理和质感,打动人心,所谓素简入魂、温暖入心。区别于以往繁复的装饰和豪华的镶嵌,该项目给人以一种如月光般皎洁的姿态。而命名的另一个初衷,则是作为设计者和旁观者,我在这三位女孩子身上看到的除了创业踌躇满志、精益求精以外的的一些最打动我的地方,在这个纷繁复杂的社会中,还有这么一份彼此真心对待、完全信任的超越合作和利益之外的真诚和友谊,如皓月清澈不染。设计永远是为人而做的设计,这大概就是我为她们所做的设计的初心,希望这份空间之美,能配得起她们内心对所有美好的追求。
-
空间意境:以雾面质感代替光面,以朴素材质代替奢华,简约质朴,而不张扬,用月白的自然色彩与灰泥涂料的原始肌理产生碰撞,不拘小节又细致入微,呈现原生质朴的美感。饰品上以木质、藤编和手工粗陶艺品来满足空间的原始感,看似清淡,却有着不露声色的感染力。
-
空间布局:本案空间上以旋转楼梯为造型及空间分隔的重点,塑造空间的整体性、建构性和对话性,旋转楼梯造型带来延伸视觉的错觉,在光影作用下拉长空间纵深感,配合二楼顶面水波纹不锈钢材质,勾勒出虚实界面。弧形和曲面的元素由内至外,建构优雅的视觉印象,放大各个空间的视觉感官。
-
设计选材:本案摈弃了一切奢华昂贵的用材,也尽可能规避直线造型的尖锐和死板,只通过颜色、肌理、形状、和光来描绘自然美学空间的素雅特性。大面积运用的灰泥涂料,环保、价低,且呈现出的肌理质感恰到好处。低饱和度的奶茶色赋予空间温暖治愈的基调,自带高级感
-
用户体验:客户的满意度其实并是一张表格或是单一的评价评分能够体现。我们和客户在案子结束之后往往能够以朋友的身份继续相处。在她们的朋友圈中,你可以看到她们在这里每日的辛劳和收获,相比于那些精致摆拍的打卡照片(确实也是有很多),其实她们日常的工作日常打卡和记录,更体现她们与这个空间真实的关系。她们为这个空间的整洁和持续美丽付出的劳动,节日里为这个空间精心的装扮,每每为这个空间添置哪怕一件小小的饰品,都来征询我们的意见,我觉得这才是客户对于这个空间满意程度最真实的体现。
本案位于南昌世茂天城 是南昌首家日式高定美甲美学中心. 以雾面代替光面 以质朴取代奢华 简约朴实不张扬 自然色彩与原始肌理的碰撞 将不拘于小节地粗狂 与细致入微地细腻结合的恰到好处 呈现原生态质朴的美感
灵动的弧形与圆润的曲面元素由外至内 流畅的楼梯圆弧造型与拱形门洞 摒弃了直线造型的尖锐与死板 传达视觉空间的柔和与纯粹
饰品上以木质、藤编和手工粗陶艺品 来满足空间的原始感 看似清贫,却是不露声色的奢华
各种角度的曲面在空间里重组叠加 构建优雅的视觉印象 通过颜色、肌理与形状 描绘 “自然”美学空间的素雅、质朴的天然特性
低饱和度的奶茶色空间基调 自带高级感 深浅不一的米色系 与灰绿色系的局部搭配 丰富空间的色彩层次 整体的治愈系色彩 充满温暖的感染力
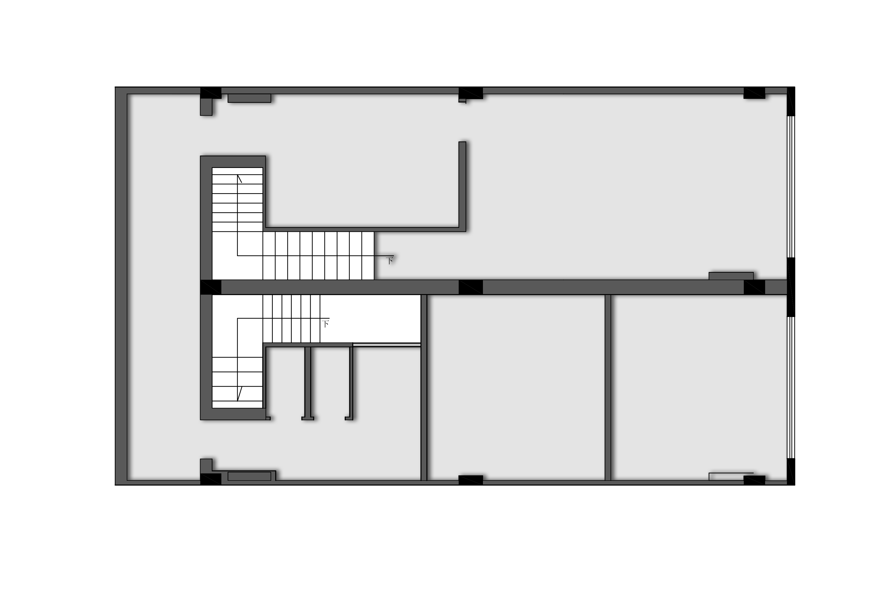
一层原始结构
一层优化平面布局
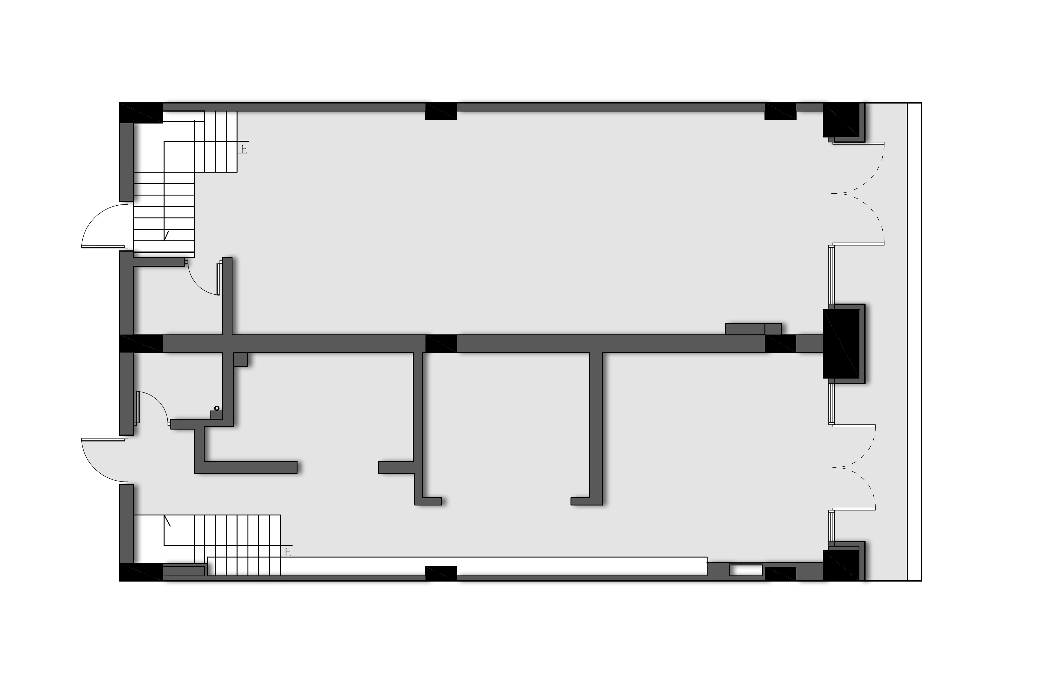
二层原始结构图
二层优化平面布局图

