广州中海观澜府天际汇
29
作品说明
- 项目类型:商业
- 项目地点:广州市
- 建筑面积:771.0000㎡
- 项目造价:460.0000万元
- 参与设计师:王承超
- 竣工时间:2022-05-18
- 设计机构:柘壹设计
-
项目定位:从「ONE57大楼」到「曼哈顿中央公园」,从「海德公园1号」到「摩纳哥新国宾」,当塔尖圈层、顶级地标、稀缺资源等话题一次次涌上风口浪尖时,设计如何研磨创新,敬呈精粹之作。
与国际先锋同行,关于「广州中海观澜府天际汇」,我们选择以美学之外的视角溯源城市生活底色,向场景细节深挖。在规划生活、实现生活中营造一场专属性的高级趣味。 -
空间意境:“归于根本,会所的本质是构建一处纯粹属于圈层的精神领地,它打破了商业和生活的边界,最终塑造出与空间共振的内在体验。”立足于项目整体性与价值升级,设计师从生活方式、文化加载、艺术美学、社交需求多维延展软装场景,并借由城市江畔之景的艺术转译,抒绘项目的人文底色,实现圈层共鸣、情境体验与产品力的交汇融合。
-
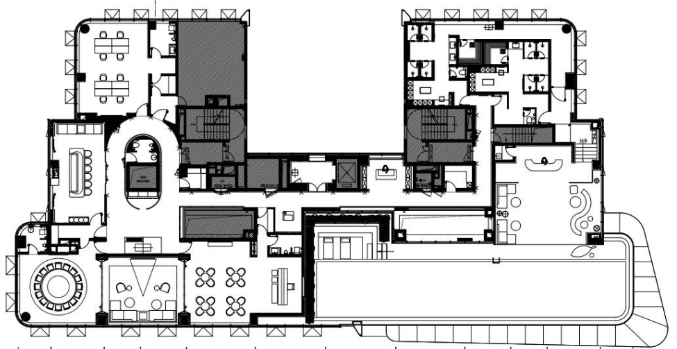
空间布局:在窗外的无界景致与当代空间艺术的相映中,藏纳的尽是顶流圈层的审美品味与先锋意识。游走于其间,无论高低尺度、纯木材质与弧线造型的精致布局,抑或细节处写意层层碧波的地毯、蜿蜒环绕的竹编装置,皆以尊贵轻奢的仪式感,投射出别致的国际化都市格调。
与城市高度对话,临窗而设的用餐区凸显着高级简雅的场域气质,令宾客伴着咫尺之内的非凡盛景,尽享珍馐美馔。
转入廊道,连通天花的木艺隔层,被布置为一处典雅的藏酒架。向内里探索,这里是高雅品味的映射,更作为空间的一条故事线,串联起圈层社交与洽谈商务的多重维度。 -
设计选材:落于空间气度的描摹中,一缕颇有手工编织质感的艺术灯饰,是对涌动江水的诗意取象,搭配粗粝的金属磨砂与通透的花纹大理石,诠释着奢华生活的极致体验。
从台面的花纹大理石材质,至高级简约金属造型、地毯的斑驳水纹肌理,空间的每一处布设,既突出于对工艺美学的描摹,更于低调轻奢的品质彰显中,定义着独属于塔尖圈层的社交聚集地。
更衣区的设计以素白大理石与大面积木质为架构,加之暖黄光线的萦绕,与一隅的鱼形小品,使空间流动着温润简雅的人文意境氛围。当人置身于其中,便被尊贵优雅的仪式感与私密性包裹,沉浸于高奢而舒惬的体验。 -
用户体验:“场景的营造,始于对艺术情境的创造,最终落点于规划生活、实现生活的根本目的。”在此,设计师化身为在场的体验者,以简白的艺术弧线,构设出优雅的泳池休息区。人围坐其间,人与自然和谐共生的国际滨江隐贵生活就此畅然开启。
0
0

认证 · 让您身份增值