墨丘利心理教育中心
558
作品说明
- 项目类型:办公
- 项目地点:南京市
- 建筑面积:1600㎡
- 项目造价:280万元
- 主案设计师: 刘丽霞
- 参与设计师:杨朕
- 竣工时间:2022-03-15
- 设计机构:南京丽丽舍建筑设计有限公司
-
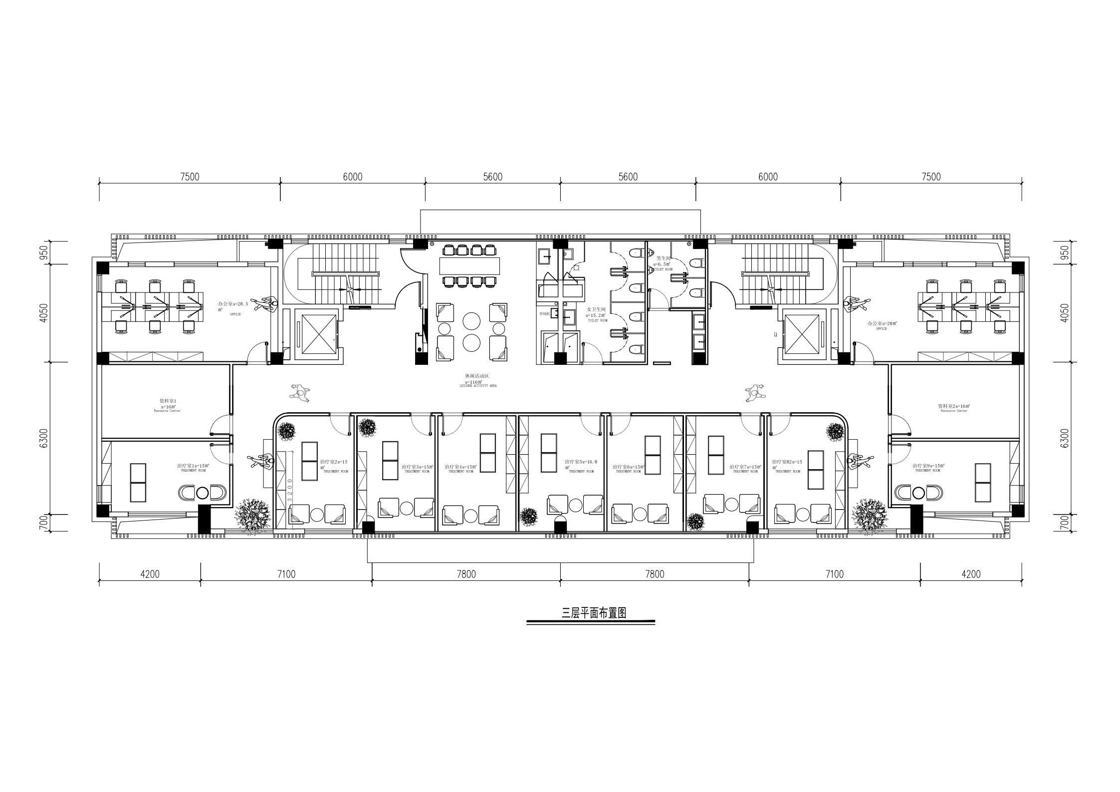
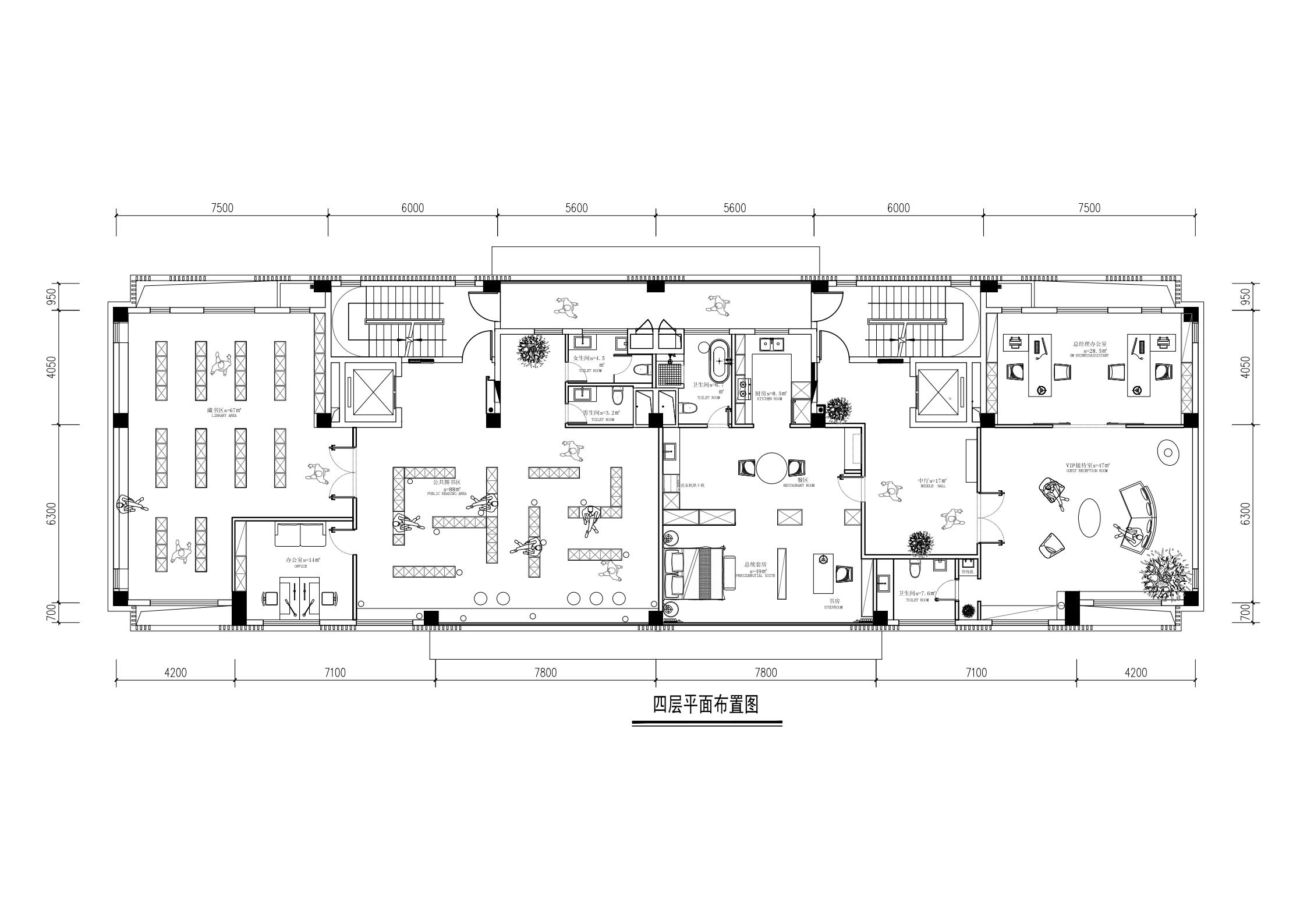
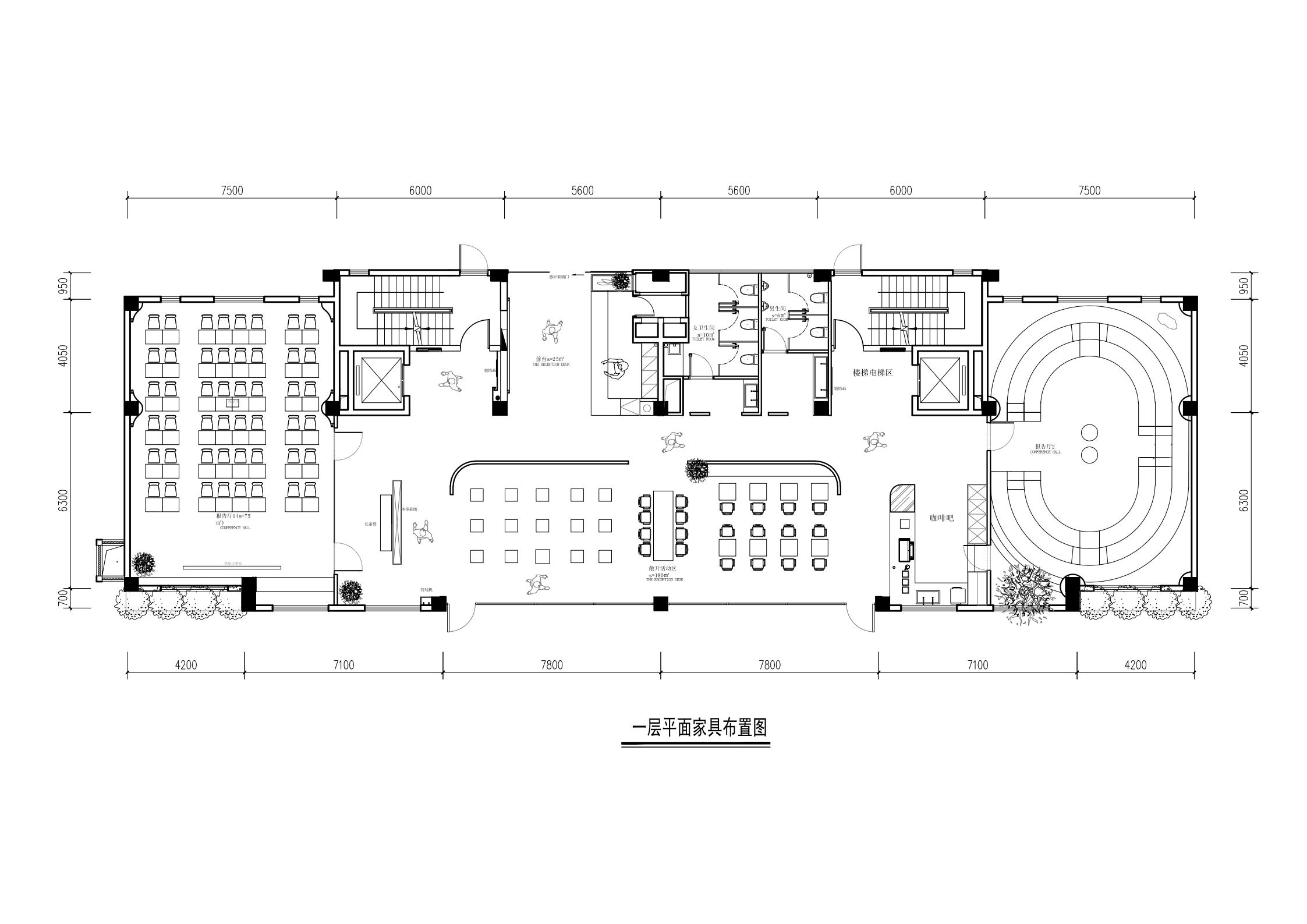
项目定位:此项目是一个心理中心教育机构,一共四层,于是我们以大树的形式展开楼层分配:一层是大的培训和汇报中心,用大胆的色彩和几个造型做修饰,东西做了中式禅意和现代的两个风格对比大教室。二层是幼稚园,分别做教室:牵牛花,轨迹,麦田和森林。让孩子在不一样的空间体会不一样的感受。三层是心理私人咨询中心。四层是老总办公室,接待室,外籍老师套房和大的图书馆。
-
空间意境:风格创新就是我们没有做传统的教室,而是从心理角度出发,用不同的灯光造型色彩,让人在空间里找到自己内心的真正自我,解放自我。
-
空间布局:四楼图书馆彩用蘑菇的方式让看书更有乐趣
-
设计选材:全屋都是用乳胶漆和石膏板节能的材质做造型,色彩。
-
用户体验:开业近一年里,教育机构的老师和来学习的学生都觉得空间有趣,不死板,打破传统教育机构的单一性。很多人也喜欢来打卡,拍照。
0
0

认证 · 让您身份增值