清馨幽舍
845
作品说明
- 项目类型:住宅公寓
- 项目地点:银川市
- 建筑面积:150.0000㎡
- 项目造价:35.0000万元
- 主案设计师: 习伟亮
- 参与设计师:习伟亮
- 竣工时间:2022-06-06
- 设计机构:集壹设计事务所
-
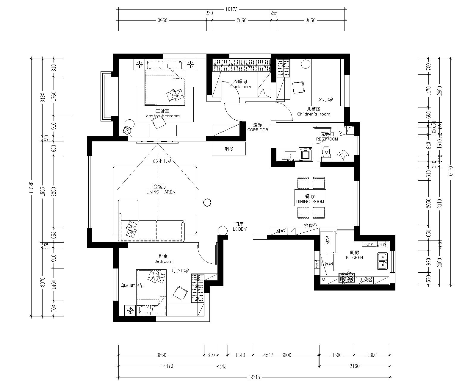
项目定位:本案业主为一家四口,一对夫妻,一个女儿正在读幼儿园,儿子正在读高中。
-
空间意境:“有一种好的生活状态,便是知道自己想要什么,满足于什么,不嗜繁杂,保持本真。归家,回归心灵的宁静.”本案主要风格为美式轻奢,简约素雅的美式,以轻奢元素点睛,整体自然优雅,蕴含尊贵与品质。本案主打美式轻奢,设计师在整个设计中运用了很多鲜艳明丽的色彩与不同的材质组合,衍生出不同的层次变化,展现自然从容地生活态度。整体空间采用白色做主色调,搭配暖色的软装家具及配饰,在不失高雅和档次的同时,还添加了空间的温馨之感。岩板自然肌理的点缀增加空间的气场和亮点淡淡的绿,稳稳的灰,点点的金,小酌一杯,优雅的音乐静静流淌,宝格丽的奢不经意间于细节之中显露。
-
空间布局:将小儿子房间和衣帽间的墙拆除后移,增加门洞宽度,在洗手间新建壁龛,增加洗手间的使用方便 将主卧卫生间改为衣帽间使用,增加主卧空间。将冰箱外突与餐厅区域新建酒柜区域齐平。
-
设计选材:整体空间木、石、布艺、皮革,经由种种轻巧的排列组合,丰富空间层次感,营造触手可及的舒适。开放展示柜体中错落放置的艺术物件,将各材质间的交错感消融,在低调的秩序中呈现静默着优雅。流畅大气的户型布局奠定了设计的基调,白天在保证私密性的前提下,用白纱最大限度引入自然光,室内在光与影的组合下生出温暖且不炙热的感受。色彩交错弥漫,呈现不拘一格的艺术调性。
-
用户体验:诚如米开朗基罗所言:“在艺术的境界里,细节就是上帝。”陈设亦是如此,需从细节中提炼生活的热情。步入室内,优雅与奢华共生的质感袭面而来,置身于此空间,雅静而不失时尚,让人不禁放慢脚步享受生活。感受岁月沉淀的美好,几本书、一壶茶,便足以将烦恼抛诸于脑后。
0
0

认证 · 让您身份增值