遇湖湾



作品说明
- 项目类型:餐饮
- 项目地点:杭州市
- 建筑面积:550.0000㎡
- 项目造价:600.0000万元
- 竣工时间:2022-10-01
- 设计机构:slow coral design 慢珊瑚设计
-
项目定位:遇湖湾
一间由典故砌筑的餐厅
它的名字与其毗邻的“浴鹄湾”同音,后者是一片藏身西湖山水的悠然秘境。清风浮浮、落叶点点,千百年西湖风光不改,故事不断。始建于元代的黄篾楼水轩便是最出挑的景点之一,它静卧于水面,屋脊的起伏简约秀美,如它的经历般曲折悠长。作为策划,建筑,景观,室内及软装的全案设计参与者,在项目初期便希望为业主打造一个集成的美学空间。“它所在的位置非常私密,鸟雀纷飞、蜻蜓点水、密林环绕,又有历史建筑的附加值……形成我们与业主的一致共鸣,将此处打造为旗下同系列餐厅的品质旗舰店。”
-
空间意境:红如枫、绿如竹、橙似夕照……“释放朴实的自然,实现空间的亲和力。”这是设计团队多年乡建得来的经验。西湖和黄蔑楼是载体,将这缕来自古老时空的气韵传承。与艺术家联手创作,透过嗅觉、味觉、触觉与视觉,将日常的就餐会饮提升至艺术境界。方桌与圆桌区域的玻璃隔墙上是色彩缤纷的艺术油画,它将断桥、宝石山、保俶塔等西湖标志景致微缩笔下,似遮似现间,访客惊觉自己已身入画中。点、线、面,简单的斜切赋予空间“现代性”,硬朗的处理手法让室内与外部自然形成鲜明的对比,在厚重与轻盈、自然与几何的对比间,当下与历史的对话徐徐拉开帷幕。
-
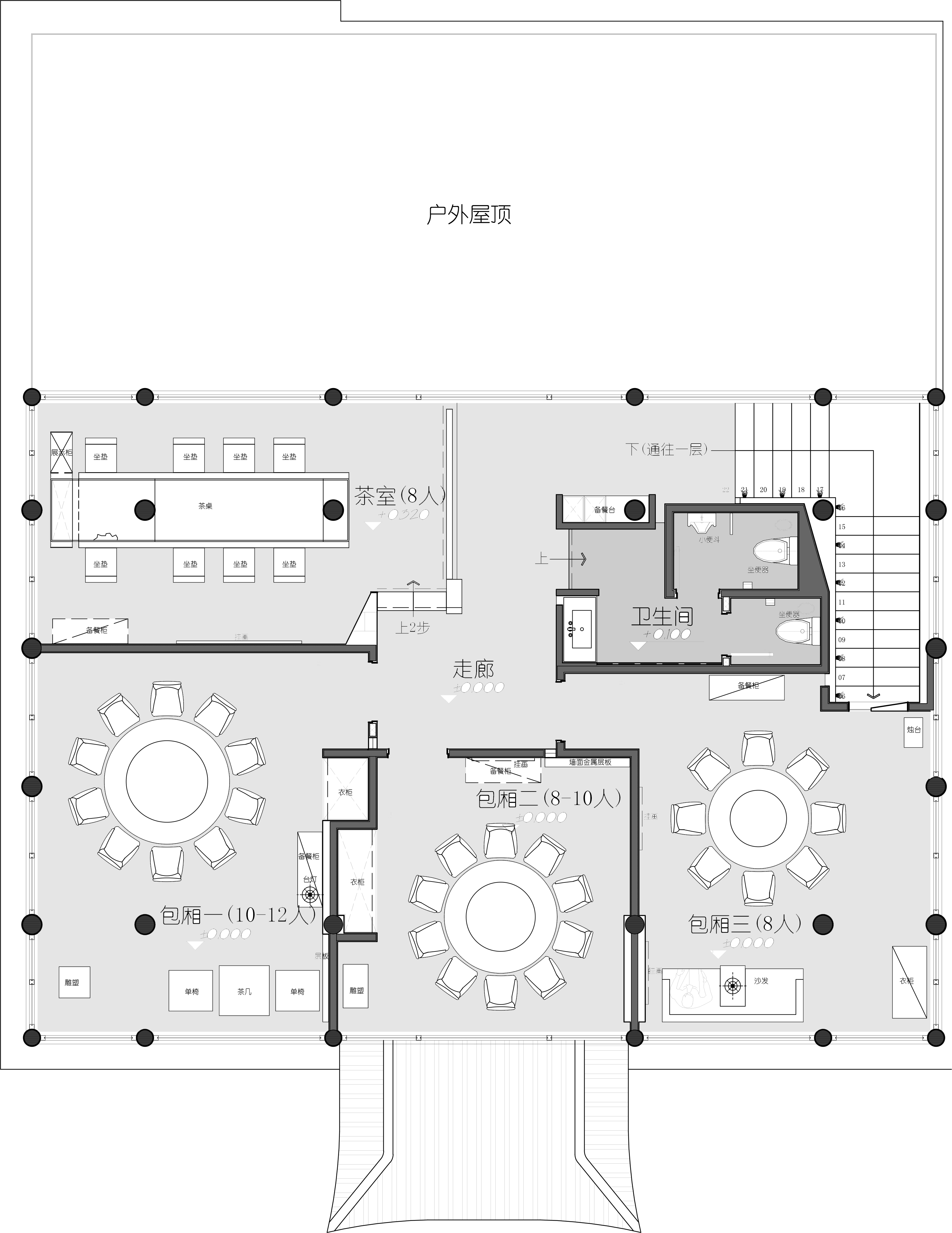
空间布局:设计师以宋为坐标,力图还原一种精致典雅的美。墨色笼罩着一楼、二楼的所有室内区域,开槽的片墙斜置于空间内,框景、漏景将“曲径通幽”的雅意从连廊延续至大堂,偶有亮色出现——那是窗外的风景,或是艺术家依据窗外景致的在场创作。水上包厢,则通透开阔,窗外的山水湖光尽收眼底。备餐台则是雕塑艺术家采用细沙磨石创作的“一叶扁舟”,形成空间的平衡支点,彰显古雅之韵和当代艺术的交融。
-
设计选材:材料选择上我们希望具有自然的粗粝与当代的利落,不超过三种质感以上的碰撞,统一材料的运用与落地,
-
用户体验:是西湖边上诠释了不一样的杭州餐饮文化

