堤下明灯:汉口江滩书店



作品说明
- 项目类型:公共
- 项目地点:武汉市
- 建筑面积:45.0000㎡
- 项目造价:30.0000万元
- 主案设计师: 胡兴
- 参与设计师:胡兴,刘常明,李哲
- 竣工时间:2022-05-14
- 设计机构:青微舍
-
项目定位:“厢式防水墙廊”是长江沿线防洪系统的最后一道关卡,其内部进深8m左右的长条形空间,被鼓励用做各类商业经营门面。然而,在我们印象中,这里更多的是会所、高端餐厅和茶室、豪车4S店,它们与江滩公园上奔跑放风筝、跳广场舞、遛狗散步的人们,形成了巨大的反差。这次的书店改造,兼具咖啡与展览,是该段落第一家真正打开大门,欢迎人们自由出入的日常空间。而另一方面,作为武汉建筑师,在江堤上做项目显得格外有意义,毕竟98年的洪水是我们最重要的童年记忆。
-
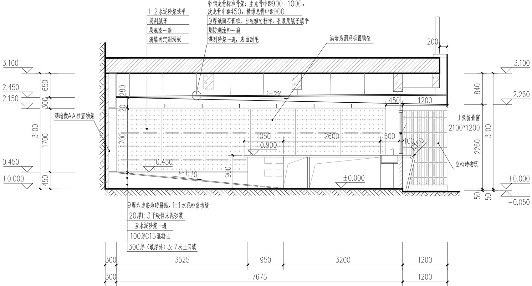
空间意境:首要的问题是,作为防洪基础设施的一部分,这里每年汛期仍有被淹没的风险,因此我们的第一个决定就是室内地面以残疾人坡道的标准,整体按1:12的斜率找坡,方便淹水后,迅速排出。而这一脚下突发的变化,也试图起到调整注意力、拉长体验的效果,让人不至于觉得这小小的空间3秒钟就能够逛完。此外,以600mm为界,其上采用看上去“精贵”的材料,其下采用粗糙耐久的材料,可以泡在水里,我们甚至期待办一场打赤脚淌水进去看的“水上艺术展”。
-
空间布局:按最初的设计,我们打算让居中的咖啡岛台延伸至外部,并顺势落下成为一个高背椅,与对面的长廊形成呼应,充分的整合周边环境要素,为书店未来的公共活动提供拓展的空间。但江滩物业叫停了这一“占道”行为,我们需要当场修改方案,便画了个曲线,让已挑出的部分又落回到红线之内。而这一偶得的、身体般柔软的“突出部”,却在运营过程中显得十分讨喜,来往的人都忍不住去摸一摸、靠一靠。
-
设计选材:我们热切的期望用最小的代价,给予这个迷你书店与艺术馆一种意料之外的“体面”。因此决定采用一种端庄的、古典的“正面性”与“一点透视”构图。但这个空间有一处先天不足,其正立面上的两个柱子(现被空心砖包裹,内为空调机位),与室内空间不对称。为了调和室内外错位的两跟轴线,我们做了一个连续拱的门头与室内吊顶。试图让内部一点透视的空间,从外面看,不至于歪在一边,无论看外面、还是被看,好像都是对称的。门头的连续拱,同时也是对“街坊们”的一种尊重:虽然自己希望能做出变化,但在交接处还是回到了和大家统一的高度上。“no art”的招牌被刻意地竖放,让门头很“自然”的被分成了两截儿,以便使用两块无缝的整版门头金属板。
-
用户体验:业主评价:
第一次遇到建筑师胡兴,是我在BigHouse当代艺术中心办展的时候,当时他看起来像个大学生,挺青涩。实际上那时他已经有了自己的设计工作室和不少获奖作品,华中科技大学的建筑学博士在读。和他认识久了,我慢慢发现,他内心里有一股特别纯真的力量,这种力量也体现在他的作品里,没有花哨的炫技,朴素却精彩,所以一直想找机会跟他合作。
2017年,经联合国教科文组织评选,武汉市正式入选全球创意城市网络“设计之都”。从那时起,我就开始琢磨怎么为武汉这座设计之都做点事情。我喜欢和设计师们在一起厮混,因为设计源于艺术,却比纯粹的艺术更贴近大众生活。而“无艺术书店”,这个武汉首家设计书店,就是我和胡兴一起为设计之都武汉献上的小小礼物。
“叙事”可以算得上是设计领域中的流行词了,讲故事作为人类在社交和文化领域的最基础表达方式,可以被应用到诸多行业和学科。一旦给设计、品牌加入故事,整个作品就活了。好的设计就是将叙事和视觉艺术相互融合,给观众一场沉浸式的体验。我很喜欢胡兴在这个项目上的叙事性设计理念,让书店成为了堤坝与长江之间的故事单元。希望这个场所能形成自己独有的气质,吸引同样独特的你陪伴他一起成长。
最后特别感谢胡兴和他的两个合伙人刘常明、李哲,还有施工方糯米装饰的丁龙为这个项目付出的心血!
无艺术,不设计!

