杜康集团总部办公空间
580
作品说明
- 项目类型:办公
- 项目地点:郑州市
- 建筑面积:2800.0000㎡
- 项目造价:8000000.0000万元
- 参与设计师:李绮(空间)裴洲宇(咨询)
- 竣工时间:2022-04-01
- 设计机构:河南观佐装饰工程有限公司
-
项目定位:遇见杜康,感受到了深厚的企业文化魅力
几千年的白酒文化传承,
在这里,为了他
我们营造了一个属于“杜康”的现代办公空间
让更多人认识新“杜康”,让杜康更加的多元化 -
空间意境:在具有接待属性的2#楼
我们以酒馆为设计场景
营造了一个具有现代办公属性的酒馆场景
在中庭的处理上,我们考虑了更多是展示杜康文化的符号
打破又重构的楼梯+夯土墙+玄武岩
让展示内容具有厚重的文化属性
办公区域则更加的现代实用
配合着建筑独有的空中庭院
整个空间的层次感和体验感变得非常丰富 -
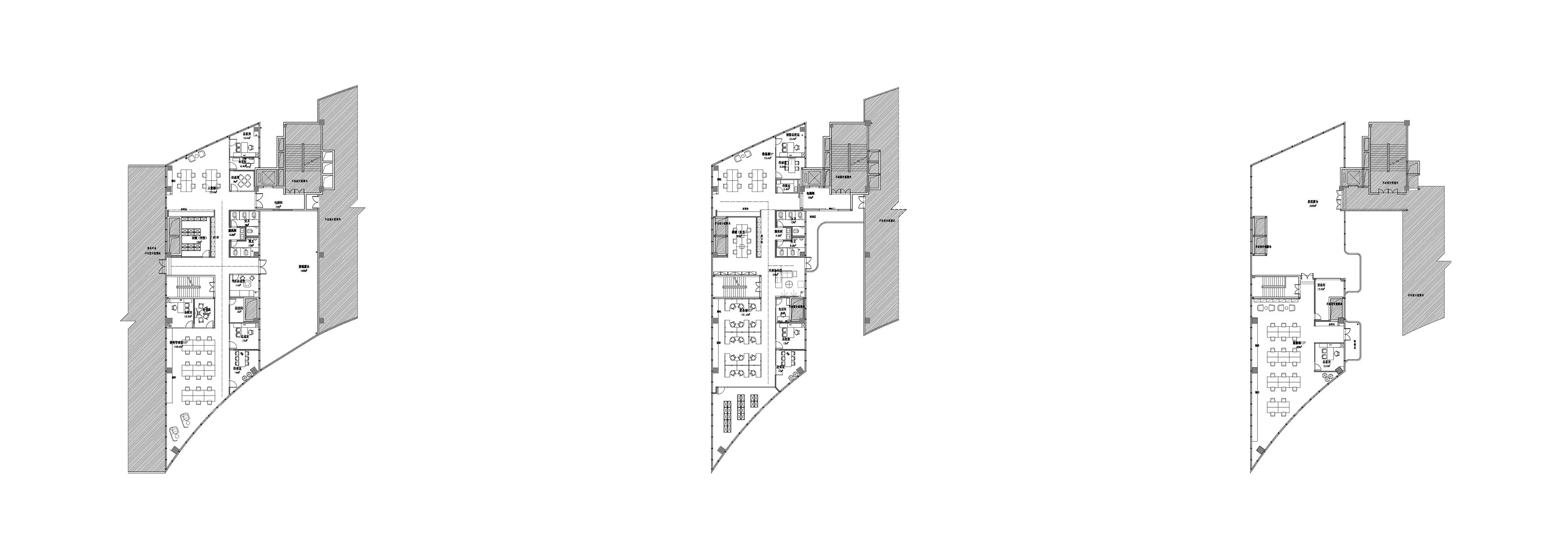
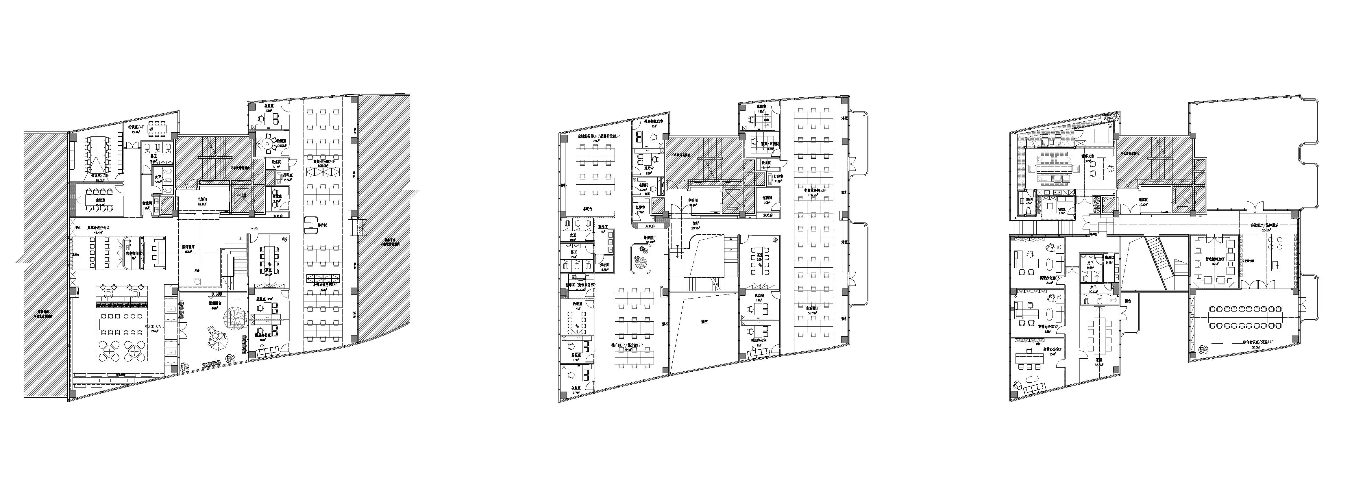
空间布局:设计过程中,我们将原有相对独立的建筑进行了整合
新建了幕墙和中庭
让空间有了凝聚力
因为两栋建筑的属性依然是办公
在展示文化符号的同时
根据企业的管理,协作,私密,社交,沟通,效率等等调研报告
最终让办公区变得更加开阔,-更加多元化
让私密空间的使用效率更加高效和实用
高管区作为领导力的体现
除了私密外,我们又赋予了更多的协作、沟通、展示企业实力的功能 -
设计选材:在有限的预算内
我们首选了最好的空调,新风,等建筑设备品牌
人的健康在空间中是我们更加关注的重点
在一些使用频率高的物料上
比方说洁具,水吧台
我们依然首选相对更好的科勒等一线品牌
然后是关于企业文化的体现上
为了让空间更“杜康”
前期作了很多的调研
最终以火山岩,夯土墙,木质构件,枯山水景观
分别对应企业文化的:玄武岩,窖泥,杜康嗣,杜康泉
在选材和成本控制上,也是希望能达到最佳的性价比 -
用户体验:开业当天,邀请了中央电视台,湖南卫视,北京卫视等上百家媒体
大家都对空间给予了肯定
在投入使用之后,客户对更多共享空间表示出了跟多的好评
一方面提高了他们的工作效率
另一方面,更多的workcafee区,协作区,电话间,母婴室
让员工之间的沟通,和工作更加的方便和高效
从原先的用及办公,变为了一个现代化高效白酒企业办公
希望通过后期的调访,和改进,能够给客户带来更多的空间使用价值
前台接待区,以酒馆为原型设计
前台接待区细节
杜康集团标识
workcaffe区
workcoffe区的路演分享
workcoffe区的杜康酒牌
中庭挑空区的周总理题词
开放办公区
办公协作区的共享办公模式
高吧洽谈室,让人与人的沟通方式更多变
共享会议室,在workcoffe区为所有员工提供开放预约
专注间,为更多的工作方式提供可能
茶室,每个工作区,都会配备独立茶室,也是协作办公的一种形态
高管层的vip接待室,为官方接待提供交流协作
CEO办公室,去班台化,让沟通更加轻松
高管办公室,更多功能,更多细节,为高管提供更多工作服务
高管茶室,作为高管共享协作办公另一场所
共享区展厅,配备水吧,随时可举行酒会及直播
杜康产品陈列
大型会议室,商务谈判的共享预约空间
卫生间作为重点设计空间,材质,灯光标准要求更高
新建共享挑空大厅,让文化展示空间更加现代
空中露台,为所有员工提供一个更宁静的景观交流场所
建筑新建中庭爆炸示意图
2#楼3,4,5层
3#楼5,6,7层
0
1

认证 · 让您身份增值