南水北调江苏集中控制中心


作品说明
- 项目类型:办公
- 项目地点:扬州市
- 建筑面积:315.0000㎡
- 项目造价:1000000.0000万元
- 主案设计师: 高钧铭
- 参与设计师:田耘菲
- 竣工时间:2022-01-08
- 设计机构:南京国豪装饰安装工程股份有限公司
-
项目定位:项目位于江苏省扬州市江都,属于南水北调工程江苏段重要的指挥中心,其设计定位旨在体现南水北调工程的现代化与科技感,同时考虑节能环保等因素进行设计
-
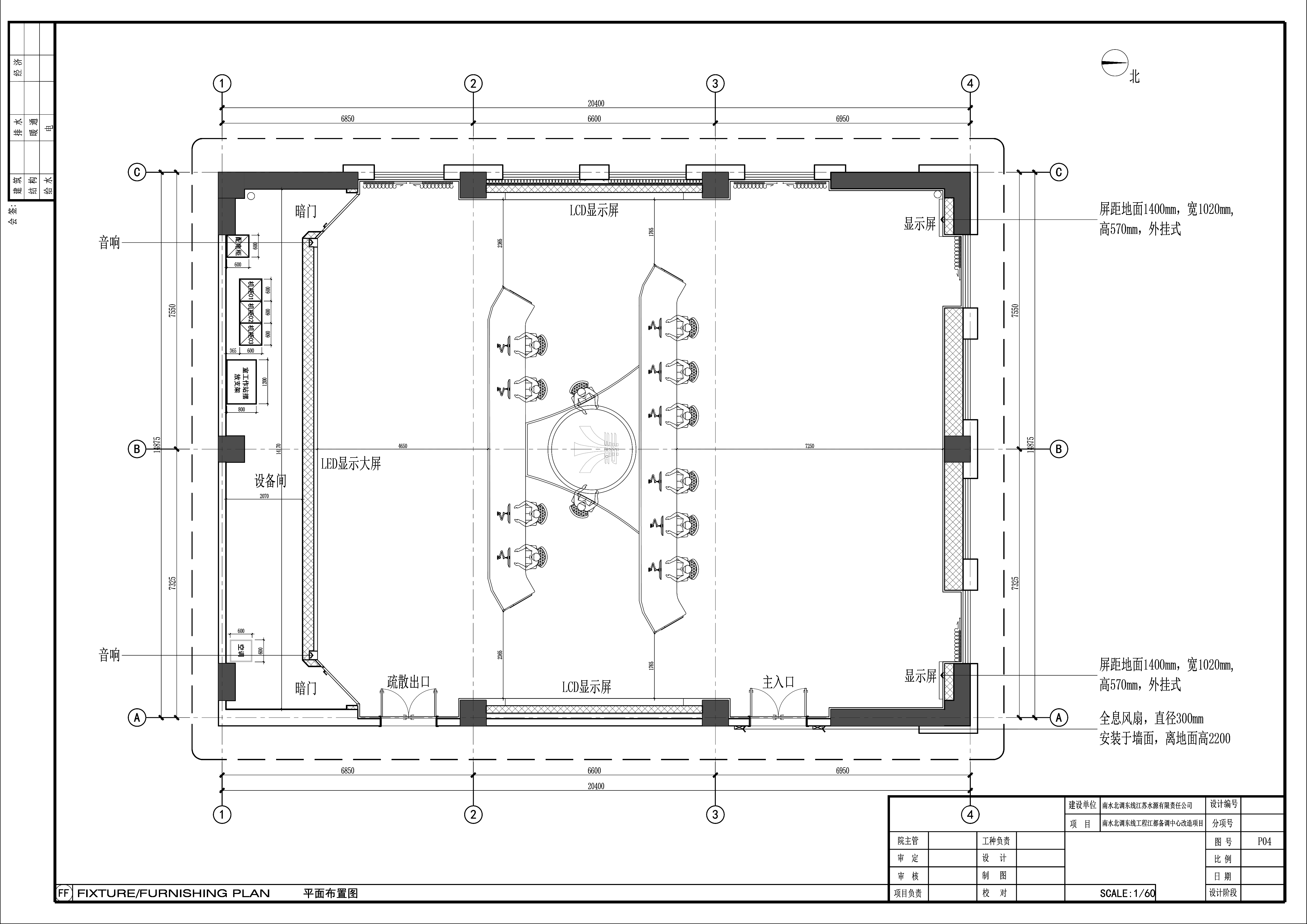
空间意境:水是生命的源泉,在设计此次指挥大厅时将水的概念融入其中,整体采用蓝色与白色等水的颜色来进行陈述,整体空间构思的开敞明亮,保证工作人员在指挥大厅中能够获得较为开阔的视野,南水北调是富有划时代意义的国家举措,因此顶面造型设计时考虑做成水波纹的形状层层向前推进,同时水波纹的造型也整体构成一组WIFI无线信号可以无限延展,寓意伟大的事业终会取得决定性的胜利,并且享誉全球。受领导启发将操作台设计成工人的工字与咱们工人有力量形成呼应揭示伟大的事业与生生不息的中国精神!
-
空间布局:空间的布局根据需求进行合理推演,指挥大厅三面均由LED屏幕组成,用以观测实时水文动态,指挥操作台在中央布置方便进行观测,简洁与穿透、秩序与弧线、光影与气氛尽在设计中融合并且升华。
-
设计选材:此次设计非常重视经济性与低碳,在墙面板材的选取中选择金属科技板的形式取代传统的木饰面和石材,这样的新材料前卫科技并且节能、抗腐蚀、耐高温,既简洁也降低了工程材料实际的成本,顶面采用穿孔铝板造型工艺节能低碳,同时进一步降低了整体工程的经济成本,地面采用PVC蓝色地胶简洁环保创新低碳,将预算节省下来用在中控大屏以及操作台的定制上。
-
用户体验:指挥大厅投入使用一年来收到业主方非常多的好评,整体装饰效果美观大方,符合项目定位,操作台新颖科技使用方便,得到业主方领导的一致认可。

